查看完整案例


收藏

下载
Star Wars on the outskirts of South Korea
设计方:moon hoon建筑事务所
位置:韩国
分类:居住建筑
内容:实景照片
图片来源:namgoong sun
设计时间:2011年-2012年
建设时间:2012年-2013年
项目规模:131.87平方米
图片:32张
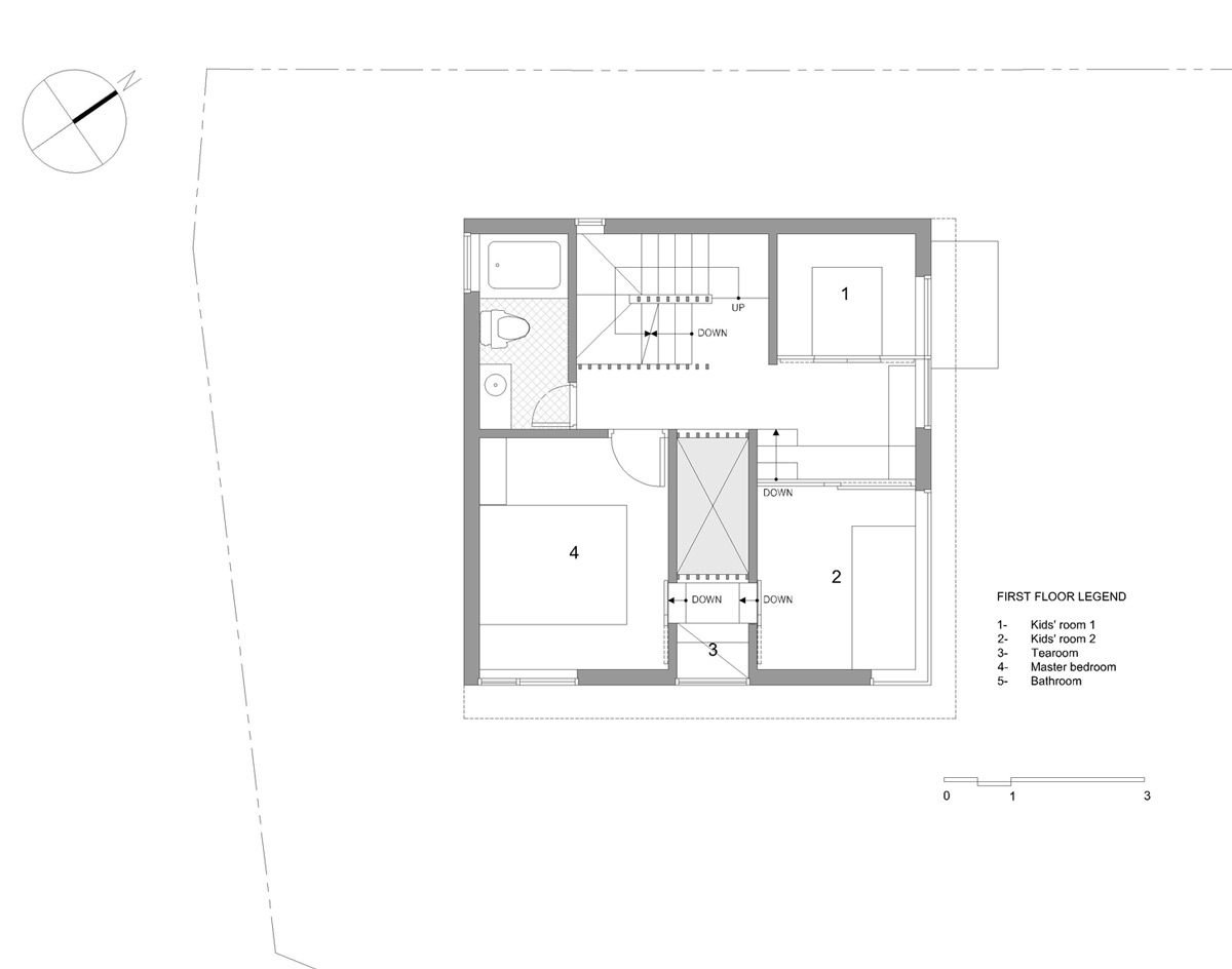
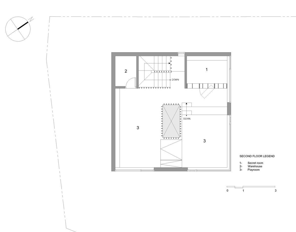
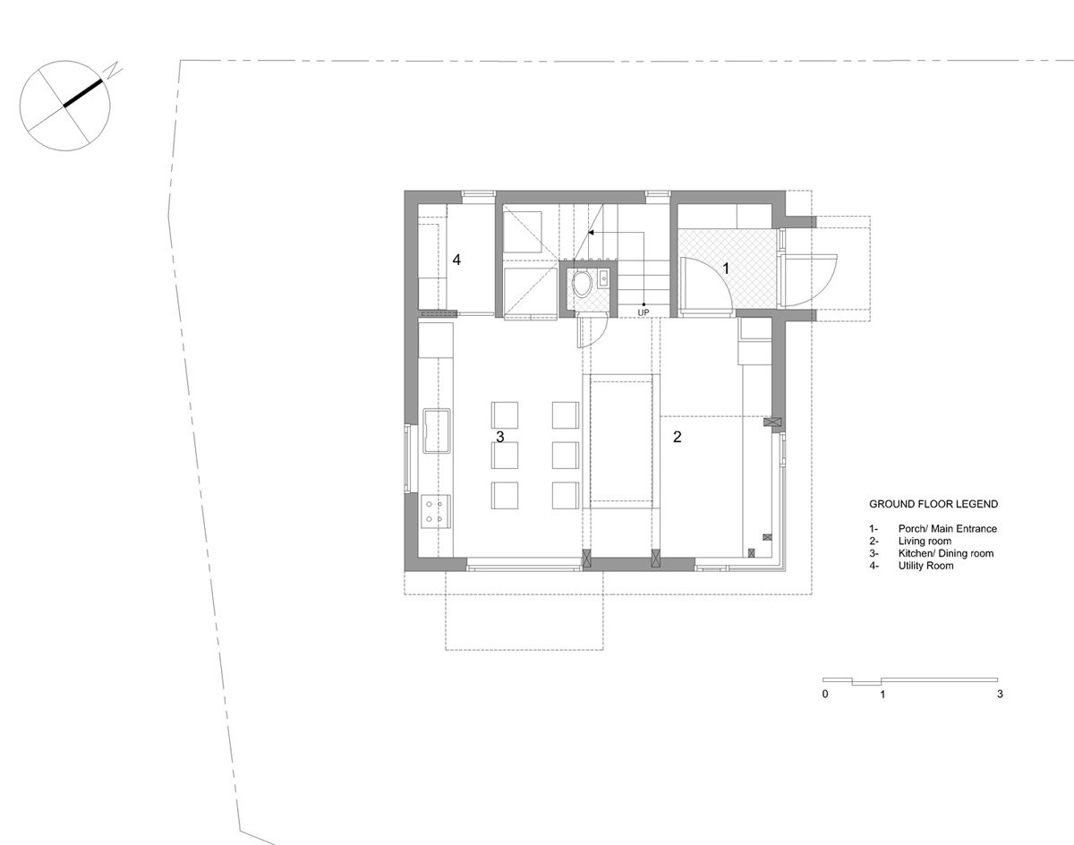
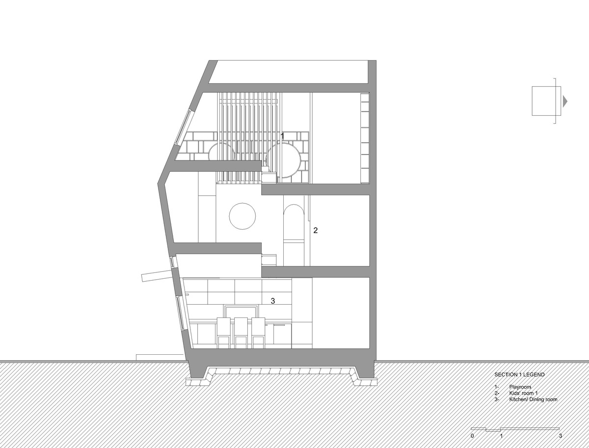
韩国建筑事务所 moon hoon 近日设计完成了“星球大战屋”,这座建筑的整体外形,小到外立面衔接处,大到整体嬉戏空间,均大致参照了星球大战这一经典科幻作品。这座不规则建筑坐落在一大片草地上,建筑落地面积很小,外立面墙体呈倾斜状,建筑两侧用木质露台围合起来。建筑布局将一二层设计为布局紧凑的两层,顶层则为层高较高的开放空间,作为住户家中的孩子的游戏室。建筑东侧拐角处开放了与地面平行的条带状窗口,同时设有中心天井,白天为建筑内部提供采光。
客户渴望有足够的空间以及居住用花园,他们也是韩国当前住户形式改变的典型例子,即很多年轻家庭由多人公寓迁移到独门独院的住宅。“星球大战屋”认真履行了客户的诉求,为家中儿童提供了开敞的嬉戏空间,同时也实现了男主人成为宇航员的儿时梦想。
上层空间中还包含短滑梯和一间密室,密室的门隐藏在墙壁上的书架中。建筑向外的视线相对抬高,建筑师moon hoon这样描述建筑顶层:“这是一个可用作未来黑武士或绝地武士控制室的高处空间。”
译者: 蝈蝈
korean architecture office moon hoon has recently completed the ‘starwars house’, which loosely references the classic sci-fi series through its overall form, fa?ade articulation, and generally playful spaces. the irregular volume sits among a large grassy site, and has a small building footprint, inclined walls, and a wood deck wrapping two sides. the layout packs two dense levels on the ground and first floors, while the upper story contains an open play room for the family’s children. horizontally-banded windows open up the structure’s eastern corner, while a central atrium provides daylight throughout the interior spaces.
with a desire to have more space and are residential garden, the clients are representative of a current movement in korea, in which young families are moving from the predominant apartment-dwelling population to detached homes. the ‘starwars house’ delivers on the clients’ needs, by providing open play area for the children and also responding to the husband’s childhood dream of becoming an astronaut.
the upper level includes a short slide and secret room, whose door is concealed within the wall’s shelving pattern. with views elevated views to the outside, architect moon hoon describes the top floor as, ‘a place high up that could be a control room for the future darth vader or a jedi.’
韩国郊区的星球大战屋外部实景图
韩国郊区的星球大战屋外部夜景实景图
韩国郊区的星球大战屋内部实景图
韩国郊区的星球大战屋内部局部实景图
韩国郊区的星球大战屋内部房间实景图
韩国郊区的星球大战屋内部房间局部实景图
韩国郊区的星球大战屋总平面图
韩国郊区的星球大战屋屋顶平面图
韩国郊区的星球大战屋东立面图
韩国郊区的星球大战屋立面图
韩国郊区的星球大战屋平面图
韩国郊区的星球大战屋剖面图
客服
消息
收藏
下载
最近


































