查看完整案例


收藏

下载
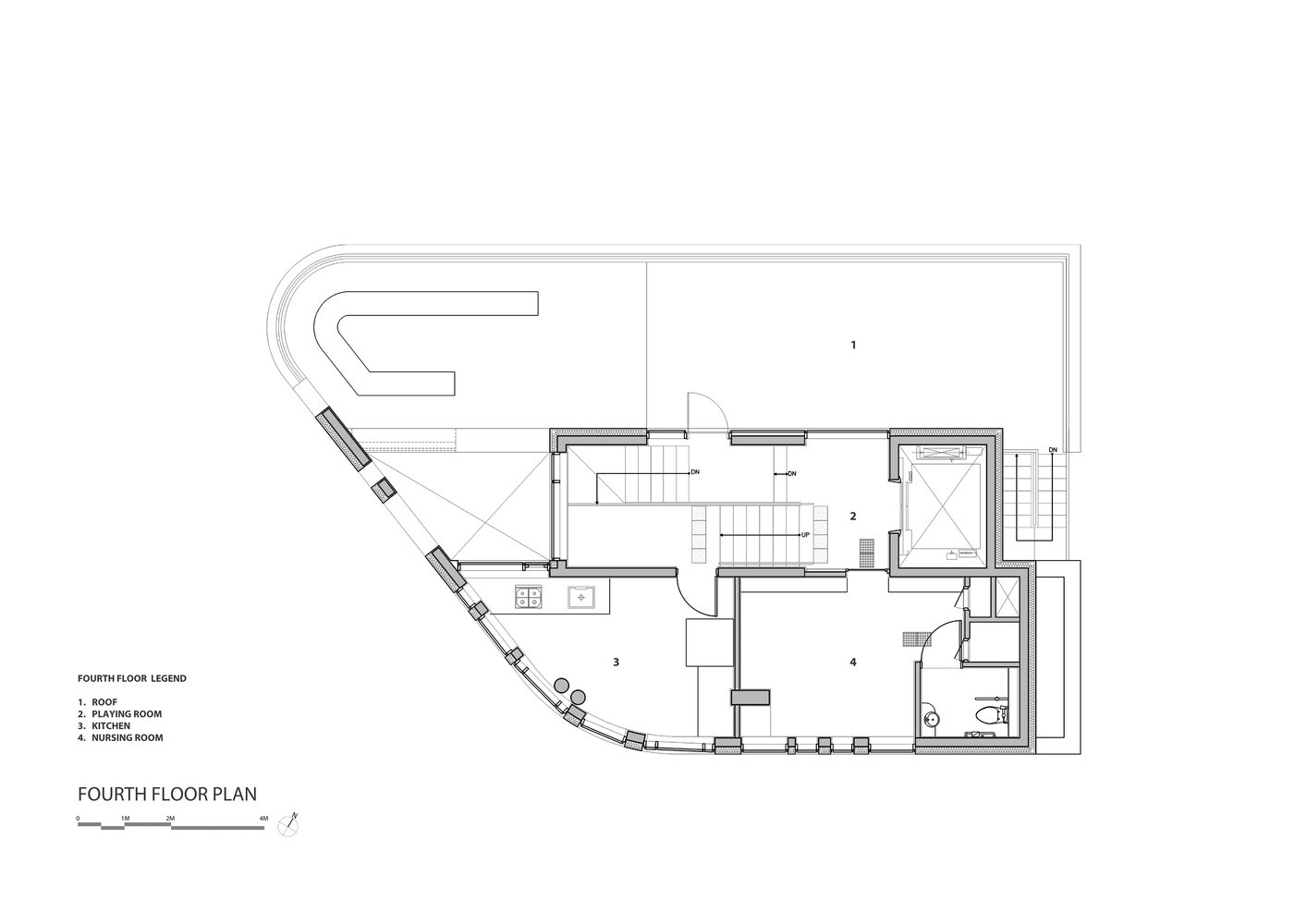
一开始,客户希望在这片不规则的五路交叉口地块上建立一座新幼儿园。场地在周边环境中十分显眼,接近道路边缘的部分有着长长的弧形倒角。正如首尔大多数项目一样,首要前提是获得最大建筑面积,但供给不同年龄段群体使用的5个空间使得建筑能够以线性跳跃的矩形盒子通过中央楼梯与儿童展览空间合为一体。建筑顶层有一间供客户使用的小房间。地下室被设计为公共厨房与餐厅。
建筑立面标志参考摩尔斯密码,分别为低层的儿童和高层的老师和讲师提供内部窗户。
建设开始不久,在混凝土结构刚刚完工时,客户与总承包商发生了冲突,导致工程完全停止。等到事情被解决后已经过去了一年时间,这一延迟使得客户退出了幼儿园的运营。
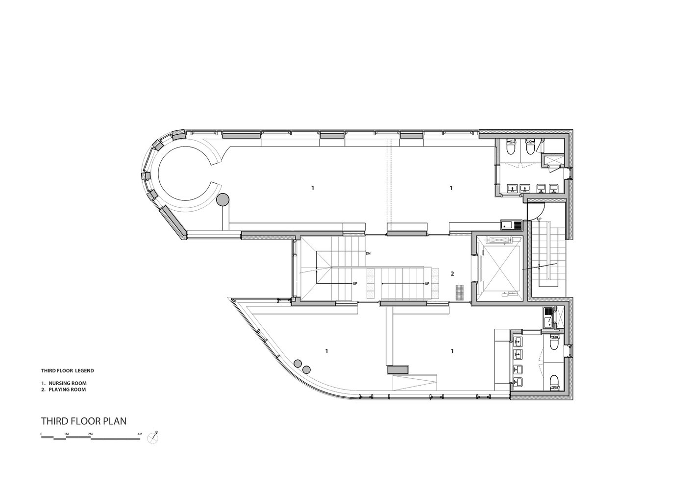
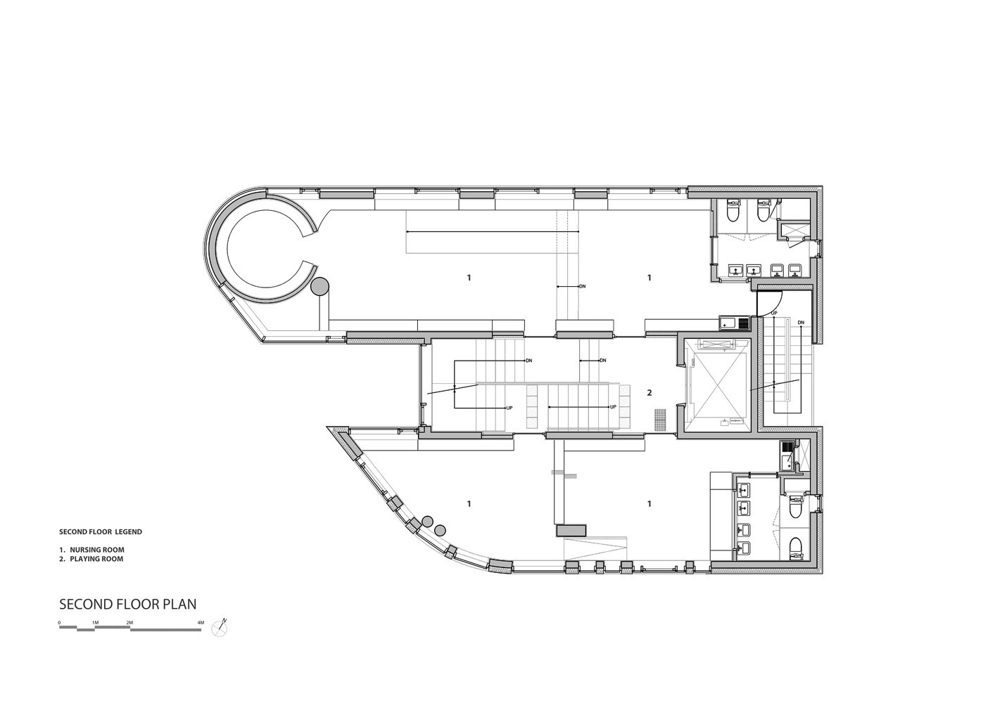
因此在接下来的设计中需要对其更新,项目被改做商业住宅。基础空间组织被原封不动地保留下来,考虑到隐私问题另外增建了墙体形成新的使用空间,这些间隔因此打断了跳跃楼层空间的视觉连续性。总之幸运的是更新设计被新总承建商转化为了现实,摩尔斯密码曲面保留了原初的设计意向和活力。
客服
消息
收藏
下载
最近






























