查看完整案例


收藏

下载
千味涮连城空间里安放2 座各自独立的微型建筑,它们看似分离其实在空间上互相连通的空间感。
我们把它们处理成如同“盒子”一般的量体,而在“盒子”之间形成“凹”状的空间。
视角转换时就会出现时而连接时而分离的现象,而开口又是与量体相互连续的规划,在创造建筑物相互间的关连性。
我们意图让空间里的人与人处于“看与被看”状态及在盒子间不断流动。
我们的目标并不在于创造排除人与人的建筑,而是让充满人与人在空间里能获得更具体的存在感。
▲立面图
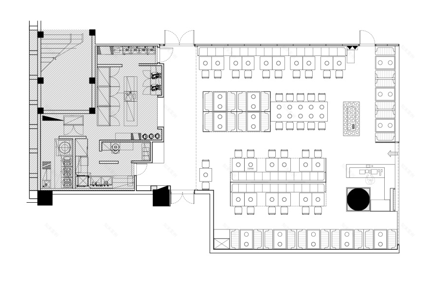
▲平面图
项目信息——
项目名称:千味涮连城新天地店
项目面积:216平方米
主要用材:金刚砂、镀锌板
空间设计:梅蘭工作室
设计主创:周小方
软装设计:张曼
图纸设计:陈鑫、程汉汉
照明设计:埃素灯光设计
摄影:阿贵
客服
消息
收藏
下载
最近
















