查看完整案例


收藏

下载

翻译
Campo Belo Building
The MaxHaus Campo Belo, located it the southern region of Sao Paulo, is designed by the architectural firm RoccoVidal Perkins+Will according to the ideas of businessman Jose Paim de Andrade.
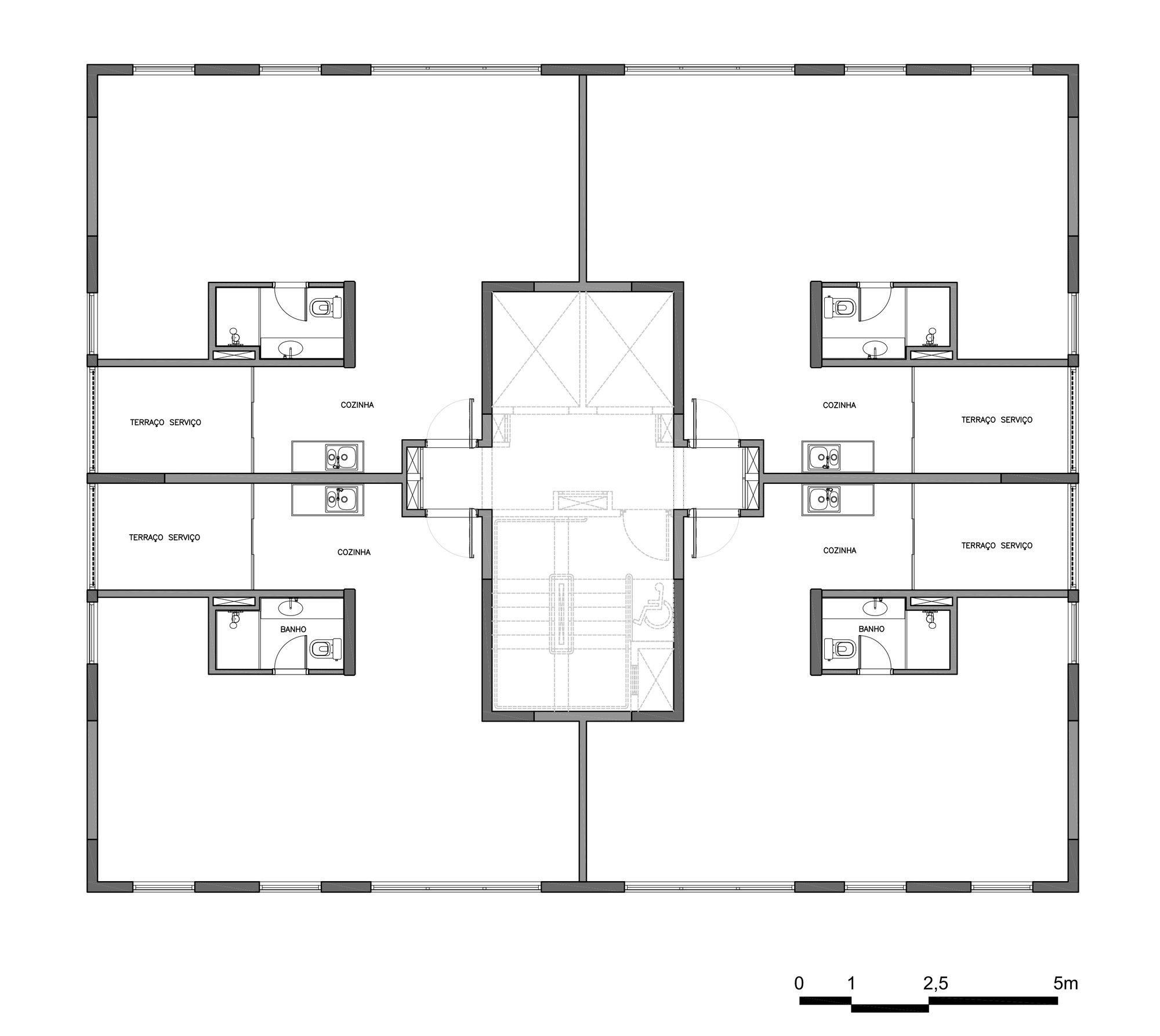
The 17 floor tall building hosts 68 units, each unit being 70 square meters of open space, with the bathrooms being the only closed spaces, while the wiring and plumbing are integrated into the central core of the building.
The versatility of the building is given by the fact that apartments can be merged, even if they are next to each other or one on top of the other.
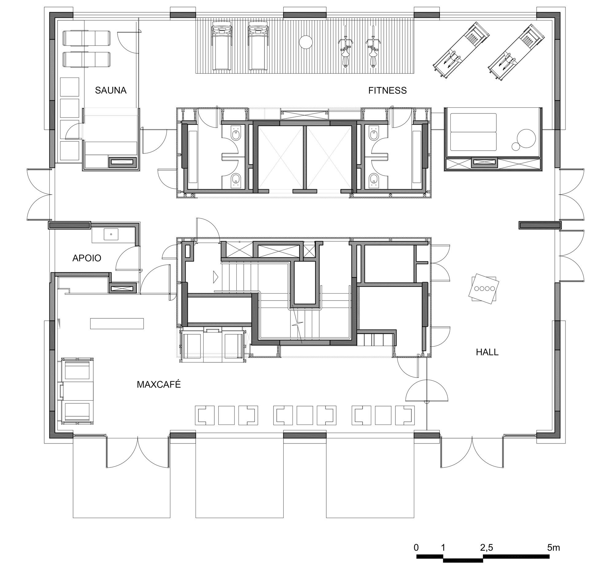
The building has a somewhat industrial vibe, with the white walls combined with exposed concrete. Big cartoon-style paintings cover walls of the elevators and other parts, counterbalancing the industrial elements, which was important to achieve given the fact that the building is residential.
photography by © Daniel Ducci
By:Lidia Ratoi
Architect In Charge: RoccoVidal Perkins+Will, Agres
Interiors : RoccoVidal Perkins+Will
Area: 8400.0 sqm
Photographs: Daniel Ducci
photography by © Daniel Ducci
photography by © Daniel Ducci
photography by © Daniel Ducci
photography by © Daniel Ducci
photography by © Daniel Ducci
photography by © Daniel Ducci
photography by © Daniel Ducci
photography by © Daniel Ducci
photography by © Daniel Ducci
photography by © Daniel Ducci
photography by © Daniel Ducci
photography by © Daniel Ducci
photography by © Daniel Ducci
photography by © Daniel Ducci
photography by © Daniel Ducci
photography by © Daniel Ducci
photography by © Daniel Ducci
photography by © Daniel Ducci
photography by © Daniel Ducci
photography by © Daniel Ducci
plan
plan
details
details
details
details
details
details
elevation
elevation
elevation
sketch
sketch
sketch
sketch
sketch
diagram
客服
消息
收藏
下载
最近







































