查看完整案例


收藏

下载
项目简介
楼盘名称Project Name I 龙湖揽境
项目面积Project Area I 150 m²
房屋结构House Structure I 平层
装修风格Decoration Style I 现代风格
主创团队Creative team I 重庆微观设计
1
设计需求|DESIGN REQUIREMENT
业主自幼在乡间长大,困顿于城市的钢筋水泥,向往属于自己的自然之境;对于居家设计,注重空间设计功能与意境的完美结合,同时强调文化氛围的植入,
希望空间是灵活的、开敞的,会有一些有趣的互动。关于房间的
功能形态有着具体的要求:
客厅设计-
会客方式的多元化
;
餐厅设计
-
Party式的就餐空间;
娱乐设计-个人爱好的充分体现,互动式的享乐空间;
书房设计
-
自然舒适的
阅读方式
;
卧室
设计-
配套
完备舒适的
私密空间;
厨房设计-
参与式的
厨艺空间;
成长设计-
陪伴式的
儿童成长空间
;
储物设计-
各种
家居物件的
便利收纳
。
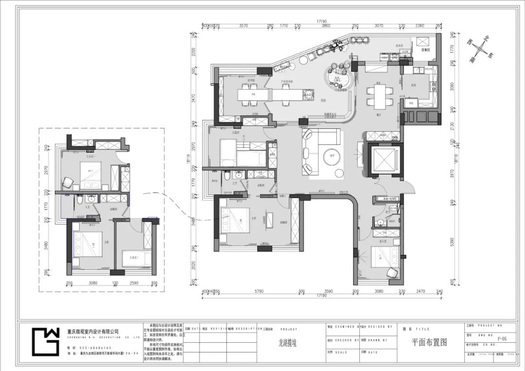
平面布置图|LAYOUT PLAN
平面改造亮点:
为了保证每个空间的利用率,主卧室的设计为可变空间,根据孩子的居住要求可以变成四卧的户型;
老人房的区域和主人房的
区域分流,保证了各自的私密性;
2
案例展示细节 |
ABOUT THE CASE
• 客厅|LIVING ROOM
设计师将客厅的开间加大,增加了会客厅的使用面积,
提倡私人空间和个人世界的独有性,也希望使用者能够从房间里走出来,彼此沟通交流。
干净通透的落地窗,使
得庭院的景色与光线最大程度的映射到室内,
清雅幽静的绿色庭院
带来一种
自然又舒适的
居家氛围
,屋主回到家便可释放掉一天的疲惫和压力
;
业主偏好简洁干练的视觉感官,不喜欢过于复杂的装饰元素。设计师对色彩和材料追求最好的质感,
硬装空间干净舒适,软装家具时尚
现代
,用极简的手法
,把艺术进行了生活化的陈列,让整个空间显得通透而精致;
• 餐厅|DINING ROOM
餐厅色温慵懒而柔和,营造出浪漫温馨的用餐氛围。餐桌的原木质感让空间更加亲切、舒适,形态贯穿室内与室外,
实现了与
大自然的无缝连接。
透明门窗则保证了良好采光,让视野畅通无阻;
• 书房|STUDY
屋主对书房的设计极为看重,希望家里有一处可以静下心来学习的地方,在提升自我的同时也能培养孩子喜爱阅读的好习惯;
书房分为室内与室外两部分,设计师将原本书房到庭院的隔墙改成了玻璃隔墙,花园的美景可以借此引入房间内,在不拘一格的形态关系中,拉升了空间层次,调和得恰到好处。
• 衣帽间|CLOAKROOM
衣帽间的柜体采用通顶式设计,不浪费一点地方,款式简洁美观。镂空的屏风隔断让空间的衔接更加自然,增加美感的同时也保证了空间私密性;
• 主卧|MASTER ROOM
主卧以低饱和度的色调为主,每一处细节都饱含着设计者的细致与用心。
背景墙在灯带的加持下
凸出
精致舒适的睡眠
氛围;
大落地窗的配置是业主的心头好。夜里,在月亮与星星的陪伴中入睡。清晨,迎着第一缕阳光醒来,开始新一天的工作和生活;
• 花园|GARDEN
设计师将业主儿时与自然亲近的时光融入到庭院设计里。那怀旧的滴水屋檐和石缸都承载了业主
美好的童年记忆。
每逢雨天,清脆的雨声沿着屋檐滴落满地,便让他回忆起小时候在外婆家生活的欢乐片段;
那些在乡间自由奔跑、河里抓鱼、田地里抓泥鳅的场景变得如此清晰,彷佛就在眼前...
3
手绘视频|HAND-DRAWN VIDEO
4
空间模型|DIAGRAM
左右滑动查看更多
往 期
案 例
-
重庆微观设计打造
花湖汀 ·350㎡
万科御澜道
·180㎡
常青藤·500㎡
- END -
部分荣誉
Awards
WDC世界设计师联盟会员
重庆建筑室内设计联合会常务副会长单位
木兰会常务副会长
设计口碑榜.设计师诚信体系认证AAAA设计师
重庆市九龙坡区设计产业商会监事长单位
第四届金瓦奖十大杰出设计机构
金瓦奖住宅空间金奖得主
“伦敦地产设计”2019杰出大奖(英国)
“美国星火奖” 2019年优秀作品奖 (美国)
“法国双面神奖”2019年别墅空间设计创意设计奖(法国)
“意大利A设计奖”2019年住宅空间银奖(意大利)
“金创意奖”2019年餐饮空间/国际创新设计奖(中国)
“金外滩奖”2019年创新设计类优秀奖(中国)
“最美雅奢空间设计奖”2019年度优秀雅奢设计奖(中国)
“金瓦奖”2019年住宅空间银奖(中国)
重庆微观设计
硬装设计|软装设计|全案设计|花园设计
咨询设计
TEL:15002387595
中国•重庆市九龙坡区万象城华润大厦13a-4
MON-SAT 9:30AM-6:30PM
客服
消息
收藏
下载
最近


























