查看完整案例


收藏

下载
项目简介
楼盘名称Project Name I 约克郡
项目面积Project Area I 405 m²
房屋结构House Structure I 联排别墅
装修风格Decoration Style I 自然风格
主创团队Creative team I 重庆微观设计
1
设计需求|DESIGN REQUIREMENT
业主具有较高审美,并拥有追求美好事物的理念,希望得到高标准的设计服务;他们崇尚简单自然的生活,希望设计团队在满足基本居家功能的基础上对品质和舒适度有所提升;设计师将
本案定位为自然风格,
提炼出简约、自然、生活这几个关键词来衍生设计,将设计美学与当代艺术融合,通过宽阔的空间呈现出一种安静的力量,释放出怡然自得的生活情趣。
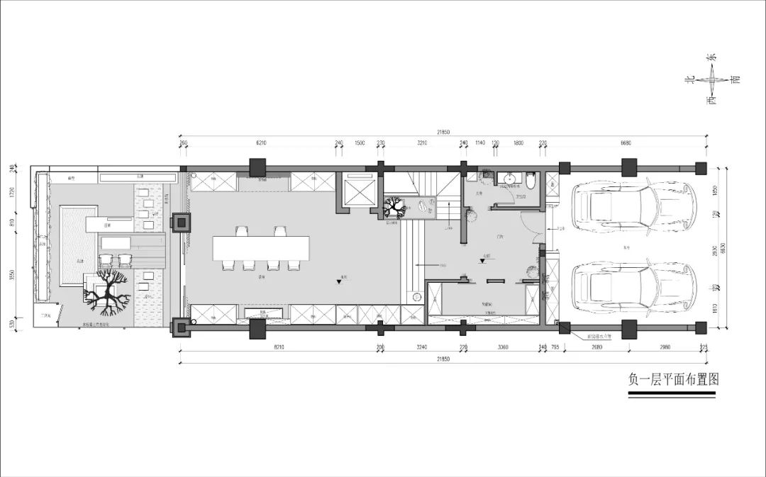
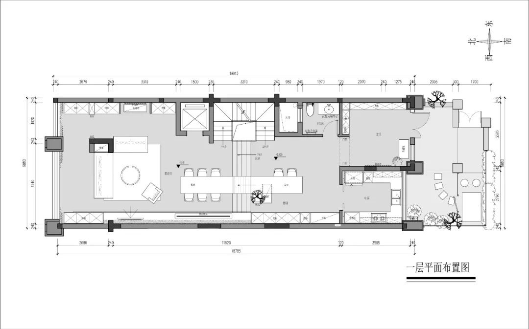
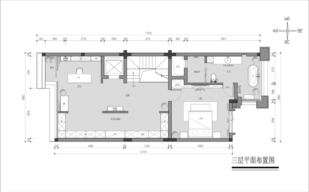
平面布置图|LAYOUT PLAN
左右滑动查看
2
案例展示细节 |
ABOUT THE CASE
• 客厅|LIVING ROOM
设计师将客厅、餐厅等“动区”放在了阳光充沛的一层,进门口还加入了入户花园,让户型布局变得更加开阔,阳光和风可以自由穿行,通透无比;
• 餐厅|DINING AREA
设计师利用客餐厅阶梯之间的高低差,设计了一处别具一格的餐岛台,轻巧的将两个空间紧密的联系在了一起,借此拉近了家人之间的距离。跳跃的壁炉火花映衬着粗犷的石材背景墙,冷与暖的碰撞恰到好处,烘托出
热闹、祥和的聚餐氛围
。
• 茶室|TEA HOUSE
负一层为佛堂和品茶区,让业主在品茶坐思的间隙,也能觅得悠闲意趣,就如设计师想要呈现的生活方式一般,疲惫时刻可在此歇息,和日光作伴,与月光相望,放下繁琐和复杂,享受生活。
• 家庭休闲厅|LEISURE ROOM
二楼家庭公共厅
,这是属于家庭成员的专属娱乐空间,
观影、阅读、聊天均可任意安排
。顶上的“仿天光
”
灯光设计,打破了空间的沉闷、黑暗,让光源有了流动之感。
• 主卧|MASTER ROOM
三楼为主卧套房区域,设计师致力于静谧空间的打造,棉、麻、藤等
家具
材质熟练运用,让居室在柔和中不失精致,低饱和度的空间配色,简洁优雅。
• 主卫|BATHROOM
主卫采用干湿分离,设置淋浴和浴缸,满足不同的洗浴要求;圆形台上盆与方形浴室镜搭配,高级大气,室内采光通透,也能满足隐私需要。
• 衣帽间|CLOAKROOM
宽敞的衣帽间
充分满足了家居收纳的需求,大大小小的柜体里面
收藏着居住者生活里的热爱,
不需要繁复与刻意的装饰,温暖的光线给与空间真实、自然、慵懒的氛围
。
• 书房|STUDY
开放式的书房,惬意舒适。阳光从窗外照射进来,刺眼的光触碰到白色纱帘,光影伴随微风摇曳,变得柔和
了
许多。业主可在此尽情享受安定和平静,专心学习。
• 花园|THE GARDEN
室外花园和屋内有着同样的设计语言,除了给予业主静谧的休闲空间,更是装扮出美丽的绿色善意,充满诗意的闲适氛围悄然而生。
3
空间模型|DIAGRAM
左右滑动查看更多
4
花园手绘视频|GARDEN HAND PAITING
往 期
案 例
-
重庆微观设计打造
舜山府·245㎡
龙湖揽境·190㎡
- END -
部分荣誉
Awards
WDC世界设计师联盟会员
重庆建筑室内设计联合会常务副会长单位
木兰会常务副会长
设计口碑榜.设计师诚信体系认证AAAA设计师
重庆市九龙坡区设计产业商会监事长单位
第四届金瓦奖十大杰出设计机构
金瓦奖住宅空间金奖得主
“伦敦地产设计”2019杰出大奖(英国)
“美国星火奖” 2019年优秀作品奖 (美国)
“法国双面神奖”2019年别墅空间设计创意设计奖(法国)
“意大利A设计奖”2019年住宅空间银奖(意大利)
“金创意奖”2019年餐饮空间/国际创新设计奖(中国)
“金外滩奖”2019年创新设计类优秀奖(中国)
“最美雅奢空间设计奖”2019年度优秀雅奢设计奖(中国)
“金瓦奖”2019年住宅空间银奖(中国)
重庆微观设计
硬装设计|软装设计|全案设计|花园设计
咨询设计
TEL:15002387595
中国•重庆市九龙坡区万象城华润大厦13a-4
MON-SAT 9:30AM-6:30PM
客服
消息
收藏
下载
最近






























