查看完整案例


收藏

下载
项目简介
楼盘名称Project Name I 万科御澜道
项目面积Project Area I 180m²
房屋结构House Structure I 三室两厅
装修风格Decoration Style I 现代风格
主创团队Creative team I 重庆微观设计
1
设计需求|DESIGN REQUIREMENT
本案业主是一位时尚前卫且性格有些大大咧咧的90后大男孩,交流中不难发现其风趣幽默的一面,机缘巧合之下找到我们对空间进行重新规划设计: 要时尚,却不要复杂,要简单,却不要无趣;希望通过合理的布局实现收纳最大化,公共区域的开阔性很重要,注重高品质的居住体验感,更重视亲友之间的互动以及日常聚会的使用需求。
原始结构图|ORICINAL STRUCTURE
原始结构图分析
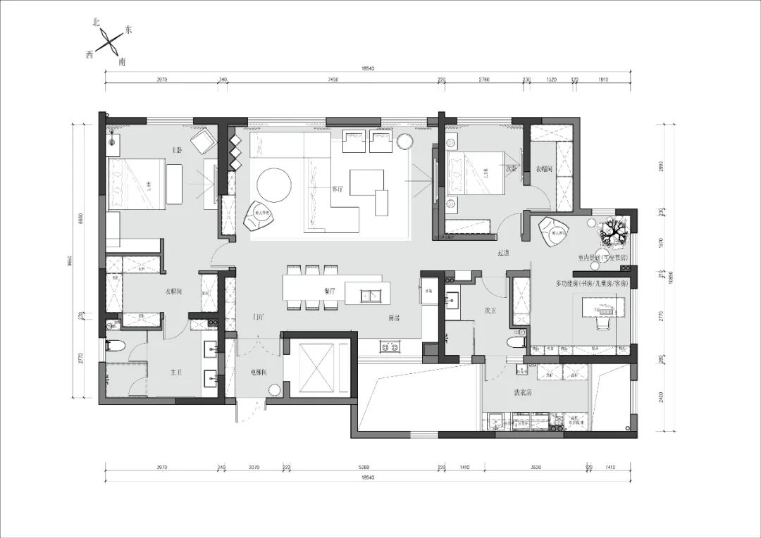
优点:大横厅的结构,视野开阔,户型方正。
缺点:厨房较小;次卧室较小;主卧门紧挨着客厅,无私密性
平面布置图|LAYOUT PLAN
2
案例展示细节 |
ABOUT THE CASE
• 客厅|LIVING ROOM
入户处的木饰面护墙设计了一整壁大型的收纳柜,集合鞋柜、书柜等多功能收纳形式;通往主卧的隐形门嵌入其中,与柜体形成统一的整体,给予了居家的小惊喜。
客厅未设主灯,而是以射灯、筒灯和灯带营造平静温和的氛围。电视机按照尺寸妥帖的嵌进爵士白墙面里,没有冗杂的装饰,却更能体现隐藏在细节里的诚意。
客厅里的黑色牛皮沙发隐隐泛光,上面的褶皱清晰可见,Z字型的不对称布局将空间划分为动静结合的左右分区,可同时满足多人交互、娱乐的功能。
特意定制的地毯和浅灰色的地砖与空间色调契合,没有喧宾夺主之物,整体散发着一股恰到好处的温暖气息。书柜的造型错落有致,让空间充满层次感和趣味性。
舒适的橘色单人椅仿佛是为业主量身定做的,感到疲惫时,起身眺望远处的景致,便可让身心得到放松。
• 餐厅|DINING ROOM
原始厨房封闭且操作台分散
,
设计师将其墙体拆除,改成了客餐厨一体化的宽阔格局,动线更加流畅。屋主可在烹饪美食的同时与
宾客互动交流,欢聚时光也随之变得美好。
考虑到业主偏西化的生活方式,新增了西厨,餐桌与岛台拼接成在一起,
增加了空间的纵深感和整洁度。
• 多功能房|
MULTI-PURPOSE ROOM
多功能房成为了家里的可变空间,亦可是书房,也可以拓展为孩童娱乐玩耍,或升级为家庭亲子互动空间,可根据居住者不同时间的喜好做出调整
。
一墙之隔的书房,墙面设计了电动壁床,叠放时与周边柜子形成统一整体。
既解决了客人临时居住的需求,又节省了空间,让空间发挥了最大功能性,可谓一举两得。
• 主卧|MASTER ROOM
隐藏门进来便是主卧,与室内过渡的地方引入了玄关,保证了房间的私密性。
设计师将不同色调的“灰”运用于室
内,营造出更具层次感的睡眠空间。
灰色质感漆试验出来的扇形纹理让墙面自带高级感,搭配趣味横生的挂画,给房间带来了生机和暖意。
• 主卫|BATHROOM
主卫内有设立独立的马桶间、淋浴房以及双人位的洗面台设计,增加了空间的使用效率。
在镜面效果下,整个空间显得格外精致。
3
软装方案|SOFT OUTFIT LISTING
客厅
餐厅
多功能房
主卧
左右滑动查看更多
4
空间模型|DIAGRAM
左右滑动查看更多
往 期
案 例
-
重庆微观设计打造
常青藤 ·500㎡
约克郡 ·405㎡
舜山府·245㎡
龙湖揽境·190㎡
- END -
部分荣誉
Awards
WDC世界设计师联盟会员
重庆建筑室内设计联合会常务副会长单位
木兰会常务副会长
设计口碑榜.设计师诚信体系认证AAAA设计师
重庆市九龙坡区设计产业商会监事长单位
第四届金瓦奖十大杰出设计机构
金瓦奖住宅空间金奖得主
“伦敦地产设计”2019杰出大奖(英国)
“美国星火奖” 2019年优秀作品奖 (美国)
“法国双面神奖”2019年别墅空间设计创意设计奖(法国)
“意大利A设计奖”2019年住宅空间银奖(意大利)
“金创意奖”2019年餐饮空间/国际创新设计奖(中国)
“金外滩奖”2019年创新设计类优秀奖(中国)
“最美雅奢空间设计奖”2019年度优秀雅奢设计奖(中国)
“金瓦奖”2019年住宅空间银奖(中国)
重庆微观设计
硬装设计|软装设计|全案设计|花园设计
咨询设计
TEL:15002387595
中国•重庆市九龙坡区万象城华润大厦13a-4
MON-SAT 9:30AM-6:30PM
客服
消息
收藏
下载
最近


































