查看完整案例


收藏

下载
“
在静谧的时光里,不去计较浮华之事,
淡然生活,没有轰轰烈烈,
从平凡的喜欢里得到力量和快乐,
我们的家就是我们喜欢的状态。”
项目简介
楼盘名称Project Name I 龙湖揽境
项目面积Project Area I 190m²
房屋结构House Structure I 四室两厅
装修风格Decoration Style I 去风格化
主创团队Creative team I 重庆微观设计
1
设计需求|DESIGN REQUIREMENT
本案业主是一对从事艺术工作的甜蜜夫妇,拥有一个可爱的小公主,一家人其乐融融;对于新房的设计风格,他们有着自己的想法,不喜欢随波逐流,拒绝复制粘贴的设计,希望改造后的居所可以为生活带来不一样的惊喜,既要有家的温馨和人情味,又要充满个性化、艺术感的装饰效果;
男女主人都是美食热爱者,因此要求厨房要够宽敞,偏爱
中西厨结合的方式
,可以尽情享受烹饪带来的乐趣;
家中有老人、小孩,需要充足的
收纳空间满足生活所需。另外,业主对休闲娱乐功能也有要求,在家可以举办各种Party。
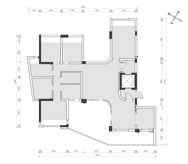
原始结构图|ORICINAL STRUCTURE
原始结构图分析
优点:户型方正,南北通透,自带空中花园,采光通风性能俱佳。
缺点:客厅开间尺寸不足,卧室和卫生间面积较小。
平面布置图|LAYOUT PLAN
2
案例展示细节 |
ABOUT THE CASE
• 客厅|LIVING ROOM
客厅的开间略微局促,为了营造一种视觉上的延伸感,设计师将庭院景色最大的引入室内,让两个空间彼此之间有了互动和交融;反复打磨的铜板与粗犷的石材形成了鲜明的质感差异,随风摇曳的雾化壁炉给整个居室增添了几分温馨与灵动。
• 餐厅|DINING ROOM
餐厅到阳台的墙面改装成了全落地窗,将阳光最大化的引入室内,视野变得更加开阔。餐桌与阳台上的吧台相互串联,增加了空间的互动性,
开放式厨房的格局可以让居住者尽情享受中西式烹饪的乐趣与浪漫。
• 庭院|COURTYARD
下沉式的庭院让整个空间的层次感更加丰富,庭院内花香四溢,芳草青翠欲滴,郁郁葱葱的连成一片。风起时,这些绿色“精灵”们如同大自然的舞者
随风摇曳、婀娜多姿
,似乎和女主人一样对舞蹈有着天生的热爱。
• 主卧|MASTER ROOM
主卧硬装采用了粗犷的材质,包裹状的外形设计为居住者带来一种居家安全感,身心得以完全放松,从而保证了睡眠质量。
卧室与庭院之间以整块玻璃作为隔断,庭院美景一览无余。晨起时分,阳光、绿植、自然香气,尽在方寸之间,时光变得悠然美好。
主卧部分区域做了抬高处理,使整个空间的层次感更加丰富,视线无任何遮挡,业主即便躺在床上也可以观看到庭院美景,让人心生愉悦
。
• 主卫|BATHROOM
设计师精心设计了超长的弧形台面,从外观上巧妙的掩盖了原本
不规则
结构中的缺憾,让整个盥洗室显得更加大气整洁,同时也提高了空间利用率
。
3
软装方案|SOFT OUTFIT LISTING
左右滑动查看更多
4
空间模型|DIAGRAM
左右滑动查看更多
- END -
部分荣誉
Awards
重庆建筑室内设计联合会常务副会长单位
木兰会常务副会长
设计口碑榜.设计师诚信体系认证AAAA设计师
重庆市九龙坡区设计产业商会监事长单位
第四届金瓦奖十大杰出设计机构
金瓦奖住宅空间金奖得主
“伦敦地产设计”2019杰出大奖(英国)
“美国星火奖” 2019年优秀作品奖 (美国)
“法国双面神奖”2019年别墅空间设计创意设计奖(法国)
“意大利A设计奖”2019年住宅空间银奖(意大利)
“金创意奖”2019年餐饮空间/国际创新设计奖(中国)
“金外滩奖”2019年创新设计类优秀奖(中国)
“最美雅奢空间设计奖”2019年度优秀雅奢设计奖(中国)
“金瓦奖”2019年住宅空间银奖(中国)
重庆微观设计
硬装设计|软装设计|全案设计|花园设计
咨询设计
TEL:15002387595
中国•重庆市九龙坡区万象城华润大厦13a-4
MON-SAT 9:30AM-6:30PM
客服
消息
收藏
下载
最近



























