查看完整案例


收藏

下载
“你要宣扬你的一切,不必用你的言语,要用你的本来面目。”
– Jean-Jacques Rousseau
当下小型建筑的室内设计面临着一个普遍的问题:如何统一建筑师与室内设计师的视角?
在完成一个3000~5000m²小型建筑设计时,建筑师通常会用一个1:100左右的等比例模型视野在脑海或SKETCHUP中勾勒出自己想要表达的思想,去思考与场地、环境以及功能之间的大尺度关系。此时,建筑本身的内部详细功能往往没有确定下来,建筑的层高、入口、开窗面积等也主要是以建筑形体比例为主导对象设定的。
尤其是拥有大面积现代风格幕墙的建筑中,这就给后面介入的的室内设计师带来了巨大的挑战——该如何充分去结合建筑视角感受的同时满足内部空间视角设计?
HOW TO DO
Deconstruct
空间三重奏
本案的建筑是盒子与盒子的连接交错,整体是立方体的空间形态,一共四层,在交错的的关系下也能紧密的联系着每一个空间形态,将这种空间关系注入设计,而非纯粹将意念化为形态,让人们打破对陌生城市的介怀,沉浸在充满现代感的氛围之中。
建筑给予的空间
切分空间的痕迹
利用原有的建筑结构的“T”形结构,室内将二层和三层的挑空层整体考虑,在大结构中去切分空间,再结合墙顶的同种原木材质、挑空幕墙形成的半透明盒子。
三个承载着主功能的体块呈L型排布,空间节奏及动线的预设,是主导体验的感性运动,为建筑外立面展示相应比例视角的室内组织痕迹。
为室内的各个部分带来串联却又独立的可能性。
让高差来区分功能空间也是常见的建筑语言,近8米的挑空让空间流动,我们不把空间作为一种消极静止地存在,而是把它看作一种生动的力量,赋予韵律与起伏。
垂直而上的吸引力
HOW TO DO
Community
社区形态模拟
上海这个拥有3000万人口的国际化城市,既多元化又含有一定的文化扁平化特征。各种思潮被压缩在了特定的框架下,这也正是当代青年的生活写照——与社会、生活抗争。追溯城市发展史,宝山一直以丰富而交织的层次与肌理渐次生长,它需要一个可以包容城市的历史并抒写城市未来的建筑空间。
设计师从中得到启发,把核心要素打造成一个新的生活形态模式:
文化夹心饼干
。
代表着条条框框的本质元素以强制性模数分割存在,而夹在之间的各种材料也以自身的形式陈述着文化意识形态——热情、自由、传统、民族、地域...随着行进的过程和视角的变化,不断地展现给受众。
在核心建筑中注入一个核心元素,贯穿整个空间流线,作为区间核心点,链接着各种功能空间。如同其它留存下来的纪念碑一样,这些建筑元素存在的意义和重要性比一幢具有单一功能的建筑的寿命更加长久。
四层的16米挑空则将整个空间节奏演绎到最高潮,建筑艺术依赖于结构,但不受结构限制,它从结构中产生,反过来又要求精心制作结构,楼梯以挑空区和巨大幕墙为前提因素,尺度和等级也因此在视觉上的放大。
而
想象需要被预留空间。整个“空间”内因灰色+木色的关系、虚实切换,不断焕新人们对空间的固有认知。玻璃幕墙取代实体墙,划分,虚实相接、轻重有度。这些既非透明也不是密封的建筑外皮,以柔和的光线和内部阴影凸显空间层次感。
在建筑构件和室内设计的部分都可以看到类似的处理方式,贯穿空间的木格栅和灰色的墙面肌理;竖向的落地幕墙;挑空区垂直向上的楼梯;顶上光膜横向方格分割。木格栅的元素最开始的使用是在墙面上,我们希望放大元素的使用范围。
你是哪块“小饼干”
设计以“咖啡馆”概念承载过去与未来的合鸣,【年轻怪诞】语言成为串联空间脉络的主轴,轻松趣味的氛围但不失内敛。“奥利奥”形象不经意闯入脑海中,历史悠久实力强大不甘落后勇于创新,也贴合地区的发展趋势。
将“奥利奥“概念换取,采用全新夹心与表皮,注入创意与想象力,运用内敛含蓄的木格栅作为外皮,多元化的夹心材质运用其中,似一种年轻的力量急迫冲出表皮展现丰富内心。元素的着重刻画,可认为是把空间视为一个具有生命力的载体,而非形体,制造出统一的节奏和具有高度识别性的设计语言。沉稳的木格栅为元素作为空间的肌理,产生了严肃的乐趣和欢乐的正经。
能用一个盒子解决的,不用两个盒子。
如何实现可控的边界?是这次设计过程中一直被重复探讨的问题,从入口的接待区,就进入盒子和格栅的游戏,旋转45°的格栅墙,引导进入另一空间,间隙空间的引导作用,采用无实墙的处理。
“盒中盒“影音室作为屏障间隔开两个功能空间,无实墙的出入方式总让人有一种神秘感。边界被适当地表现出来,那么内部就可以看作是它的领域,抵消也可以是开创的一部分。
从入口的接待区都挑空区楼梯,它们不是单一出现一个空间当中,而是用整体归纳的方式被使用,多形式和重复出现的方式,包括对应的材质在家具上的使用,都如同在记忆中放大了的样子。有相似性的同时存在差异,让各个部分的变化保持着一种关联性。
有了间隙的存在,事物才能保持良好的通风透气,形成一种柔软又坚韧的感觉。也通过人被社会压榨着努力工作的状态,来说明隙间的意义所在。设计者希望空间可以存在让人喘一口气的属性,能够在隙间的缝隙中自由变换。打破混凝土的沉闷,让建筑展现出与人的身体相贴合的自然间隙也可以令空间变得自由。
挑空区楼梯作为空间中的视觉焦点而存在,其独特性尤为重要。格栅元素内衬夹心的使用一是为加强其特性,也为更好的与建筑整体风格有所呼应—内敛、年轻,丰富。
我们所强调并不是整齐划一的元素拼贴术,而是塑造人与人有交流氛围的空间 ,厚重的建筑立面捕捉了自然的天光,将行人的目光聚焦挑空区。
在整个项目空间的改造中,试图使用”泛光”的植入达到不同程度上的空间交叠关系。我们在洽谈区的顶部中间设置了光膜,与幕墙一起,营造四面“天光”氛围,形成一种匀质的、笼罩性的光线。光在这里的作用是柔和建筑内部空间与外部空间。淡化洽谈区的功能分隔,由艺术装置界定,再次创造空间与视觉上的虚实感受。
空间之中置入大量文创艺术品,既有位现代生活创造惊喜的趣味艺术,为年轻增添温度,同时也具有未来机械金属质感的艺术陈列品展现品质的自由之美。
对空间的体验,像是一次年轻热血的艺术旅行。
怪兽电力乐园 Go ahead, Go grow up
色块分割的纯净空间,玩具、怪兽伙伴都在身边,创造童年幻想世界中的奇幻乐园
空间是空的,注入元素便是赋予肌理,便是一种对城市肌理的重新反馈,在空间的表皮进行开孔,是透过空间去观看城市,或者从空间去看城市。
“从这面到那面,城市的各种形象在不断翻番,
但是却没有厚度,只有正反两面:
就像一张两面都有画的纸,两幅画既不能分开,也不能对看。”
-Italo Calvino
说在最后,制作花絮
在体现出项目最终效果的同时,我们也更希望制作的片段能以视觉的方式在记忆中形成一个相对完整的碎片整体,每一个视觉停顿点,对间隙空间进行开口,似离而合的格局形成一种连接。
挑空区施工过程
光膜施工过程
隔栅施工过程
艺术装置安装过程
项目名称 | 中集金地美兰城
地理位置 | 上海宝山
完成时间 | 2020年1月
项目面积 | 1700m²
建筑设计 | 上海致逸建筑设计有限公司
景观设计 | 上海罗朗景观工程设计有限公司
室内设计 | DOME&ASSOCIATES董世建筑
硬装团队 | 潘振菲、代林燕、赵予晴、王明铭
软装团队 | 黄钰蓉、张若霖、任轲霖
甲方团队 | 张育涛、朱平辉
设计指导 | 董文鹏、顾闻
室内摄影 | 筑技摄影、夏侯全生
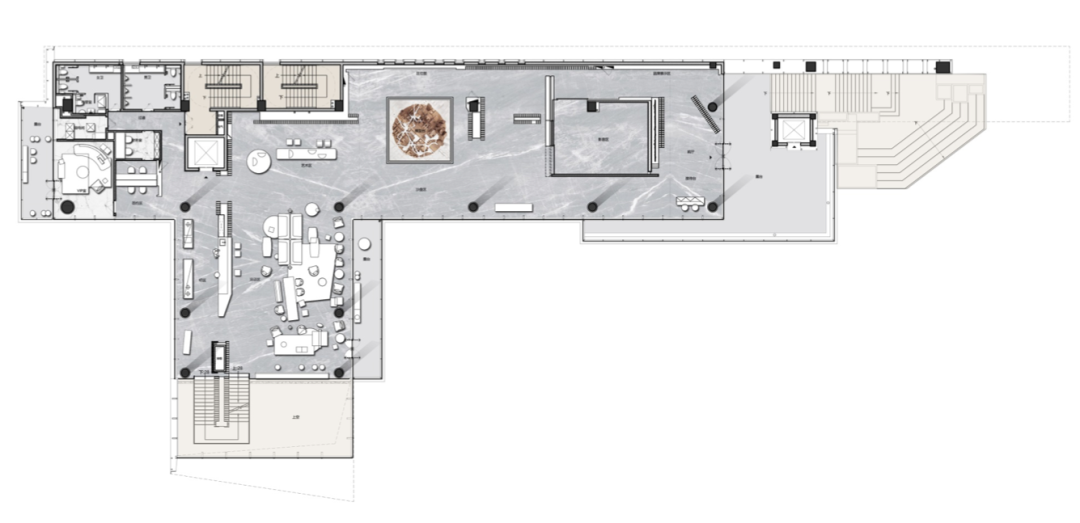
1F平面图
2F平面图
3F平面图
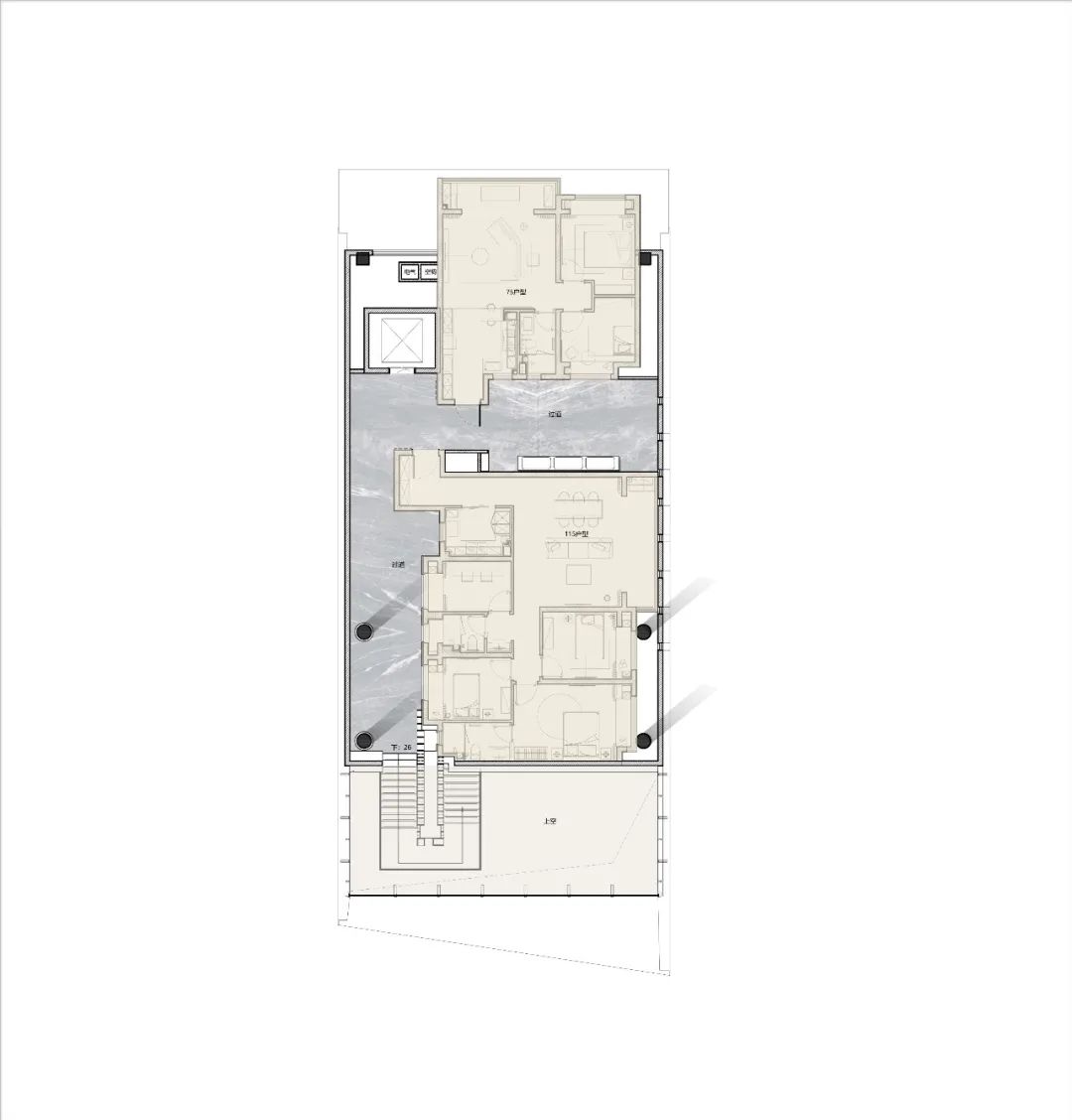
4F平面图
更多作品
武汉·格林格林
苏州·兰亭都荟
合肥
·
湖语时光
苏州·原溪
想了解更多可浏览官方网站
媒体联络
:Sina weibo: @董世建筑
Instagram:
@dome_associates
建筑设计|室内设计|艺术咨询
董 世 建 筑
DOME&ASSOCIATES
客服
消息
收藏
下载
最近





























































