查看完整案例


收藏

下载
杭州确实有很多贵的房子,但也还有不少亲民的房子。正是这些房子的存在,让很多人真实感觉到,自己与这座城市间,还是有着很强的现实联系的。最新扮演这种“国民性”理想房源的,就是
秋实宸悦居
。
本案位
处杭州崇贤
新城,崇贤古时就是一个商贾重镇,运河出拱宸桥后,最先一个补给站就在这里;
船队回来后,一经这里,船员们也就知道离家很近了。
崇贤体现的是这座城市的包容度,更重要的是居住
和生活便捷,是主城生活的一部分。
秋实宸悦居案名的底版,其实是“秋石宸悦”,它就坐落于秋石高架出口约一公里的崇贤新城,后觉得“秋实”更有意境,有种人生沉甸甸的收获之感,故改名“秋实宸悦”。
设计师希望空间
给予人的第一印象
是
大气、静雅、让人心宁神静的。
我们抛离开繁杂,更为克制隐忍地表达空间的意蕴之美。
设计初始便筑起一个兼容并蓄的架构,以对人的思考
为本源,
构架一个专属都市人的纯净空间。
洽谈区把控空间的整体气韵外,
更多地融入了地缘元素。
简洁流线的相辅反而使得空间更有张力。
顺延空间肌理走到洽谈区一端,
蜿蜒而上的阶梯成为空间的一处亮点。
艺术装置底座启迪于自然形,呈现山岩状,
透过独特工艺打磨出台面的湖面水感,
旨在描摹出杭州的一派山水柔情、盈盈自然。
空间整体以米白、浅咖为主色调,点缀蓝、绿色彩,
调和出令人倍感心安神定的温馨氛围,
为居者提供一处倍感温暖的港湾。
设计是一种改造客观世界的构思和想法,
而设计的原点更应回归到生活的层面,
并以此为基础,
去融入真正贴合目标客群所思所想的“艺趣”生活。
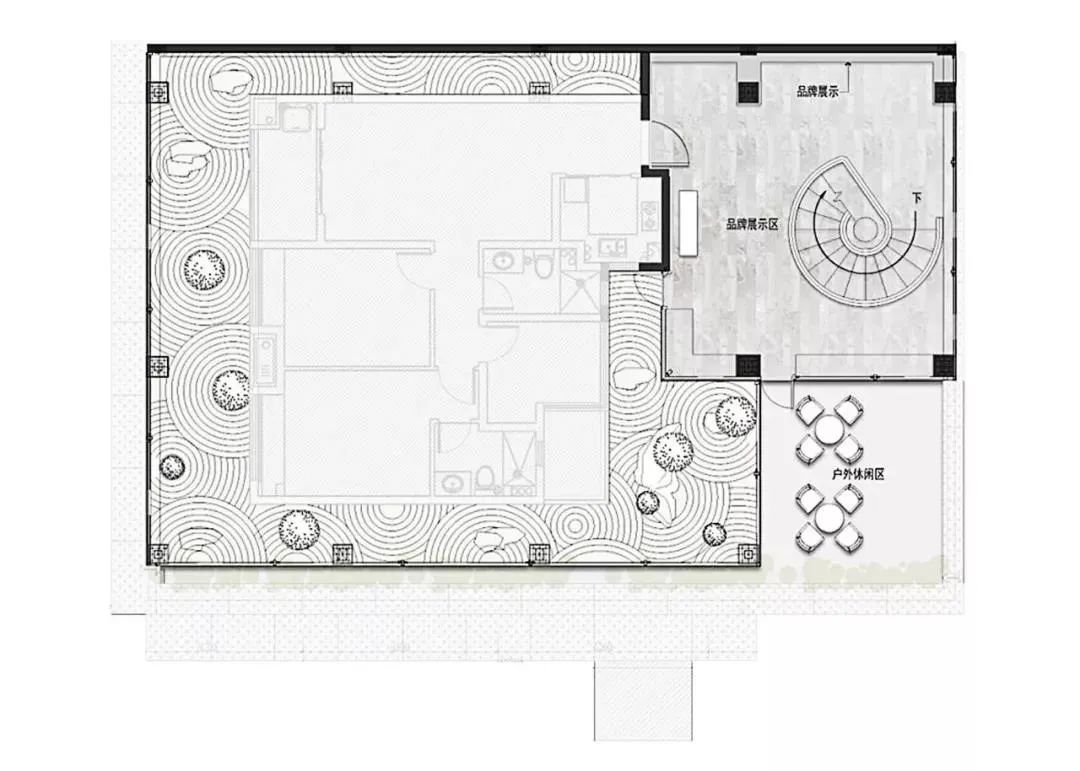
售楼处平面
项目名称:
杭州 | 秋实宸悦
业主单位:
西房集团、东原集团、港龙集团
项目地点:
杭州 崇贤新城
。
客服
消息
收藏
下载
最近


























