查看完整案例


收藏

下载
近期,华艺设计参与了“绵阳科技城新区规划概念方案”五个地块的国际性招投标,分别为:金融街区地块(包 1)、科技大会堂地块(包 2)、云上大学城地块(包 3)、科技服务中心地块(包 4)及科创中心地块(包 5),经过一系列激烈的角逐,最终中标云上大学城(包 3)及科创中心(包 5)两个地块!
01 项目背景—绵阳科技城新区地处绵宏路与科技城大道城市发展主轴交汇区,依托安昌河、鼓楼山等生态资源,致力打造融合山、河、城、湖于一体,独一无二的未来科技城新中心。中心强调科技城特色,竭力将各类科技研发服务平台、高新技术企业总部、城市级综合商务服务功能与公共服务设施集中布置,以绿色、低碳、科技、智慧等理念,建造成为科技城新区的先行示范区及山水城市生态标杆区。
⊙片区规划结构
为充分发挥绵阳科技新区对绵阳城市发展的引领和推动作用,加快把新区打造成创新新引擎、产业新高地、城市新空间,科技城新区拟在新区直管区科技之心及周边区域新建部分城市级公共服务设施,以满足全市公共服务设施使用需要。
为此,科技城新区面向社会公开征集 5 宗地块的概念方案。
⊙
整体规划理念
新区以“玉带环腰,科技引领”为核心规划理念,核心片区依托安昌河与鼓楼山形成自然生态带,构筑科技之心、人文之心、生态之心三足鼎立之势,并以中心景观为核心,同时形成三条控制性轴线。科技大会堂地块(包 2)为片区核心,新城门户,凸显标志性;金融街区地块(包 1)为新城边界,体现滨河生态办公;云上大学城地块(包 3)展示学术人文;科创中心地块(包 5)为中轴对景,强调庄重统领性,科技服务中心地块(包 4)作为功能辅助位于其次。
02云上大学城
—
云上大学城地块(包 3)以“互联网+教育”为主线,为重点高校及科研院提供优质的教育平台,方案充分展现出新区学术人文与科技感、现代感的融合理念。
⊙云上大学城效果图
设计团队意在建立一处打破认知、创造联结、跨界融合的理想环境,并通过演绎产学研一体化,打造联系高校与企业的纽带平台,从而实现教育科研与高效创造的融合;同时以满足教研一体的联合工作模式,营造互动共享的人才社交中心,打造活力公开的社会展示窗口为三大主攻方向,实现覆盖“基础教育、应用基础研究、技术攻关、成果转化”的全融通全链条创新体系。
基于此定位,方案采取了开放、共生、渗透三大设计策略:
以开放的姿态介入城市,包容创造;
以共生的格局聚合不同资源,优化升级;
以渗透的方式打破传统格局,实现革新。
⊙云上大学城效果图
方案以“云径·叠城”为设计概念,将不同功能体量垂直叠加为两栋塔楼,环绕而上的“云径”则串联起服务两者的共享功能和休闲场所,实现创新型产学研共生聚落。
⊙云上大学城设计概念
项目用地方正,方案结合容量需求与周边城市肌理生成“裙房+两栋塔楼“的基本体量;裙房底层架空,吸纳公众参与,内部立体中庭环绕而上,串联公共开放功能;教学与产研体块垂直堆叠,顺应城市趋势形成高低双塔,高效聚合;环绕塔楼而上的“云径”联结两侧功能体块,模糊边界,创造共享交互空间。
⊙云上大学城体块生成
开放格局,公众互动:方案
将外向开放的功能布置在裙房基座,吸纳公众参与和互动。内部环绕而上的立体中庭串联公共开放功能,打造趣味活力的核心交流场所,实现无边界的交流与思维碰撞。
⊙开放格局,公众互动
⊙云上大学城效果图
⊙云上大学城
效果图
垂直聚合,弹性生长:垂直维度将教学和产研等功能堆叠形成两栋塔楼,顺应城市趋势,东高西低。两栋塔楼分而不断,功能立体组合,模糊教学与产研的功能边界,实现高效聚合。塔楼平面方正实用,绕核心筒形成流畅完整空间,满足办公、研发、教室、实验等功能需求,自由的空间为建筑弹性生长创造多种可能,增加建筑在时间维度的灵活性。
⊙垂直聚落,弹性生长
⊙云上大学城
效果图
渗透交融,创新共生:环绕塔楼而上的“云径”,是建筑和功能的纽带。“云径”之上植入的立体化“透气空间”,为建筑提供了多维度的休闲平台和互动场所。观景露台、立体步道、求知天梯,增加了建筑与城市及自然的渗透交融,在塔楼之上创造了不同体验感的共享交互空间。
⊙渗透交融,创新共生
⊙云上大学城
效果图
⊙云上大学城
效果图
03 科创中心
—
⊙科创中心
效果图
设计团队希望将科创中心打造成为集政务办公、商务办公、会议中心、产业展示、产业交流、商务休闲于一体的产业集聚综合体,完善配套功能,提供一站化的产研办公平台,将“产城融合”的理念从规划延续到建筑设计,吸引企业与人才集聚;同时呼应城市中轴空间结构,发挥门户核心区位优势,建立地标形象,树立精神象征;创造友好的城市关系,提供丰富有趣的地面景观和公共空间,最大限度打破地块边界,实现与城市交互;并以干净的线条与简洁的语言塑造经典永恒的建筑形象,体现雕塑感与内敛的张力,回归理性。
⊙科创中心效果图
科创中心位于城市中轴端点的门户位置,是整个产业园区成长与发展的原点。方案以“科创之门”为设计理念,希望发挥地块作为原点的枢纽作用,树立地标形象,建立精神象征。
⊙科创之门设计理念
建筑形体沿中轴对称,呼应城市结构,营造仪式感。为保持与城市友好的界面,方案顺应场地形状对建筑进行切角。以开启的“科创之门”强调建筑核心区位与引领作用,延续中轴城市空间,塑造纪念性的门户地标;同时延伸视线通廊,建筑形体形成城市场景中的画框;沿用中国传统园林“框景”造园手法,营造不可尽观的城市意境。
建筑立面采用干净利落的线条,展现硬朗挺拔的建筑形象,传达勇于向更高、更远探索的力量与决心。铝板如蚕丝包裹建筑,形成简洁的整体及均匀延展的建筑表皮,大道至简,回归理性。
在面向中轴的室内空间采用局部通高的设计,提供观景、休闲与社交的场所。
⊙科创中心体块生成
会议中心:
建筑基座(首层)设置会议中心,为政务办公与商务办公提供综合、一站式会议配套服务。结合地面景观设置通高的多功能穹顶空间,可举办主题论坛、天幕投影、小型音乐会等活动,赋予空间科技感与未来感。
⊙科创中心效果图
⊙科创中心
效果图
空中花园:建筑内部面向城市中轴位置设置通高公共空间,形成空中花园,为使用者提供沟通交流和思想碰撞的共享空间,增加楼层间的互动性。花园结合空中景观布置,绿意显隐于幕墙之后,与城市中轴景观形成呼应与延续。
⊙科创中心效果图
⊙科创中心效果图
产业展示,交流空间:在建筑顶部五层的两栋塔楼之间设置空中连接体,容纳产业展示、产业交流、商务休闲等功能,供商业会晤与行业交流。空中连接体对城市中轴景观一览无余,可直眺安昌河休闲景观带与文化簇群,尽享高空视野。
⊙科创中心效果图
04 技术图纸
⊙云上大学城总平面图
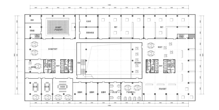
⊙云上大学城首层平面图
⊙云上大学城裙房三层平面图
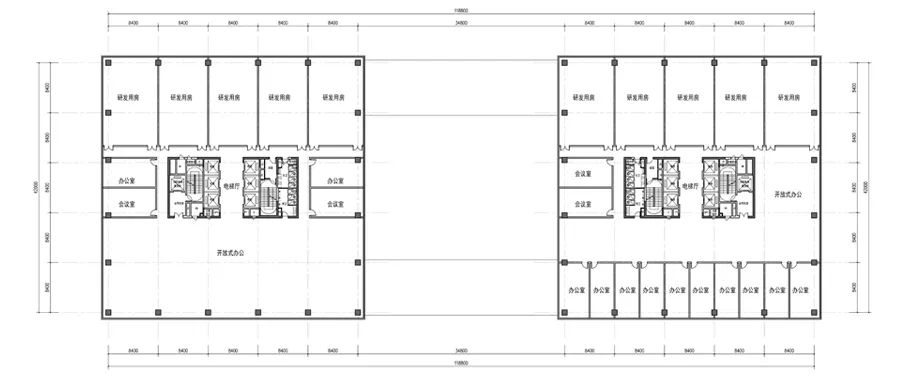
⊙云上大学城塔楼标准层平面图
⊙云上大学城剖面图
⊙科创中心总平面图
⊙科创中心一层平面图
⊙科创中心二层平面图
⊙科创中心二十、二十二层平面图
⊙科创中心剖面图
项目地点:绵阳市科技城新区
项目类型:科研教育建筑(云上大学城)、办公建筑(科创中心)
建筑面积:10.3 万平方米(云上大学城)、10.1 万平方米(科创中心)
业主单位:绵阳科技城新区投资控股(集团)有限公司
建筑设计:香港华艺设计顾问(深圳)有限公司
项目总负责:陈日飙
设计指导:林毅
云上大学城设计团队:
孙芳、夏敏、王忆新、陈梓威、吴一凡、唐晟、蔡晓晴
科创中心设计团队:黄文谦、许诺、张健、龙颜、揭凌云、范文康、蔡威、李聪、龚佩弦、胡洲
中标时间:2022 年 7 月
--END --
项目资料:陈梓威、陈旻昊
客服
消息
收藏
下载
最近




































