查看完整案例


收藏

下载
侯潮府
31st,December,2019
Copyright© 2019 Murphy Studio
内 容 导 读
第一卷 设计方案
第二卷 Before & After
第三卷
好物安利
第四卷 设计师总结
第 一 卷 设计方案
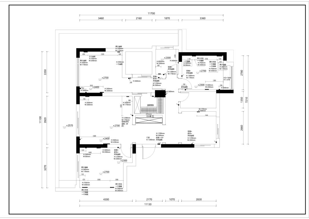
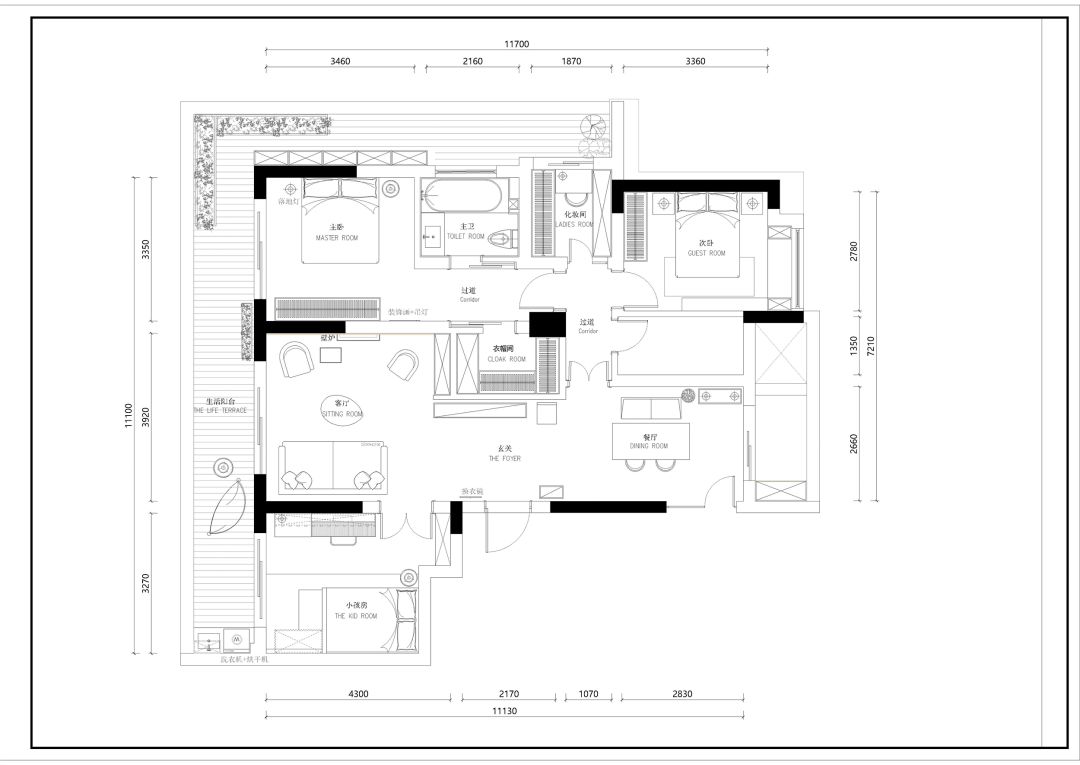
原始的户型是可以满足大部分人的需求,但仔细推敲起来还是会有很多细节上可以改进,特别是玄关区域,一进门给人的感觉比较的压抑。其他一些拆改的内容会在下面的Before&After里面详细介绍,不再赘述。
硬装调整重点集中在客厅区域,首当其冲的是玄关空间。把原先的玄关柜以及墙体进行了拆除,这为玄关空间提供了760mm的深度。
客厅、餐厅、主卧、过道的吊顶都有进行局部的调整,主要的原因是风格不符,还有影响整体空间的纵向视觉。
第 二 卷 Before & After
客厅空间 Before
上方照片应该能感受到原始房子的状态,其实房子的层高是不错的,但周围的走边让我觉得有些影响房子的纵向空间感受。庆幸的是业主也不喜欢这张造型,所以我们就把客厅、玄关的吊顶进行了局部的改造。
现场拆除后的效果,是不是房子的整体感受就不一样了?
客厅空间 After
模特是女业主本人(实力出镜),这个是她平时工作的区域。
壁炉是现场做的造型,表面用的是超薄石材,最终整体出来的表现我个人比较满意。
餐厅空间 Before
餐厅的问题和客厅大同小异,但考虑到灯光以及空调出风口的问题,我们把阳角线条和阴角线条进行了拆除。
餐厅空间 After
餐厅墙面顶面都用了ChoimerPaint涂料进行处理,特别要说下的是入户大门上也沿用了这款涂料。
入户大门的款式比较单一,好看的比较少,这种方式处理可以大大提高整体的统一性。
玄关空间 Before
玄关空间
相对拥挤,吊顶层次过多,和我们想要的最终风格相距甚远。
玄关空间 After
玄关空间彻底被打开,玄关柜造型上选择了半开放式,即不会让空间显得压抑,又可以在收纳上有更多的储物空间。(鞋柜放置在电梯厅)
儿童房空间 Before
儿童房最大的问题是储物,业主的硬性需求是需要独立的书桌,钢琴。如果按原始的格局,这个房间将会略显拥挤。
我觉得小朋友的房间空间一定要宽敞一些,有可以给她自我支配的地方。儿童房的方案我反反复复思考过好几稿,主要是在趣味性和收纳上做平衡。
拆改现场照片
儿童房空间 After
首先是门片上面的处理,采用了仪式感很强的对开门方式。这个对开门在整个客厅空间里面也起到了画龙点睛的作用。
这款榻榻米无论在形式上或者功能上都适合这个空间。床下面做了三个抽屉,增加空间的收纳。
小孩房在设计的时候还需要考虑到安全性,我想这个也是很多家长最关心的,所以床靠和卡座靠都用了软包的方式去处理。
儿童房入户左侧增加的一组衣柜,预见性设计在儿童房设计上尤为重要。
这个卡座类似于阅读角,培养孩子的阅读兴趣。
主卧空间 Before
原本的主卧空间是这种大马士革花纹的墙纸
主卧空间 After
主卧的吊顶也进行了拆除,原因和客厅一样。地面地板也进行了更换,选用了胡桃木的实木复合地板。
主卧的衣柜用了两种纹理做了分割的处理,主要是考虑到柜体的整体体量,这样可以很好的减轻视觉的压迫感。
过道空间 Before
过道空间 After
次卧空间 Before
次卧空间 After
父母房飘窗两边各增加了一组开放柜,次卧的原始顶没有改动,用涂料做了分色处理,增强空间的对比,使空间更有层次感。
阳台After
阳台墙面做了植物墙,因为拍照时客户还没铺地板,大家可以看上面视频。
业主和闺蜜们的暖房趴
第 三 卷 好物安利
这块内容的设定主要是因为之前推文一直有网友来询问产品的问题,为了提高内容的完整性,我们会在之后的推文里面都加入这个内容。内容会从品牌、设计师推荐理由这两个方面来介绍。
主沙发 / Ligne Roset / 很强的包覆感,以及夸张的造型
壁纸 / London Art / 3维视觉感受,触感佳
落地灯 / Kartell / 造型别致
餐椅 / Rochebobois / 夸张的造型以及舒适的坐感
阳台地板 / 马丁森林 / 硬度高耐磨,高性价比
第 四 卷 设计师总结
又到了总结的环节,每次完成一套案子写这段的时候总觉得有点不舍,就是那种老母亲的感觉。感谢业主的积极配合,从方案到拆改到后期的选购都是超高效率。
精装修怎么做软装设计,相信很多从业人员都会思考。市场主流的软装设计就是添置家具,搭配软装饰品。很少见到有从硬装这个维度去判断房子是否满足居住者的生活习惯。
我们不是为改而改,而是敢于从源头去思考这个问题。虽然这个需要业主大力配合,但我相信找软装设计的业主一定是想让自己的家更加的适合自己。
房屋位置 | 杭州上城区
房屋面积 | 139㎡
房屋类型 | 住宅
设计支持 | 墨菲设计团队
地址:杭州滨江区南环路1568号寰诺大厦A区3楼
🔽
精彩推荐
客服
消息
收藏
下载
最近

































































