查看完整案例


收藏

下载
木卡工作室
ShangHai /ChongMing2022
「崇上禾下」生态文化餐厅
"Chong Shang He Xia" Eco-cultural Restaurant
崇明岛西接长江,东濒东海,独特的沙地环境,孕育出区别于上海本帮菜的独特味觉密码。
The west side of Chongming Island is connected with the Yangtze River, and the east side is adjacent to the East China Sea. The unique sandy environment gives birth to a special taste that is different from Shanghai’s local cuisine, and stands out in Shanghai, a metropolis that gathers all Chinese cuisines.
「崇上禾下」生态文化餐厅是一次对地方味道的探索之旅,业主方想深耕并重新定义崇明菜,丰富消费者味觉和视觉体验。
项目位于崇明长兴岛郊野公园,面朝湿地公园最大的湖景,视野开阔。
The design of "Chongshang Hexia"restaurant is an exploration of local taste.
The owner wants to deepen and redefine Chongmingcuisine to enrich the taste and visual experience of customers.
The project is located in the Chongming ChangxingIsland Country Park, facing the largest lake view in the wetland park with awide view.
我们试图在这原生态的环境里打造一个地标性的餐厅,
利用当地的建筑材料、色彩的搭配、光线的变化,建立新的空间体验。
We are trying to create a landmark restaurant in this original ecological environment,Using local building materials, color matching, and light changes to create a new space experience.
顶面的造型通过解构翻转,比喻群山高低错落,连绵不绝的形象,如同传统山水画一般慢慢展现。
The shape of the top surface is reversed through deconstruction, metaphorical mountains are scattered high and low, and the continuous image is displayed slowly like a traditional landscape painting.
The restaurant as a whole is divided into two functional areas, "soft drink space" and "eating space".
“轻饮空间”设计师主要体现“留”的概念。原建筑顶面造型高低起伏,连绵不绝,群玉山头初见的气质令人浮想联翩,山下桃花相逢,风吹禾动,为游客构建逗留、驻足、观赏的空间。
The designer of "soft drink space" mainly embodies the concept of "stay".
The top surface of the original building undulates continuously.
The peach blossoms under the mountain meet, and the wind blows the rice, creating a space for tourists to stay, stop, and admire.
“食味空间”体现“流”的概念,通过不同座位形式的排列组合,为聚会提供不同形式的群体场所,确保空间灵活性和多变性。就餐区域中间通过景观装置,柔化了空间边界感的同时又赋予空间流动感。
"Taste Space" embodies the concept of "flow". Through the arrangement and combination of different seating forms, different forms of group venues are provided for gatherings to ensure spatial flexibility and variability. The landscape installation in the middle of the dining area softens the sense of space boundary while giving the space a sense of flow.
立面橡木纹和地面水磨石材料做法区分,形成材质质感的对比。
我们还拜访了崇明当地的手工匠人去做一些建构装置。
The oak grain of the facade is distinguished from the terrazzo material on the ground, forming a contrast of texture.
We also visited the local craftsmen in Chongming to make some construction installations.
我们希望创造出纯粹且简约的形象,尽可能少地使用华丽的材料,实木的温暖、水磨石的粗犷、现代的金属和作为墙壁主要材料的浅色石膏,有助于传达天然、质朴、有机的餐厅形象。
We wanted to create a pure and minimal image, using as few ornate materials as possible. The warmth of solid wood, the ruggedness of terrazzo, the modern metal and the light-coloured plaster as the main material of the walls help to convey a natural, rustic, organic image of the restaurant.
立面图
Elevation view
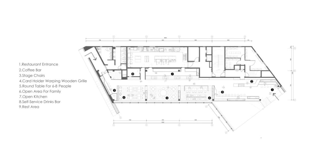
平面图 Plan
設計方/木卡工作室
Design/MUKAARCHITECTS
主案及設計团队
/
张英琦
王凯捷
&张维宇 徐帆 杨昊
DesignDirector & AssistantDesigner
/LincZhang
Alex Wang
&Will Zhang Vela Xu Victor Yang
項目地址/上海
Location / ShangHai
戶型面積/ 313.78㎡
Area/ 313.78㎡
竣工時間/ 2022 年 01 月
Completion Time/January2022
施工 /上海余恩建筑工程工作室
Construction /
Y U N Team
攝影/
李圣高子
Photograph
y/Amber Li
更多案例
·
EN
D
Copyright© 2022 Muka Architects. AllRights Reserved.
客服
消息
收藏
下载
最近















































