查看完整案例


收藏

下载
FREE SYMBIOSIS
自在 共生
视频
项目类型| 私宅
设计总监| 苏阳
项目坐落于江南特色的新都会—无锡,设计师用自然的色系与现代材料的相融合,将原本常规结构下的普通空间重塑为一个亦温情亦潮流的舒适居所。以体块穿插的设计手法,纯粹的材质细节和虚实错落的表现形式,勾勒一步一景的体验感受,打造湖畔都会的精致生活,让诗和远方近在咫尺。
The project is located in Wuxi, a newly-developed city with characteristics in the south of the Yangtze River. The integration of natural colors and modern materials reshapes the ordinary space under the originally conventional structure into a comfortable residence with warmth and fashion.
With the design method of interwoven blocks, pure details of materials and mixed expression, outline the experience of ever-changing scenes step by step, to create an exquisite life of the lakeside city, so that the poem and dreams will be around the corner.
01客餐厅
sitting and dining room
玄关是空间的起始笔触,以穿插手法设置多重收纳系统,简约与功能并存。开放式动线映射出纷呈的轮廓,引导着进一步的探寻。
转入即可见细心的布局,公区搭配大面落地景观窗,舒适格调不彰自显。延伸感、灯光、材质、形态过渡层面都经过精心拿捏,增添其细节之处的魅力。
厨房、客餐厅自由连接,环绕型动线确保各功能区之间的顺畅流转,全景落地玻璃窗吸纳光线让其成为设计元素的一份子。
自由的空间形式让尺寸感、舒适度以及便利性进一步提升,烤漆板与金属贯穿始终,加之视觉和触觉上的多元碰撞、对比,映衬一种微妙的开放与互动。
四季与空间交舞,变化多样的生活剧场,即便身处都会,依然可感受自然生命力。
02 中西厨
Chinese and Western kitchens
中西厨在公区一角,设计师提取烤漆材质的黑白色反差,从材料、细部和营造方式上窥见轻巧风范。西厨和餐客厅区连成一线,使一家人可以享受一边烹饪一边体味互动的乐趣。
通透的灰色玻璃门作为西厨和中厨的隔断,既不影响采光又让开放的公区增加了更多的层次感。
03 走廊
Aisle
连接公区、卧室、多功能室的两道走廊,呈现出渐变的颜色。从纯粹的白色,到沉稳的大地色,空间渐渐更加沉稳。顶部的灯光让走廊产生极富韵律的光影效果。
04卧室套房
Bedroom suite
主卧套房内设起居室、衣帽间及主卫,各功能空间呈开放递进式布局,室内浅咖色皮革、纹理感强烈的壁布与黑色镜面碰撞,都市格调感油然而生。
主卫墙面、地面由同款石材一体而成,置入圆润的镜面,可谓干练之中恰到好处的融合与均衡。主卫双台盆分列两侧令其更具趣味,镜面与柜体以及台盆形成交互,在实用中彰显方圆有度的设计美学。
次卧将灰色调在空间中发挥到极致,立面上简洁线条呈序列对望,完成静谧、平和的情绪表达。低饱和度的色彩,奠定了次卧细腻舒缓的基调,透亮、洁净又不乏活力流转。
05 多功能室
Multi function room
多功能室延续了克制的设计手法,按照生活场景与动线逻辑进行重塑,划分了隐藏式独立收纳间,让空间保留了方正的格局,也避免了生活琐碎物件的困扰,让居者在平静与自由的氛围得以休憩,同时又不失简练与温度。
ABOUTPROJECT
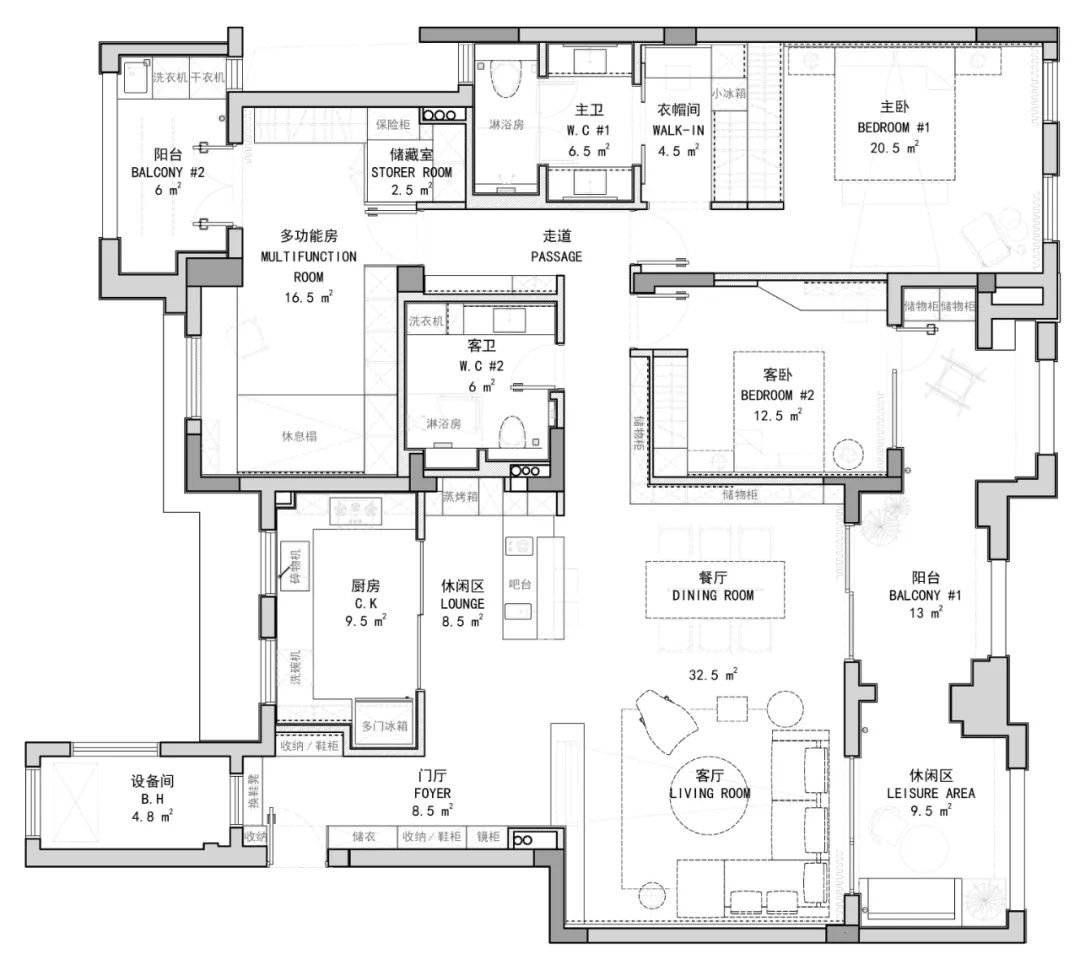
■平面图
项目名称:温和质感的湖畔住宅
项目面积:180㎡
设计单位:南筑设计
设计总监:苏阳
辅助设计:姚育铭
软装陈设:陈颖
完成时间:2020 年 5 月 1 日
项目地址:江苏无锡滨湖区绿城香樟园
ABOUT DESIGNER
苏阳 南筑设计 联合创始人 & 设计总监
南筑设计&什度艺术
合伙人从左至右:姚伟国、苏阳、程征、张峰率、王海
南筑设计是一家年轻的新锐设计公司,合伙人均为 85 后,分别来自建筑、室内设计与艺术领域。团队致力于人文体验的空间研究,在中国当代发展进程中充斥大量低廉、快速与批量化的设计与产品,南筑设计则希望致力于人文体验的空间研究,以新的视角传递人文设计的理念,创造差异化的空间设计。
奖项&荣誉:
2020 意大利 A’DesignAward 国际设计大奖金奖
2020 现代国际传媒奖
2020IDCHINA 美国室内设计中文版 金外滩最佳餐饮空间设计
2020 金堂奖杰出作品
2020“40UNDER40 中国设计杰出青年”
2019 IDEA-TOPS 国际空间设计大奖
2018 广州设计周 space 2×2 空间展
2018 入选“40UNDER40 中国设计杰出青年”
2018 中国设计星全国十二强
2017 中国室内设计金堂奖 优秀零售空间奖
○TEL: 0510-85166809(徐小姐)
○ADD:江苏省无锡市滨湖区惠河路云舒文创园内 10 号楼
-end-
项目版权归 NZD 南筑所有
客服
消息
收藏
下载
最近











































