查看完整案例


收藏

下载
寄席 YOSE〡日料餐厅〡2021
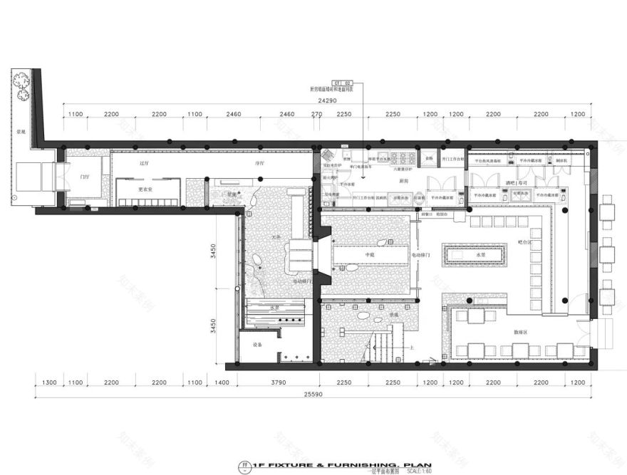
寄席从开业以来成为了当地美食爱好者心目中的日料坐标,在设计师团队看来,抛开食物制作的水准,其中还有三个成功的重要因素:一,空间秩序结合服务流程;二,设计与细节;三,私密感与领地感的界定。
入口门厅
▽
寄席是城中历史街巷的独立门店,从进入到落座,是由景观到室内的若干转换空间。在这个进入的秩序中,服务从外门入口设立接待人员,在门的一侧带领客人穿过走廊、外庭院、中门、内院最后到达室内。中门是感应移门,走到这里会停顿,流线就有了节奏的顿挫感。这其中既有空间转换的体验,也有贴心服务的感受,带来了上乘的第一印象。
现场视频先睹为快
▽
外走廊
▽
外庭院与中门▽
内庭院▽
从室内看向内庭院▽
室内一层融汇了景观与功能,服务台与板前料理结合到一起,顾客落座后面对厨师,同时也能看到后方电子屏幕的动态景象,动静结合出微妙的感受。
楼梯间▽
楼梯间看向一层▽
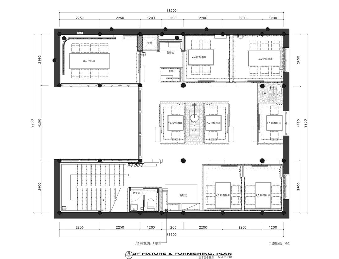
包厢区域▽
走廊看向包厢▽
独立包厢▽
二层区域是包厢区,也是预定率最高的区域,设置了集中的换鞋区,与之对应的是服务员帮忙整理与提供给拖鞋等服务。所有包厢外部做了抬高与悬空的视觉处理,用障子纸与格栅围合而成,有顾客的时候可以透射出相对柔和的二次光线,与过道形成一明一暗的对比。
包厢内里是台座的形式,相对于座椅更为放松,座椅均为单独设计与空间的设计形式融为一体。
轴测图 & 平面图
▽
项目信息
项目名称:寄席 SORA
设计公司:南筑设计
设计总监:苏阳
主创设计:王海
辅助设计:龚道湘、姚育铭
软装设计:程征
项目面积:310㎡
项目造价:160 万
设计时间:2020.05
完工时间:2021.01
项目主材:木饰面、小木作、天然石材
空间摄影:徐义稳
南筑设计成立于 2016 年,合伙人分别来自建筑、室内设计与艺术领域,目前在上海/无锡/成都三地设立办公室。团队致力于人文体验的空间研究,在中国当代发展进程中充斥大量低廉、快速与批量化的设计与产品,南筑设计则希望致力于创新与体验感的研究,以新的视角传递人文设计的理念,创造差异化的空间设计。
奖项&荣誉:
- 2020 意大利 A’Design Award 国际设计大奖金奖
- 2020 现代国际传媒奖
- 2020 IDCHINA 美国室内设计中文版 金外滩最佳餐饮空间设计
- 2020 金堂奖杰出作品
- 2020“40UNDER40 中国设计杰出青年”
- 2019 IDEA-TOPS 国际空间设计大奖
- 2018 广州设计周 space 2×2 空间展
- 2018 入选“40UNDER40 中国设计杰出青年”
- 2018 中国设计星全国十二强
- 2017 中国室内设计金堂奖 优秀零售空间奖
○NONEZONE 南筑设计
○上海公司 徐汇区枫林创意园区 485 号 12 号楼-203 室
○无锡公司 滨湖区惠河路云舒文创园内 10 号楼
近期作品▽
项目版权归南筑设计所有
客服
消息
收藏
下载
最近















































