查看完整案例


收藏

下载
时间+空间=体验
=Experience
空间
Time+Space=Experience
我们每天都在这里虚拟着别人的生活空间的实验,就是要探讨关于生活的无限可能性。
如果这个空间都是索然无味的,在这里工作的建筑师的思想也许只剩下一种东西,那就是贫瘠的思维,这不免会让人感到绝望。
﹃
建
筑
﹄
·
·
·
·
·
建筑师的工作其实是一项关于时间和空间的实验事业。
ORIA的办公室设计出发点源于一个时间+空间的体验。
在不同的时间里,我们可以解构、重组、甚至于打破固有的空间属性。
私密与开放、屏蔽与交流、停留与流动。
我们通过不同的使用途径来表达这一概念,用建筑的空间去表达时间的当下性和时效性。
空间概念
功能布局
空间生成
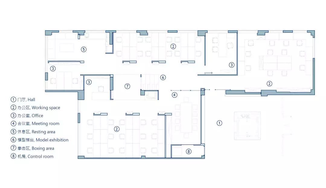
平面图
建筑师的工作其实是一项关于时间和空间的实验事业。
通过无穷的草图到概念到实施,脑海中虚拟着各种人、物、光线、空气在建筑物中的状态,草图纸和电脑硬盘中留下了所有关于设计这项过程的记录,建成后的那些建筑物提供了一个关于建筑师的思想所呈现出来的实物或场所供使用者体验并留下使用者在其中生活的痕迹。
最终这些记录和痕迹会成为建筑师继续从事这项工作的思想。这是一个递进的无穷循环的过程。
展廊模式
/ ORIA展廊
办公模式
/
ORIA办公空间
用一组多重曝光叠加的照片表达使用者在其中参与不同活动时的空间状态,记录关于ORIA建筑师工作生活的痕迹。
当我们展示了自己的可能性,就展示了建筑作品的可能性,展示了生活的可能性。
上海和睿规划建筑设计有限公司
专注于公共建筑设计领域,在上海及重庆两个区域设有办公室,并将于近期开设巴黎分部。公司主要业务范围涵盖了旅游规划、高端度假酒店、精品商业、文化教育、商务办公以及城市综合体等。
Shanghai ORI-A, Urban planning & Architectural design co., LTD.,which focuses on public architectural design.The company has offices in Shanghai and Chongqing, and it will soon open its Paris branch. The main business scope of the company covers tourism planning, high-end resort hotels, boutique business, culture, education, business offices and urban complex.
创始合伙人 ▏左起:吴文博、陈涵非、张滨
客服
消息
收藏
下载
最近































