查看完整案例


收藏

下载
校园更新之“藏宝盒”重生记
云南玉溪悦畔田园幼儿园 YUE PAN TIAN YUAN YOU ER YUAN 中国,云南,玉溪 YUXI,YUNNAN,CHINA 背景 - 城市更新 在中国当下城镇化进程进入到以更新为主的新时期,城市闲置资产的再利用成了亟待解决的问题。作为时代特殊价值语境下的空间,校园更新是城市更新的基本细胞体。在住建部《城市更新行动通知》政策的指导下,“小修小补”成为当下城市治理与发展的新潮流,渐进式微更新呈现出新趋势、新路径。
▲思序在校园更新板块的点、线、面实践
——从幼儿园大厅升级到百年老校的整体更新:玉溪一幼总园大厅改造、乡村中学的升级、玉溪一中的整体更新
▲更新后的校园融于城市肌理
——思序校园更新案例:玉溪第一中学、玉溪生态小学、玉溪第一幼儿园桂山园
本案更新设计与设计团队实践的多个校园更新改造项目一样,校园随着周边城市规划和城市市政设施的不断更新、发展,协同城市肌理共存共生。
▲ 幼儿园融于城市肌理鸟瞰实景图
重 启
- 教育使命
悦畔田园幼儿园的前身是玉溪市中心白龙路上的云南特色滇式商业,该建筑原本的设想是作为一间徽派仿古民族风特色餐厅,在建筑主体结构完成之际因为各种因素的影响而被搁置。于 2020 年 8 月投资筹建重启,被重新定义,改造为民办幼儿园。
▲更新前建筑与环境的原始状态
改造面临着严峻的挑战,因现有建筑因为功能改变,欠缺很多幼儿园所需基本功能、交通流线人车混杂、严重缺乏幼儿活动场地......经过为期三个月的设计打磨后,项目于 2020 年前动工,经历了漫长的守候与等待,2022 年上半年建筑主体的修缮和加建完成。
▲悦畔幼儿园施工现场收录
在 2022 年 9 月,“藏宝盒”迎来了她的第一批孩子们,开启了她作为教育建筑的新使命。
本园所的落地阐明了对大拆大建的消解、儿童特征的释放与生态自然的渗透,诠释了教育建筑在城市闲置资产再利用实践中的全新意义。
策 略
- 轻量化改造
校园更新最重要的原则是轻量化改造。这样一个外部形象颇为局限、内部空间中规中矩,普通甚至略显沉闷的建筑,如何改造成为一所富有特色、适合儿童的现代幼儿园呢?设计采用针灸式微更新方式,激活城市消极空间;协调场地的功能需求与人行的交通安全,构建园所、绿化休闲带、社区空间的步行走廊;保留并梳理建筑与场地现状,提升整个校园的空间品质。
寻
策略 01 寻找契合建筑的叙事主题
追溯建筑基本原貌,在不改动结构的基础上删除外立面繁复琐碎的细节,只保留其简洁的规整框架。再从原始建筑形态出发寻找契合的概念主题。建筑整体是全围合结构,呈现包裹遮掩的状态,像是一个正方体,结合内部规整的中庭空间看上去就更像是一个可以盛放物品的盒体,因此我们用“藏宝盒”来为这个幼儿园命名。打开“藏宝盒”、探秘“藏宝盒”,是这个园所为孩子们带来的故事。
▲更新前的饭店建筑造型
▲更新后的生态幼儿园形象
▲“藏宝盒”概念主题的叙事意象
策略 02 嵌入打破呆板的曲线廊道
原有建筑的外立面和入口过于呆板,不符合幼儿园的特性。设计策略是嵌入一条造型柔美亲和的曲线形态廊架,廊架下格栅的包裹改善了原建筑外立面的呆板观感而变得生动有趣,充满活力和乐趣,使园所空间灵动且富有生机。同时,曲线格栅顺势延伸将入口打开,形成形如喇叭的进口,以增强幼儿园导向性。柔滑的入口空间让小朋友产生亲切感,每天早上都开心入园。
▲外立面增加曲线廊道更新前后分析
▲外立面增加曲线廊道更新前后对比
▲格栅的包裹改善了原建筑外立面的呆板观感
▲孩子们在廊架下快乐玩耍
▲柔滑宽敞的入口空间
补
策略 03-补充园所欠缺的功能空间
由于使用功能发生改变,现有建筑欠缺很多功能:标志性入口、多功能活动室、部分专业教室、供应用房、活动场地等等。设计从幼儿园本身所需功能全面补充。改造新增开敞式主入口大门增强幼儿园入口标志性;增加活动场地、多功能活动室、顶层加建将建筑在空间上联系起来,形成有序丰富的整体。
▲所需功能补充更新前后分析
▲中庭与走廊更新前后对比
▲中庭加建多功能活动室更新前后对比
▲多功能活动室的顶部平台扩展了二层活动空间
▲孩子们在二层活动平台游憩
理
策略 04-梳理安全自由的活动流线
外部安全
——人车分流、接送等候
改造后人车分流,外来车辆不进入园区,后勤车辆由北侧道路出入。人行主入口为接送及等候区域,家长可直接由路边停车处下车接送。车辆停留时间较长时,驶入西侧停车场停放,步行至出入口接送。
▲园所内部不可停车
更新前后对比
▲早晨孩子们入园时场景
内部自由
——丰富多彩的活动流线
西侧的室外活动场地设置微地形,高低错落之间设置有沙坑、草坡、戏水池等,让身体得到活动学习。孩子们身处绿意盎然之中,沿着流畅的弧线路径在室外庭院与内部中庭肆意奔跑。通过二层连廊与综合活动室屋面连通,扩展活动平台。
▲园所西侧生态活动场地
▲园所首层明亮的走廊空间
▲园所三层走廊空间更新前后对比
▲从教室内部往走廊看孩子们在玩耍的场景
亲 历
- 室内营造
关于本园室内空间的营造,设计围绕自然、生态为主线的园所环境,将“阳光、风雨、虫鸣”等自然界元素作为园所最好的装饰,让孩子们能触摸四季、亲历万物、感受自然。校园由外至内犹如一个大大的“藏宝盒”,孩子们进入园所内就是“打开藏宝盒与季节嬉戏”。
▲园所室内空间分层解析图
▲自然光线充足的单元活动教室
▲每一个单元活动教室都明亮宽敞,温暖舒适
▲双面开窗通风,真正做到不开灯也可以。
▲孩子们的下午点心时间
室内空间保持自然光线的充足,每个教室都明亮与宽敞,整体氛围温暖舒适。所有墙体与柱网均采用圆弧倒角设计,以提供柔和的视觉体验并保证孩子们在运动过程中的安全。
▲多功能活动室爆炸分析图
▲多功能活动室内部实景图
▲在活动室开展音乐课和小型活动
▲老师和孩子们在活动室上钢琴课
设计风格依旧延续以纯净素雅的白色、木色为主色调,以留白去承载老师们教学过程中的装点。在细节处理上,选择对幼儿友好触感的建材,家具根据各年龄层儿童的身高订制尺寸,空间内所有的电源插座与开关的设计也都定位在儿童接触不到的高度。
▲以白色木色为主色调
▲活动空间与盥洗室开孔窗隔断
▲便于老师内外观察保证安全
▲幼儿友好触感、适宜订制尺寸的盥洗室
寄 语
随着城市更新深入民生,在幼儿园学位需求大量增加与园所布点严重不足的矛盾下,一些市区遗落功能的建筑开始被有条件的改造。这催发我们努力思考校园更新的更多可能性,采用谦逊的场地处理策略,轻量化介入,因地制宜、顺势而为,使改造更新后的空间与在地城市肌理、原有自然生态产生共鸣,从而将建筑与场地、自然、城市有机的联系在一起。“藏宝盒”即是通过对遗落空间进行修复和重组,将一栋与幼儿园风马牛不相及的建筑更新改造为了一个充满探索性趣味性的学习活动空间。
▲园所融于城市肌理的城市顶视鸟瞰实景
▲夜幕降临时分的园所鸟瞰实景
期望 “藏宝盒”能守护孩子们的童趣与纯真,为当地的孩子带来愉快的成长体验。
▼ 项目技术图纸
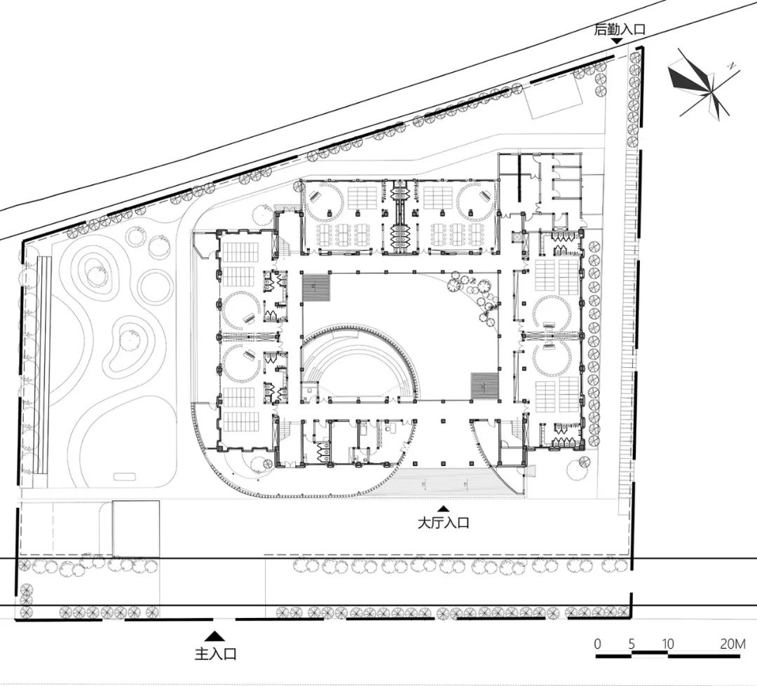
▲园所首层平面图
▲园所建筑
二层平面图
▲园所建筑
三层平面图
▲园所建筑
三层平面图
▲园所建筑东立面图
▲园所建筑南立面图
▲园所建筑西立面图
▲园所建筑北立面图
▼项目基本信息
项目名称丨云南玉溪悦畔田园幼儿园
项目地址丨云南省玉溪市红塔区白龙路西侧李棋社区
更新前建筑用途丨滇式商业建筑
更新后建筑用途丨生态幼儿园所
占地面积丨5575㎡
建筑面积丨3737.66㎡
修缮建筑面积丨2790㎡
扩建建筑面积丨947.66㎡
户外活动场地面积丨4035.74㎡
园所规模丨13 个班
项目业主丨玉溪悦畔田园幼儿园有限公司
设计团队丨上海交通大学设计研究总院有限公司城开院·思序产教融合研究中心
设计内容丨建筑、景观、室内一体化升级改造
主持设计丨王涛
设计人员丨陈立峰、曲海文、汤洁、李威、虞芡、邵蕊
设计时间丨2020 年 8-12 月
竣工时间丨2022 年 5 月
建筑摄影丨孟兴
▼设计团队介绍
▋
城开院·思序产教融合研究中心
城开院是上海交大设计研究总院下属二级平台之一。城开院依托交大和总院雄厚的人才、科技、产业资本优势,致力于资源整合与创新型发展,走“产”、“学”、“研”一体化道路引领行业未来。
思序产教融合研究中心是城开院产教版块设计团队,专注专业科教产业设计。由王涛博士联合了一支来自全国各地有情怀,有专精,有趣的专业设计师小伙伴,从建筑,室内,景观一体化的模式,一边温暖而创新打造一所所校园以及其它类型建筑,一边对现有城市存量校园的整体更新模式研究。
思序设计团队具有丰富的更新改造空间设计思考及探索实践经验,以使用者为出发点,从成本控制与平衡出发考虑,为每个项目提供合适的解决方案。于教育建筑设计细分领域持续深耕,专注“校园更新、幼儿之城、新建校园、文化创新”四大板,坚持用对待教育空间仔细方法,思考当代空间如何能打破千篇一律的规训形式。以“温暖的设计点亮城市”为核心理念,致力于从教育的本源和生态的人本出发,为城市和乡村带来创新和温暖的建筑。
▋
思序设计校园更新作品
▲解困乡村教育新模式,全椒县新锐古河中学改造
▲解困乡村教育新模式,全椒县新锐古河中学改造
▲半山森林学校的价值重塑,玉溪生态实验小学更新
▲让童趣飞起来,玉溪少体校改玉溪一幼桂山园
▲孩子们的岛屿探索,玉溪一幼总园大厅升级
加入我们请联系:
HR:Mr Wang
E-mail:13818073780
商务咨询请联系:
MD:Ms Shi
Copyright:思序 ThinkLogic
TEL:+86 13818073780
上海市徐汇区淮海西路 55 号申通信息广场 9 楼 AB 座
客服
消息
收藏
下载
最近




































































