查看完整案例


收藏

下载
案例简介
Case description
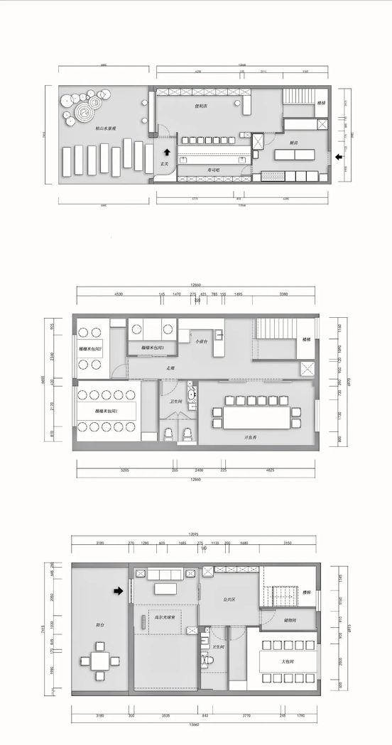
这是我们在美丽的丽水仙都景区做的一个日料餐厅设计项目。项目开始于一年前的夏天,整个炎热的夏季,我们开着车游荡在青山绿水间,感受着江南无限美丽的风光。山间的风是柔和的,路边尽是潺潺流水的小溪,水流声在山石上碰撞激荡,像一曲温柔的交响乐在林间交织徜徉。内心里的强烈的声音,只希望能够在这样悠然静怡之处留下一处栖息之地,让美食与美景在此地留存共融,尽享氧气生活的美好。
在我们忙碌的生活中,有这样一处温暖治癒的地方,可供安放焦躁与不安,可借美食之力重拾生活秩序,在身心与味蕾都得到回应的过程里,找寻到那丢失的细节美。空间设计以香味俱全的食物为最低标准,用“光,色,形,质”的空间处理手法, 上升到精神层面超越顾客的期望,营造一个具有日式温馨与东方美学融合的进餐环境。
丽水仙都日料店项目空间设计,整体空间以香味俱全的食物为最低标准,通过空间的光,色,形,质, 上升到精神层面,超越顾客的期望,营造一个具有日式温馨与东方美学融合的进餐环境。
门前的灯笼是日式居酒屋的标配,走进一看,满满日系的结构设计,加之朴素温馨的装饰,静谧的氛围,让你仿佛一瞬间穿越到日本街头。
门头的设计将发光的材质表现得的淋漓尽致,以格栅为造型,打造出门头的层次感。其次,入口处山脉连绵的艺术形象与若隐若现的通透丝竹帘,也更契合当地的自然环境,更好的抒发人文情怀。
庭院内枯山水的设计也无时无刻不渗透出浓郁的日式风情。夜晚从街边走过,店内与庭院散发着烟火气的光晕,总是叫人不经意间想要为之驻足,走入这怡人世界
在墙面画下山的连绵起伏的形状,雕刻后成窗洞,将室外绿意与竹林纳入室内,像一幅惊艳的画,嵌于墙内。波浪弧形吊顶的设计,与窗洞呼应,仿佛山峦与云端相连。让空间产生了浪漫的情调。
入门处单独留出室外与室内的过渡空间,形成玄关空间。改变了入户门的位置方向。樱桃木色的玻璃木门,通透中带着日式感。整面的玻璃窗正对着街景,将室外绿意尽收室内,很好的阐释了自然风景才是空间里最美的画作。
墙面悬挂的画作,是名家李玉刚先生在仙都溪水边的亲笔手作,惊艳而写意,置于此空间内,营造了日式氛围的故事感。连绵的山峦与绿意的林间,名家的画作,让空间充满着浪漫的气韵。
在包间就餐的设计上,还原日式的礼仪为主基调,窗外景色纳入室内,私密性与就餐的惬意共融于空间中。
三楼单独做出一个开鱼秀的包间,将航运新鲜的食材在客人面前进行切割,分羹,彰显我们食材的新鲜与诚意,带给客户不一样的服务体验。背景山峦起伏的壁画设计,在视觉上产生了很大的冲击力,与入口处的设计也交相辉映。
三楼就餐空间的设计,背景山峦起伏的壁画设计,在视觉上产生了很大的冲击力,与入口处的设计也交相辉映。
仙都,听名字就可感知其秀丽境地,日料店的主理人与其团队,千里迢迢从深圳跑到了仙都。
看到仙都的第一眼,他便爱上了这里~
27年厨龄的主厨程师傅,用一生打磨一餐好日料。
专注日料数十年如一日,秉承"还原美食原味,尊享绿色健康"的宗旨而闻名日料界。
隐秘在喧嚣的夜色里的深夜食堂,如同一个小小的舞台。
那些在白天的繁华闹市里行色匆匆的人渐次登台亮相,演绎着他们各自的命运和生活。
食物与空间此情此景的融合,让身与心完全放松于此地,让世俗远离,回归内心的平静。
客服
消息
收藏
下载
最近



























