查看完整案例

收藏

下载
2016年,KAAN Architecten事务所赢得了本项目的公开竞赛,设计从这座著名的巴洛克宫殿及其历史环境的布局和比例中获得灵感,以现代的干预策略对罗宫博物馆进行了翻新和扩建。这个雄心勃勃的项目涉及对超过5000平方米新设施的建造和空间扩建,以及对原宫殿的精心修复,包括对墙体中石棉隔热层的清除。改造后的罗宫恢复了曾经雄伟的姿态,堪称荷兰最著名、最受喜爱的博物馆之一。
After winning the commission through a public competition in 2016, KAAN Architecten undertook the renovation and extension of Museum Paleis Het Loo, taking cues from the layout and proportions of the baroque palace and its historic surroundings. The ambitious project involved the addition of over 5000 square metres of new facilities and spaces, a careful restoration of the palace, and a meticulous asbestos removal process. The newly transformed Paleis Het Loo now radiates the grandeur that befits one of the Netherlands’ most renowned and frequented museums.
▼由Bassecour看宫殿西翼和入口亭,View across the Bassecour towards the west wing and the entry pavilion
罗宫(Paleis Het Loo)最初建于1686年,是威廉三世国王和玛丽女王在阿珀尔多恩郊区的皇家狩猎宫殿。场地上坐落着广阔的森林景观,以及理想的地下水压,这些场地条件使创造出华丽的巴洛克式花园成为可能,大量的水景点缀在花园之中,将这座不巧的宫殿衬托得更加雄伟壮丽。KAAN建筑事务所的设计灵感来源于建筑与景观之间不可分割的联系。整个扩建部分位于地下,全新的水景作为建筑的一部分,延续了原建筑规划的传统,进而延续了宫殿的历史形象。
Paleis Het Loo was initially constructed in 1686 as a royal hunting palace for King William III and Queen Mary on the outskirts of Apeldoorn. The property’s ample forest grounds and necessary underground water pressure created ideal conditions for a baroque composition of lush gardens punctuated with numerous water features and a monumental palace at its base. KAAN Architecten’s intervention draws from this inextricable connection between architecture and the landscape. The entire extension is placed underground, and the new water feature is integrated as part of the architecture, continuing the tradition of the overall composition without disrupting the historical image.
▼轴测图,Axonometric drawing
▼剖面图,Section
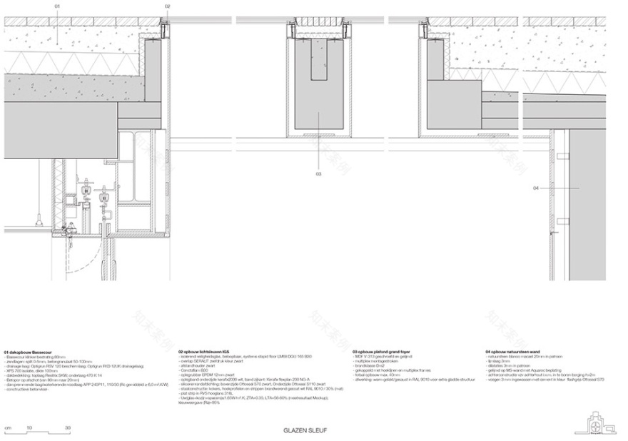
Bassecour坐落在宫殿两翼之间,它以前是一处设有草地花圃和一个马用水槽的庭院空间。在KAAN Architecten的改造下,雄伟的中央喷泉与地面上四处玻璃天窗将这里变身为一处令人惊叹的喷泉广场,天然石材与一层薄薄的水镜,旨在向曾经坐落在这座历史悠久花园中的自来水厂致敬。Bassecour不仅仅是宫殿前庭,同时也是地下扩建部分的屋顶。四厘米深的水镜反射出不朽的宫殿,明媚的日光穿过水面在地下空间中投下辉煌的光影。
Nestled between the palace wings lies the Bassecour, formerly a courtyard with grass parterres and a water trough for horses. Today, it has been transformed into a stunning space with a central fountain and four glass surfaces, each adorned with natural stone and a thin layer of running water, paying homage to the waterworks in the historic gardens. The Bassecour has evolved beyond just the palace forecourt, now serving as the roof of the new extension. The four-centimetre-deep ponds reflect the monumental palace while daylight permeates the water, casting a brilliant effect below.
▼项目鸟瞰,View of the Paleis Het Loo and its grounds
与为了创建出一处突出的入口其牺牲Bassecour的开放庭院空间,建筑师选择将入口安排在宫殿两翼的末端。墙面上,大理石材质与原始的砖墙肌理微妙地拼接在一起,彰显出历史的痕迹,原始结构被挖空,创造出灯笼一般的入口亭。从这里,游客们将被引导至光线充足的楼厅空间,该空间中容纳了所有必要的游客设施,并直接通往门厅。
▼入口分析图,Analysis diagram
Rather than creating a prominent entrance that could encroach on the open Bassecour, the entry points have been positioned at the ends of the palace wings. Traces of the past remain visible in the subtle marble inlays on the walls where the old structure was hollowed out to create the lantern-like entry pavilions. Visitors are guided down to the light-filled balcony, which hosts all necessary visitor facilities and leads into the Foyer.
▼入口位于宫殿两翼的两端,
The entry points have been positioned at the ends of the palace wings
▼西翼入口通向少年宫,
The lantern-like pavilion in the west wing leads up to the Junior Palace
大门厅是地下扩建部分的中心枢纽。大厅沿着中轴线延伸,创造出与历史建筑的双重联系。从空间上看,宫殿的新旧部分通过拱形楼梯间连接在一起。从视觉上看,人们可以透过Bassecour池塘的玻璃屋顶看到宫殿。在门厅的中心,喷泉的正下方,地面上风玫瑰般的拼花地板突出了门厅作为扩建部分中心的位置,邀请着游客们选择一个方向,继续探索正堂(Corps de Logis)、进入展厅、走向东翼,或返回入口楼厅。
The Grand Foyer is the central hub of the underground extension. Stretching along the central axis, it forges a twofold connection with the historic building. Physically, the old and new sections of the palace share a common foundation through a vaulted stairway. Visually, one can behold the palace by gazing upward through the glass roof of the Bassecour ponds. In the heart of the Foyer, directly beneath the fountain, a large wind rose in the floor indicates the centre of the extension and invites visitors to choose a direction – continue to the Corps de Logis, enter the exhibition halls, head towards the east wing, or return to the entrance balcony?
▼大门厅,The Grand Foyer
▼游客被引导到光线充足的楼厅,该空间设有所有必要的游客设施,
Visitors are guided down to the light-filled balcony, which hosts all necessary visitor facilities and leads into the Foyer
▼由大门厅看楼厅,View of the Grand Foyer towards the balcony
地下扩建部分的设计延续了巴洛克式构图的对称逻辑,将宫殿的正堂作为平面规划的基础。在最初的布局中,前庭的中央楼梯旁设有一间专门用于觐见国王的房间。这一布局在扩建部分中得到了延续,展厅坐落于门厅的两侧,并与通往宫殿的楼梯相连。在大门厅的西侧,宽敞的方形大厅有近5米高的层高,可以用来举办临时展览。方厅的正上方,历史悠久的宫殿西翼中设有一座专门为儿童建造的博物馆,名为“少年宫”。与此同时,游客们也通过宏伟的楼梯大厅进入宫殿东翼,作为永久展览空间的“奥兰治之家”将荷兰皇室的历史以及现代皇室活动展现在大众眼前。
The underground extension keeps the symmetrical logic of the baroque composition and the palace’s Corps de Logis as the basic floor plan. In the original layout, the vestibule boasts a central staircase and adjoining rooms designated for an audience with the king. This principle is maintained in the extension, where the Grand Foyer, flanked by exhibition halls, connects with the stairway to the palace. To the west of the Grand Foyer, spacious square halls with almost 5-meter-high ceilings host temporary exhibitions. Above them, a museum in the historic west wing has been developed specifically for children called the Junior Palace. Meanwhile, the east wing is accessible through the magnificent staircase hall and highlights the history and present-day activities of the Dutch royal family in a permanent exhibition House of Orange.
▼大门厅是地下扩建部分的中心枢纽,The Grand Foyer is the central hub of the underground extension
▼透过Bassecour池塘的玻璃屋顶看宫殿,Visually, one can behold the palace by gazing upward through the glass roof of the Bassecour ponds
▼天窗细部,Details of the skylight
虽然在本项目中建筑的表达是优雅与克制的,但扩建与新增部分也充分体现出与“宫殿”相匹配的宏伟与想象力。设计从从巴洛克宫殿中汲取灵感,“不仅是你所看到的,还有你所感受到的,这些增加了建筑的质量。这一切都得益于材料的质地与细致的工艺,”KAAN Architecten建筑师兼联合创始人Dikkie Scipio教授解释说。
Although its architectural expression is restrained and elegant, the new building befits the grandeur and imagination associated with the term palace. “It is not only what you see but also what you feel that adds to the quality of architecture. It is the texture of materials, the craftsmanship with which the details are made,” explains Prof. Dikkie Scipio, the architect and co-founder of KAAN Architecten, about drawing inspiration from the baroque palace.
▼地面上风玫瑰般的拼花地板突出了门厅作为扩建部分中心的位置,The large wind rose in the floor indicates the centre of the extension
▼胡桃木饰面与橙花图案,Walnut veneer with neroli pattern
▼天花板细部,Details of the ceiling
▼大门厅西侧的方形大厅,To the west of the Grand Foyer, spacious square halls with almost 5-meter-high ceilings
作为干预的一部分,整座历史建筑都得到了精心的修复,并改善了技术和气候控制系统,以为游客提供更好的参观体验。主堂屋顶增建了一部全新的楼梯,为这里创造出前所未有的景观视野。此外,KAAN Architecten还对宫殿侧翼进行了重大翻修,以容纳新的展览空间,而毗邻西翼的旧宴会厅则被改造成餐厅。
As part of the intervention, the historic building was carefully restored to improve the technology and climate control systems and provide better amenities for visitors. A new staircase was added leading to the roof of the Corps de Logis and offering unprecedented views of the grounds. Additionally, the palace wings underwent significant renovations to accommodate new exhibition spaces, while the old ballroom adjacent to the west wing was transformed into a restaurant.
▼通过交替喷砂、打磨和抛光,大理石呈现出微妙的分层纹理,Subtle textures are layered through alternating sandblasted, honed and polished marble
▼楼梯将地下扩建部分与历史建筑部分联系在一起,
The connection between the underground extension and the Palace’s Corps de Logis
▼楼梯与窗口,Staircase and the opening
▼拱券与楼梯间,Staircase and arches
▼细部,Details
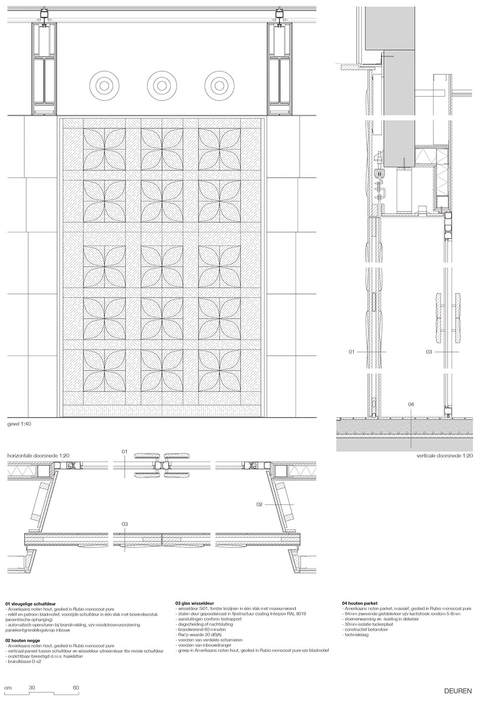
干预设计特别关注了楼梯、地板和墙壁的饰面,以图案和材料与历史建筑融合在一起。通过交替喷砂、打磨和抛光,大理石呈现出微妙的分层纹理,自然光线透过喷泉水镜照射到大理石上,为空间赋予了跃动的生命力。门上采用了温暖的胡桃木,与白色纹理大理石相呼应,无论在哪里,人们都可以能够流畅地感受到新的空间体验。木制饰面上的图案象征了橙花橙叶、花朵或蝴蝶,图案的对称性呼应了巴洛克风格的花园。相同的图案也重复出现在门把手、各种家具,以及餐厅的挂毯中。这些华丽的织物与金属线交织在一起,为墙壁增添了一抹微光,堪称是对Corps de Logis华丽正堂的致敬。
Special focus was put on the finish of the stairs, floors and walls, which blend in pattern and material. Subtle textures are layered through alternating sandblasted, honed and polished marble, playfully brought to life by the reflection of natural light through the pond. Set against the white of the veined marble is the warmth of the walnut applied on the doors, wherever one makes the transition to a new spatial experience. The wood pattern represents a single orange blossom leaf, or flowers and butterflies when multiplied, in reference to the gardens and their symmetrical graphic. This pattern can also be found on the door handles, in various pieces of furniture and the wall tapestries of the restaurant. These opulent fabrics are interwoven with metallic threads, adding a shimmer to the walls as a nod to the ornate halls of the Corps de Logis.
▼地下扩建部分与东翼的连接,Connection of the underground extension with the east wing, with a cafe nestled in the staircase hall
▼连接东翼的宏伟楼梯大厅,The east wing is accessible through the magnificent staircase hall
“设计的目的旨在实现新旧建筑之间的平衡和统一,这种设计理念造就了整体超越局部的效果,”Scipio说。乍看之下,翻新和扩建部分并不明显,然而却会通过精心规划的功能空间展现出来。所有干预都旨在增强游客的体验,同时不破坏这座纪念碑式建筑的历史价值,使罗宫在经年之后仍是荷兰最重要的文化地标。
“The aim of the design is to achieve a balance and unity between the old and new buildings, a result greater than the sum of its parts,” Scipio says. At first glance, the renovation and extension are invisible, then later revealed through a series of carefully considered features. Each of them enhances the visitor experience without detracting from the monument, positioning Paleis Het Loo to remain a vital cultural institution for years to come.
▼东翼展览空间的楼梯,Exhibition spaces in the east wing now permanently host the House of Orange
▼东翼展览空间,Exhibition spaces in the east wing
▼西翼少年宫,The Junior Palace
作为KAAN Architecten事务所近期完成的两个博物馆改造项目,罗宫博物馆与在安特卫普重新开放的皇家美术博物馆,扩充了该事务所庞大的历史遗产改造项目经验。其他建筑包括海牙的B30,伊拉斯谟MC教育中心和鹿特丹的中央邮政大楼等。
Paleis Het Loo, together with the re-opened Royal Museum of Fine Arts in Antwerp, are two recent museum transformations by KAAN Architecten, adding to their vast list of heritage renovation projects. Others include B30 in The Hague, Education Centre Erasmus MC and Central Post building in Rotterdam.
▼毗邻西翼的旧宴会厅被改造成为餐厅,The old ballroom adjacent to the west wing was transformed into a restaurant
▼墙面装饰细部,Details of wall decoration
▼总平面图,Site plan
▼地下一层平面图,Level -1 plan
▼底层平面图,Level 0 plan
▼一层平面图,Level +1 plan
▼二层平面图,Level +2 plan
▼剖面图,Sections
▼构造细部,Construction details
Museum Paleis Het Loo
Location: Koninklijk Park 16, 7315 JA Apeldoorn
Architect: KAAN Architecten (Kees Kaan, Vincent Panhuysen, Dikkie Scipio)
Project team: Valentina Bencic, Dennis Bruijn, Javier Cuartero, Sebastian van Damme, Katarzyna Ephraim, Paolo Faleschini, Christiaan Frankin, Michael Geensen, Aleksandra Gojnic, Julia Gousset, Narine Gyulkhasyan, Niels de Hart, Joost Harteveld, Walter Hoogerwerf, Antony Laurijsen, Nicki van Loon, Loes Martens, Marija Mateljan, Edyta Milczarek, Laura Ospina, Floris Sikkel, Christian Sluijmer, Niels Vernooij, Roel Wijmans, Samara Zukoski
Client: Stichting Paleis Het Loo Nationaal Museum, Apeldoorn
Programme: exhibition halls, offices, museum shop, restaurant, coffee bar
Competition phase: February 2016
Design phase: September 2016 – September 2017
Construction phase: March 2018 – April 2023
Completion: April 2023
GFA: 19.800 sqm (14.800 sqm renovation + 5.245 sqm extension)
Restauration advisor: Van Hoogevest Architecten, Amersfoort / KAAN Architecten, Rotterdam
Exhibition designer (House of Orange): Kossmanndejong, Amsterdam
Exhibition concept & art direction (Junior palace): GrobEnzo, Amsterdam
Interior architect (furniture): KAAN Architecten, Rotterdam
Interior architect (restaurant): Studio Linse, Amsterdam
Wall tapestries (restaurant): TextielLab, Tilburg / KAAN Architecten, Rotterdam
Light fixtures (entry pavilions): Atelier Rick Tegelaar, Arnhem
General contractor: Volker Staal en Funderingen, Dordrecht / Koninklijke Woudenberg, Ameide / BAM Bouw en Techniek – Integrale Projecten Oost, Apeldoorn / Heijmans Utiliteit/Infra, Apeldoorn / Draisma bouw, Apeldoorn / Bouwbedrijf Van Laar, Wapenveld
Construction manager: Draaijer en partners, Utrecht
Structural engineer: WSP Nederland, Breda
MEP engineer (mechanical, electrical, plumbing): Valstar Simonis, The Hague
Sustainability advisor: DGMR, The Hague
Quality manager: KAAN Architecten, Rotterdam
Geotechnics advisor: WSP Nederland, Breda
Building physics engineer: DGMR, The Hague
Fire safety engineer: DGMR, The Hague
Acoustics advisor: DGMR, The Hague
Financial advisor: IGG bouweconomie, The Hague / Basalt bouwadvies, Houten
Landscape designer: Copijn, Utrecht
Lighting advisor: Beersnielsen lichtontwerpers, Rotterdam
Glass roof: IGS Interior Glass Solutions, Veenendaal
Waterproofing: Oranjedak, Zwijndrecht
Exterior fixtures: Zumtobel, Amsterdam
Metal works: Ensel staalkonstrukties, Dokkum
Wooden doors and windows: Harryvan, Hoogezand
Internal doors and windows: Harryvan, Hoogezand / Zuid-Nederlandse Ramenfabriek, Rucphen
Wall tiling: KOLEN Keramiek en Natuursteen, Eindhoven
Natural stone: KOLEN Keramiek en Natuursteen, Eindhoven
Parquet floor: Michels Parketvloeren, Wijchen
Interior walls: Schuurmans Afbouwsystemen, Vught
Ceilings: Schuurmans Afbouwsystemen, Vught
Climatized ceilings: MAT Groep, Zaltbommel
Painting and wall coverings: Schuurmans Afbouwsystemen, Vught
Elevators: Lakeman Liften, Katwijk aan Zee / Euroliften, Aalsmeer
Signage: Studio Staak, Amsterdam
客服
消息
收藏
下载
最近












































