查看完整案例

收藏

下载
Natura Bissé的新总部位于巴塞罗那萨尔达尼奥拉市的Alba公园。该建筑的目的是为化妆品制造、实验室、物流、活动区和办公室提供空间。它将成为其所有子公司和国际分销商的参考中心。
Natura Bissé’s new corporate headquarters is located in Parc de l’Alba, in the municipality of Cerdanyola, Barcelona. The purpose of the building is to accommodate the industrial manufacture of cosmetic products, laboratories, logistics, event areas, and offices. It will work as the reference center for all its subsidiaries and international distributors.
▼远眺建筑,overlook of the building
总面积约为15,373平方米,加上5,394平方米的室外空间,共分为五层:停车场(地下一层)、物流/自动化区域(首层下半部分)、生产/实验室(首层上半部分)和最上面两层分别用于管理、行政、研究、设计和员工的配套设施。
With an area of about 15.373 m2 plus 5.394m2 outdoor spaces, it is developed on 5 levels: Parking (underground floor), Logistics/Robotization (lower ground floor), Production/Laboratories (upper ground floor), and two upper levels for Management, Administration, Research, Design, and complementary equipment for staff.
▼建筑立面,building facade
这些层级错落有致,适应地形的高低差异,并定义了一个与景观形成对比的轮廓和与企业形象相一致的形象。该建筑被构想为新一代的生产设施,其中办公、创新和实验室空间的规划都大过工业生产本身所占面积。这种方法需要特定的设施来支持生产过程的持续革新与再评估。
These levels are staggered, adapting to the unevenness of the terrain and defining a profile that contrasts with the landscape and an identity that is coherent with the corporate image. The building is conceived as a new generation of production equipment in which the program of spaces for offices, innovation, and laboratories covers a larger area than the industrial production itself. This approach requires specific facilities to support the continuous activity of renovation and revaluation of the production process.
▼建筑地面层出入口,groundfloor entrance
▼立面细部,detail of the building facade
▼立面材质细部,detail of the facade material
在这种背景下,该项目依赖于工业空间的人性化设计,并融入了其他重要方面,如自然采光、天窗过滤器、大露台与室外景观的视觉联系、室内空间的植被以及交叉通风。在这些条件下,设计最大限度地促进人员之间的关系和沟通。
In this context, the project relies on the humanization of the industrial space and incorporates important aspects such as natural lighting, zenithal light filters, visual relationship with the outside landscape through large terraces, presence of vegetation in the interior spaces, and cross ventilation. With these conditions, the design is conducive, to its fullest extent, to the relationship and communication between personnel.
▼办公空间概览,overview of the office space
▼室内空间绿植,vegetation in the interior spaces
▼办公室一角,office corner
当建筑业主考察工业活动与用户舒适度的兼容性时,将该建筑定义为“住宅式工厂”。
The definition of Factory-House has been adopted by the owners of the building when they checked the compatibility of the industrial activity with the comfort of its users.
▼交通空间概览,overview of traffice space
▼楼梯井及天花,stairwell and its ceiling
▼夜景立面,facade nightview
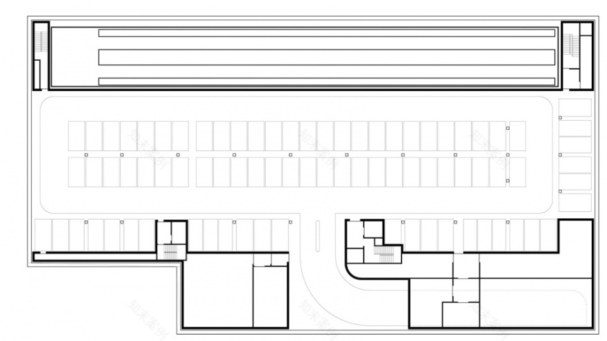
▼地下层平面图,underground plan
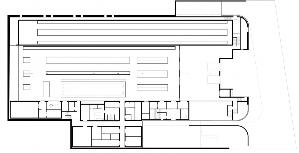
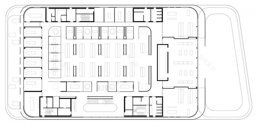
▼首层平面图,ground floor plan
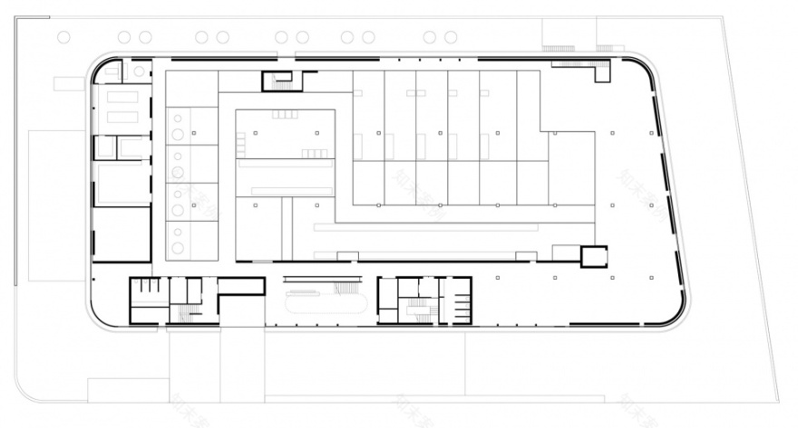
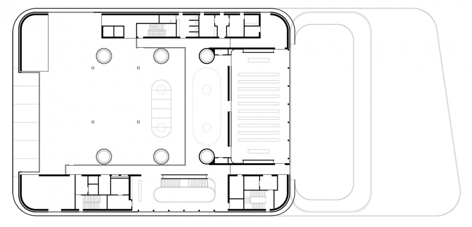
▼二层平面图,first floor plan
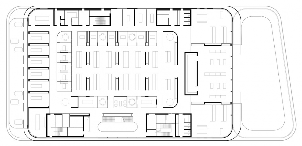
▼三层平面图,second floor plan
▼四层平面图,third floor plan
Typology: New edification
Location: C/ Creu Casas i Sicart, Cerdanyola del Vallès
Built area: 14.595 m2
External area: 6.172 m2
Developer: Natura Bissé
Company: Comsa
Scope:
Preliminary Project,
Concept Design, Schematic
Design, Design Development,
Construction Documents,
Construction Administration
Project: 2015-2016
Construction time: 2016-2019
Collaborators:
BIS Structures, JG,
Ingenieros, Otecnica,
Mecalux, IPB, Linea Barcelona
Photography: Aleix Bagué
客服
消息
收藏
下载
最近



















