查看完整案例

收藏

下载
GCA建筑事务所近期完成了西班牙首个智能建筑Smart 22@的建设工作。该建筑位于巴塞罗那Poblenou的22@科技区。
GCA Architects has just completed the construction of Spain’s first intelligent building, Smart 22@, in Barcelona’s 22@ technology district of Poblenou.
▼项目概览,overview of the project
这座办公综合体包含三座独立的建筑和一片大型花园区,既响应了工业环境,又以自身特色脱颖而出。该区域聚集了40%以上的棉花产业,因此该区以“加泰罗尼亚的曼彻斯特”著称,这也是该建筑设计的决定因素。在奥运会和22@技术发展和创新计划的影响之下,Poblenou已经将近200公顷的工业用地转变为城市中最国际化和创新的区域之一。
Divided into three independent buildings with a large garden area, the office complex responds to the industrial context while standing out with its own character. The district, known as the “Catalan Manchester” due to the concentration of more than 40% of the cotton industry in the area, has been a determining factor in the design of the building. With the impact of the Olympic Games, the 22@ technological development and innovation plan, Poblenou has transformed approximately 200 hectares of industrial land into one of the most cosmopolitan and innovative in the city.
▼项目鸟瞰,aerial view
城市的融合赋予了建筑物形态,尊重旧“La Escocesa”工厂等邻近建筑:它的外观反映了周边地区特有的色域,并融合了简陋材料的传统重要性,如使用更大挤压零件的新制造工艺的赤土材料。
The morphology of the building is based on urban integration, with a deep respect for the adjacent buildings, such as the old ‘La Escocesa’ factory: its genetics reflects the characteristic chromatic range of the neighborhood and combines the traditional importance of a humble material, such as terracotta, with the new manufacturing processes, which allow to work with larger extruded pieces.
▼项目街景,street view
▼项目外观反映了周边地区特有的色域,its genetics reflects the characteristic chromatic range of the neighborhood
▼透过旧工厂看建筑,view from the old factory to the building
▼赤土材料融合了简陋材料的传统重要性,terracotta combines the traditional importance of a humble material
对于GCA建筑事务所的建筑师和合伙人Josep Riu来说,“Smart 22@是一个连接过去和未来的纽带,其创新点在于创造将生态效率、可持续性和技术创新与工艺的重要性和对当地遗产的尊重相结合的艺术。”
这是一个秉持建筑所继承的社会责任的项目,它创造了一个与Poblenou社区的共生体,同时表达巴塞罗那的价值观。
For Josep Riu, architect and partner at GCA Architects, “Smart 22@ is a link between past and future, whose innovative character lies in the art of integrating eco-efficiency, sustainability, and technological innovation with the importance of craftsmanship and respect for local heritage”.
It is a project celebrating the inherited social responsibility of architecture, creating a conciliatory volume able to coexist with the Poblenou neighborhood while expressing the values of Barcelona.
▼入口外观,exterior view of the entrance
▼入口细部,details of the entrance
自2019年起,该项目的主要目标之一是从建筑的社会责任出发,打造一个与社区及其居民共存的整合体。这些居民出现在胡利安·加西亚·埃尔南德斯(Julián García Hernández)绘于建筑的主通道上的画作中,描绘了在该地区工作的人们。
One of the project’s main objectives, which began in 2019, has been to work from the social responsibility of architecture to create an integrating volume that coexists with the neighborhood and its inhabitants. These inhabitants appear in the pictorial works of Julián García Hernández, located in the main accesses of the buildings, which portray the people who worked in the area.
▼主通道上的胡利安·加西亚·埃尔南德斯画作,the pictorial works of Julián García Hernández located in the main accesses of the buildings
Smart 22@拥有24600平方米的办公空间,共分为三个大区。开放式的、灵活的室内空间设计迎合了当下的需求。后张法混凝土板结构使自然光可以穿过核心筒至幕墙立面。工作区域与公共区域相辅相成,如户外露台、休息区、多功能厅、更衣室以及其他旨在社交和提高健康水平的服务。
Smart 22@ has 24,600m² of office space divided in three large blocks. The open-plan, flexible interiors have been designed to meet today’s needs. Natural light filters through from the core to the curtain wall facades thanks to a post-tensioned concrete slab structure. The work area is complemented by common areas such as the outdoor terraces, lounge, multipurpose room, locker rooms, and other services designed to socialize and enhance wellbeing.
▼餐厅,the dining area
▼休息区,the lounge
该项目因其可持续和节能性能脱颖而出,共节省45%的水消耗,32%的能源节约,以及20%的低环境影响材料的使用。它还拥有75%的可持续废物管理,264块光伏板,63个电动车停车位和25个充电点。南外立面也集成了光伏玻璃板,有助于提高这三座建筑的能源效率。它还设有配备光催化和主动极化过滤器的空调系统,以保证空气质量和其他环境效益。
该项目从工业遗产中崛起,作为鼓励现代性、可持续性和技术等价值观的地标脱颖而出。它通过了关注用户健康的LEED铂金V4认证和WELL金级认证,以及AAA能源认证和Wiredscore认证。
The project stands out for its sustainable and energy-efficient features, including 45% savings in water consumption, 32% energy savings, and 20% use of low environmental impact materials. It also has 75% sustainable waste management, 264 photovoltaic panels, 63 electric vehicle parking spaces, and 25 charging points. The south façade also integrates photovoltaic glass panels that contribute to the energy efficiency of the three buildings. It also has an air conditioning system equipped with photocatalysis and active polarization filters to guarantee air quality, among other environmental benefits.
The project rises from the industrial legacy and stands out as a landmark encouraging values such as modernity, sustainability, and technology. It is LEED Platinum V4 certified, WELL Gold certified, which focuses on the wellbeing of users, and AAA energy certification, in addition to being Wiredscore certified.
▼南外立面集成了光伏玻璃板,the south façade integrates photovoltaic glass panels
▼赤土立面,the terracotta façade
▼赤土型材细部,details of the terracotta profile
▼赤土立面近景,close-up view of the terracotta facade
▼赤土立面细部,details of the terracotta facade
The Smart 22@ building uses the global prop-tech platform Sharry to digitize access, parking management, and the visitor experience. Thanks to its technology, users can access the building’s facilities using their smartphone to unlock turnstiles and doors and a parking space or meeting room with just a few clicks. The APP also facilitates visitor management, as it allows the generation of a QR code for guests, replacing the plastic badge.
▼屋顶花园夜景,night view of the roof terrace
▼项目区位,location
▼平面概念草图,conceptual sketch of the master plan
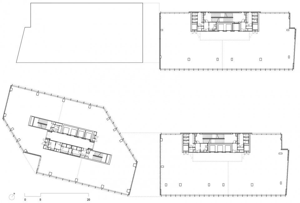
▼首层平面图,ground floor plan
▼二层平面图,second floor plan
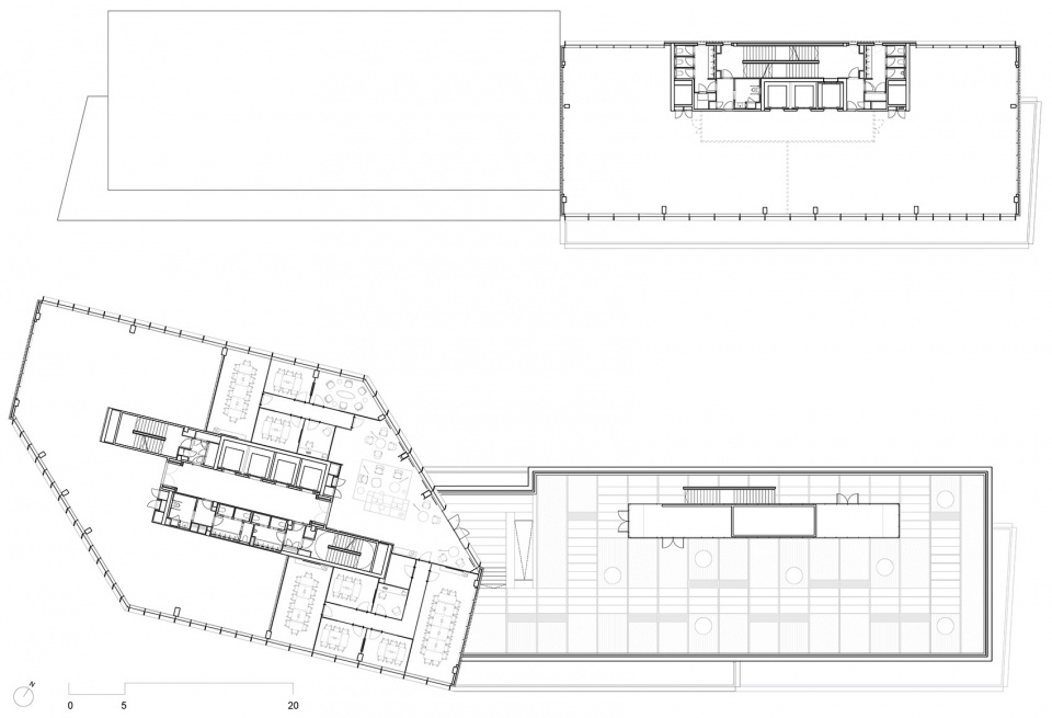
▼七层平面图,seventh floor plan
▼十一层平面图,eleventh floor plan
▼立面概念草图,conceptual sketch of the facade
▼东南立面,the southeast facade
▼东北外立面,the exterior northeast facade
▼东北内立面,the interior northeast facade
Project Name: Smart 22@
Architecture Firm: GCA Architects
Website:
Firm Location: Barcelona and Madrid
Partner: Josep Riu de Martín, Josep Juanpere i Miret
Project Leader: Juan Velasco Garcia de Sierra, Belén Albajar Andreu
Start year: 2019
Completion Year: 2022
Gross Built Area: 24.600 m²
Building 1 (Smart 1): 11.668 m²
Building 2 (Smart 2): 5.994 m²
Building 3 (Smart 3): 6.943 m²
Project location: C/ Pere IV 313, 08020 – Barcelona, Spain
Photography credits: Rafael Vargas
Client: Meridia Capital
Contractor: UTE La Escocesa, Grupo Elecnor+Sorigué
Project Management: TAG Arquitectura & Management
Building Surveyor: Belart Arquitectes Tècnics
Structural Engineer: BAC Engineering, Grupo SOCOTEC
MEP Engineer: PGI Engineering & Consulting
Façade consultants: Ferrés Arquitectos y Consultores
Landscape: Valentina Greselin
Achievements: Leed Platinum V4, Well Gold, Wiredscore Gold
Leed Consultants: Homu Well Tech
客服
消息
收藏
下载
最近
































