查看完整案例

收藏

下载
1. 写生基地的艺术圪塔
The Sketching Base, Art Geda
李圪塔村位于山西省晋城市阳城县董封乡,晋豫两省交界处。村庄地处云蒙山脚,山南水北,建筑群落在浅山地区沿东西向道路展开。建筑风貌极具山西传统地域特色且保存较好。
Li Geda Village is located in Dong Feng Village , Jincheng City, Shanxi Province, adjacent to Henan Province. The village is located at the foot of the Yunmeng Mountains with river on the north. Buildings there, which are well preserved and featured with Shanxi traditional characteristics, are spread along the east-west road in a shallow mountains area.
▼李圪塔村改造后鸟瞰,Aerial View Of Li Geda Village After Renovation
历史感的古建石雕、浓厚的风土人情与独特的风景地貌,使李圪塔村成为众多艺术家与艺术系学生的采风之地,每年已形成5000人次的写生规模,画家、艺术生的到来,为村里带来人气与活力,为此村里成立了艺术写生基地,形成了村庄内宝贵的第三产业。
但是,能结合文化艺术以及旅游的配套设施仍有待完善,街道环境有待提升,历史旧院、历史名人等文化资源有待充分利用。
The historical ancient stone carvings, strong local customs and unique scenery and landfoms have made Li Geda village a place for many artists and art students who bring popularity and vitality to the village, and a scale of 5,000 people come for art practice has been formed every year, for which the village has set up an art base.The village has developed a valuable tertiary industry, but there is still a need to improve the supporting facilities that can combine culture and art as well as tourism.
Also, the street environment needs to be upgraded, and cultural resources such as old historical courtyards and figures need to be revalued.
▼更新前艺术写生盛景,Artistic Sketch Scene Before The Renovation
新修建的太行1号旅游公路沿村南侧通过,使交通便利性得到极大的提升,也成为村庄对外展示的重要窗口。由此拉开了针对在地性产业资源配套和旅游资源配套为双重目标的乡村改造。
The newly built Taihang 1 tourist road runs along the south side of the village, increasing the accessibility and creating an important window for the village to showcase itself to the outside world. The village has thus been transformed with the dual objective of supporting local industrial resources and enhancing the tourism resources.
▼村庄西侧入口空间,Entrance Space On The West Side Of The Village
2. 克制性设计干预
Restrained design interventions
乡村改造更新是容错度很低的脆弱地区。历史遗留的乡村格局和功能用途,其长久存在的心理影响力和习惯化的物质活动的合理性犹存。
李圪塔村一街(Main Street)两带的村内格局清晰,街边一层皮为公共建筑,第二层为四合院私宅,功能板块明确,仍旧合理。所以,对于规划适合最大程度保留格局,以最低的动作达成靶向改善,是产生出克制性规划的出发点。
The renovation of the countryside is a vulnerable zone with a very low tolerance for error. The historical village pattern and functional uses, their long-lasting psychological influence and the rationality of the local custom still remain.
The village pattern can be identified easily as two strips and one street (main Street), with public buildings as the first layer along the street and private courtyard houses on second layer, showing clear and rational functional panels. It is still reasonable. So for the planning it is appropriate to preserve the existing pattern and achieve targeted improvements with minimum effort, which is the starting point for generating a restrained plan.
▼公共设施沿主街分布,Public Facilities Are Distributed Along The Main Street
3. 针灸式刺激,新与旧的交融
克制性设计干预的理念,不是整体刷新,甚至也不是建筑单体的面貌刷新。不论外来观察者的审美情趣如何,刷新总是容易倾向于干预过大。
The idea of restrained design interventions is not a renovation of the whole, nor a refresh of the look of individual buildings. Regardless of the aesthetic sensibilities of the outside observer, it is always tend to intervene too much.
▼剧院魅影改造前后对比,Comparison Of The Phantom of the Theatre Before And After The Renovation
对于格局保留,就比较容易选择对建筑选点的“针灸式”刺激;不大拆大建,在保护、传承基础上的改造更新;街道风貌不大量刷新也不大量做旧,新与旧交融呼应,建立熟悉而陌生的感觉;乡土的环境、材料、风貌特色与现代的技术、工艺、设计手法相结合。
While, in the case of preservation, the approach of an ‘acupuncture’ stimulation of selected points of the buildings is identified. Instead of demolishing or building a large number of new buildings, we should focus on the basis of conservation and inheritance. By doing so, the street style is not heavily refreshed or made old, the new and the old elements are blended and echoed to create both a familiar and unfamiliar feeling, and vernacular environment, materials and landscape are combined with modern technology and design techniques.
▼村庄西侧入口空间,Entrance Space On The West Side Of The Village
4. 精准性有机微更新系统
Precise organic micro-renewal system
针灸式刺激倡导使用小规模的精准干预,以少量重要节点——剧院魅影、美术馆等——带动周边更大范围,以至促进整体系统的改善;是在一个协同的视角下,分步提升的改造策略。所以节点的重要性首先是产业与经济的提升能力打造,其次是建筑设计对于产业建立和提升路径的承载合理性,再次是使用人群及传播受众的精神共鸣度。
Acupuncture stimulation advocates the use of small-scale, precise interventions with a few important nodes, such as The Phantom of the Theatre and Art Gallery, so as to drive a larger area around them, and even to promote the overall system; it is a step-by-step strategy for upgrading under a synergistic perspective. The importance of the nodes is therefore firstly promoting the industrial and economic upgrading capacity, secondly enhancing the rationality of the architectural design for the establishment and upgrading of industry, and thirdly creating the spiritual resonance of the users and online audience.
▼重要节点针灸式刺激,Acupuncture Stimulation At Important Nodes
▼村西侧入口节点空间更新,Renovation Of The Entrance Node On The West Side Of The Village
目前村庄一产薄弱,二产缺乏历史传统和“无中生有”的资源,但是当下已经建立起相对成熟的美术写生基地,人流稳定充沛,大多数为在校学生及青年教师;由此发展出少量成熟艺术家定期来此采风,交流办展。衍生出少量建立在这个传播面之上的观光旅游。
文化艺术活动牵动的旅游与教育都是轻质产业,短板在于服务仍未满足基本需求,艺术教育活动相对低端薄弱,没有对村庄产生消费的产业链延伸。由此确立沿着艺术教育活动继续加深打造此条产业主轴线。
The village, even through is currently weak in the first industry and lacks the historical tradition and resources supporting the second industry, now has established a relatively mature art base with a steady flow of users who mostly are school students and young teachers, while attracting a small number of artists who come here regularly to exchange ideas and hold exhibitions, to some extend, promoting the local tourism built on this spread.
Tourism and education are light industries linked to cultural and artistic activities, but the services still do not meet basic needs, and artistic and educational activities are relatively weak failing to extend the industrial chain that promote consumption in the village. This has led to the creation of an industrial axis along the arts and education activities.
▼总体设计草图,Overall Design Sketch
更新设计沿村庄原有主街展开,于主轴线中选择 “起·承·焦·展·借·联”的节点,在保留街道空间尺度与风貌的前提下,合理衔接有节奏的落地化再造,对不同要素、主体的带动与统合,有目标、有计划、有步骤系统性操作,形成有效精准性干预,建立有机微更新系统。
The regeneration is developed along the original main street of the village, and the nodes of “start-undertake – focus – exhibition – borrow – link” are selected in the main axis. Based on the premise of preserving the spatial scale and street appearance, a rhythmic rebuilding is rationally connected, and different elements and subjects are driven and unified. Through a systematical operation leading by a rational target, plan and progress, an organic micro-renewal system could be established through precise interventions.
▼村庄整体功能序列,Overall Function Sequence Of The Village
系统节点起于村庄一头一尾,结合已有建筑建立村庄门户标志;村口广场与农田景观承接门户,留住乡愁记忆;剧院魅影(影剧院)形成公共核心区;沿1号公路沿线打造民居风貌,展示乡村新风貌;砌坝蓄河,建立亲水平台,借水打造滨水活动区;联系河流北部的山岭村落与河流南部的自然山体,跨河登山。并沿带状的主轴两侧布置主要产业功能区,包括艺术写生区、艺术工作区、艺术教育核心区、公共核心区、艺术康养区,形成空间与形态、功能耦合的功能序列。
The nodes of the system start at the two ends of the village, establish the village gateway by combining with the existing buildings, entrance square and the farmland, together retaining nostalgic memories. The Phantom of the Theatre forms the public core area along Highway 1, showing the local residential style and representing the new appearance of the village. Dams are built to store the river, establishing a waterfront platform and using the water to create an event space, while linking the mountain villages in the north of the river with the natural mountains in the south. The main industry areas are arranged along both sides of the main axis, including the art sketching area , art workshop, art education core, public core area and art recreation zone, forming a functional and morphological sequence.
▼美术馆空间,Gallery Space
5. 场所再生&文化振兴
PLACE REGENERATION • CULTURAL REVITALIZATION
在传承中创新,传统的文化、时代的象征、集体的记忆,通过在建筑艺术中传承文化内涵的传承性设计,实现现代与传统的交融再生。
公共空间,曾是乡村交流建立感情枢纽的主要载体。通过“场所再生”公共空间,提供可睹之物,显山露水,房前屋后;重塑村庄的凝聚力、文化特质、故乡惆怅,实现外来者与当地居民的情感共鸣,达到“文化振兴”的目的。
Innovation in heritage. The tradition culture, time symbols, and the collective memory are continued through the art of architecture, achieving the regeneration and blending of the modernity and tradition.
Public space was once the main carrier of communication and emotional hubs in villages. The public space is revived through “place regeneration”, providing visible objects, showing the landscape, reshaping the cohesion of the village, its cultural qualities and the hometown nostalgia, realizing the emotional resonance between outsiders and locals, while achieving the purpose of “renaissance of literature and art”.
▼剧院魅影院落夜景,Night View Of The Phantom of the Theatre
邻近村庄西侧入口区域原本就是村内担负镇一级公共功能的重点公共空间,沿着村内的主街,在北侧有曾经的村委会、商铺,南侧有旧日的剧场影院、粮站供销社。显然这里是曾经的村内物质和精神的双重中心。
设计中,建设可供今人重走故人之路的那些街头巷尾,建立还能够让现在村民与外来艺术家一起共存,继续发生交流的公共空间,如保留整顿沿街古老商铺门面房及门前晒太阳平台,在其对面改造咖啡厅、酒吧、艺术沙龙等。
主街北侧的旧有门面房,稍作整饬,门窗构件评估,应不换尽不换,门前平台保持旧貌,不做更改,不追求不需要的精致。
The area adjacent to the western entrance of the village was originally a key open space for the town’s public functions along the main street, with the former village council and stores on the north side and the old theatre and grain depot on the south. It is clear that this was the physical and spiritual centre of the village.
Through design, streets and lanes are updated so that the present generation can retrace the historic steps , while creating public spaces where the present villagers can co-exist and interact with foreign artists, such as preserving the old shop fronts and the sunbathing terraces in front of them, and transforming them into cafes, bars and art salons.
The old frontages on the north side of the main street have been slightly reorganised and the windows and doors were assessed and should not be replaced as far as possible; the terraces in front of the doors are kept in its old form without changes nor the pursuit of unwanted refinement.
▼更新后的艺术家商店,Artist Store After Renovation
6. 空间承载,产业提升
6.1 废旧影剧院改造的艺术沙龙 | The art salon of theater transformation
主街南侧原有电影院已经大半都坍塌,唯余街边放映和办公的三层小砖楼,对此街面建筑也是加以修缮,立面不做重新构筑,不刷新其建筑气质。
坍塌的观众厅仅保留其外墙现状,将观众厅视为内院广场改造,在其中设置架高于地面的数个椭圆形层层叠上的艺术沙龙空间,交付给来此的艺术学生与教师的日常教学讨论。原舞台也坍塌了一半,进行了安全加固改造为四个舞台民宿,对内面向观众厅艺术沙龙,对外面向南侧河道与山景。
▼剧院魅影设计示意,Diagram
Most of the original cinema on the south side of the main street has collapsed, leaving only a small three-storey brick building for screenings and offices, which was repaired slightly neither through reconstructing the facade nor refreshing its architectural quality.
The facade of the building was preserved, and the collapsed auditorium has been transformed into an inner courtyard with several oval cascading art salon spaces raised above the ground, which are used for the daily art teaching and discussion. The original stage has also collapsed in half and has been reinforced and transformed into four stage lodges, looking at the auditorium art salon internally and facing the river and mountain to the south externally.
▼剧院魅影,The Phantom of the Theatre
▼剧院魅影-椭圆形艺术沙龙,The Phantom of the Theatre -Oval Art Salon
弃的山村影院,旧貌犹存,功能全变,外貌仍是当年外貌,内里变为彩色椭圆层叠的玻璃沙龙,在朝阳和落日下,旧砖包裹着院中若隐若现一角的彩色椭圆玻璃梯田,在晚上,舞台民宿将此地变为了一个小型酒店。使得公共区域的使用从单纯的白天时间延伸到夜晚,提供了全天候业态服务。
Therefore, the once disused village theatre still has its old appearance but with new functions. The exterior remains the same as it was then, the interior has been transformed into a glass salon with a cascade of coloured ovals. During the sunrise and sunset, a colorful oval “glass terrace” could be noticed accidentially in the courtyard wrapped by old bricks. In the evening, the Stage home-inn transforms the place into a small hotel, making it possible to extend the use of the common areas from purely daytime hours into the evening.
▼艺术沙龙室内舞台,Art Salon Indoor Stage
6.2 改造原有粮站,提供产业支撑 | REBUILD THE ORIGINAL GRAIN DEPOT TO PROVIDE INDUSTRIAL SUPPORT
紧邻旧影院东侧是一座条形废弃供销社粮站。当地艺术培训机构需要一处大空间展览与艺术生集中上课培训与集体作画和测试空间,故结合剧院的艺术沙龙功能将此粮站改造为美术展览与多功能厅。
Immediately to the east of the old cinema is a disused grain depot in a shape of a strip. The local art training institution need a large space for exhibitions, art training , group painting and testing, so the depot was transformed into an art multifunctional hall in conjunction with the art salon of the theatre.
▼粮站美术馆主入口,Main Entrance Of Grain Depot Art Museum
保留了粮站原有条形旧有建筑,并且按照这个旧有建筑条形范式母体重复其肌理,进行加建,形成连跨双坡屋顶大空间展厅。原油粮站立面以及门洞造型保留成为展厅内部隔墙,外墙材料延续红砖风貌,在建筑入口位置用少量大尺度钢结构金属网的新语言加强双坡形式,贯彻熟悉与陌生新旧共存。打造“粮站艺术培训基地”。
Here, the original strip-shaped building was retained, and an addition was made to continue the linear morphology, creating a large exhibition hall with a double-slope roof. The facade and doorway of the former grain depot are retained as internal partition walls for exhibition, while the external wall material continues the red brick style. A small amount of large scale metal mesh is used at the entrance to reinforce the double-sloped form, suggesting the coexistence of familiar and unfamiliar, the old and the new. Hence, the “Grain Depot Art Museum” has been created.
▼改造后的粮站美术馆,Grain Depot Art Museum After Renovation
▼美术馆室内,Inside The Art Museum
旧影院与美术馆的改造按照设计的气质表达命名为“剧院魅影”,成为沿太行一号国家风景道的视觉昭示中心。保留老格局老立面,加强新局部,植入新业态,在原基础上重建乡村公共交流,重拾乡村记忆、留住“乡愁”。
The renovation of the old cinema and art gallery is renamed as Phantom of the Theatre, and becomes a visual centre along the Taihang No.1 National Scenic Byway. By doing so, the old features are preserved, new parts are inserted and enhanced, and fresh businesses could be implanted, so as to rebuild the public communication in the village, revive the local memory and to retain the “nostalgia”.
▼剧院魅影鸟瞰,Overlook Of The Phantom Of The Theatre
6.3多功能活动工坊 | MULTIFUNCTIONAL ACTIVITY WORKSHOP
▼艺术家交流多功能空间,Multi-Functional Space For Artists Communication
7. 先锋乡村,创作修行
Pioneering countryside, Creative practice
建成使用后的一年多来,本地自发依照此项的针灸小节点提升策略,继续延伸街道其他部分节点的景观改造。功能的植入,空间的改造提升得到了艺术培训机构与其学生群体、到访艺术家的欢迎,热度逐步提高,写生人数逐步上升。同时,新增的民宿餐饮等功能,既满足了写生人群的需求,也增加了村民的收入。而在此改造美术馆、展览馆中,举办了多次艺术家展览和集会。助力推动了地方的文化内核传承与产业、人口、经济重新聚集的协调。
In the years after the renovation, the local community has continued to extend the landscape transformation in line with the “acupuncture” strategy of upgrading small nodes along the street, which has been welcomed by art training institutions, students and visitors, increasing the usage rate of the building through hosting a large number of exhibitions and art gatherings. This has helped to promote the local cultural heritage and the integration of industry, population and economy.
▼举办艺术展览,Hold Art Exhibitions
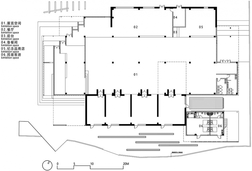
▼剧院魅影首层平面图,First Floor Plan
▼剧院魅影西立面图,West Elevation
▼剧院魅影剖面图,Section
▼粮站美术馆首层平面图,First Floor Plan
▼粮站美术馆南立面图,South Elevation
项目名称:李圪塔村针灸式更新改造
项目类型:乡村更新、建筑改造
设计方:北京水木清城建筑设计咨询有限公司
项目设计:2021.02
完成年份:2021.10
设计团队:廉毅锐、李丹、卢鹏鹏
项目地址:山西阳城
建筑面积:6824.01㎡
摄影版权:版权属于:北京水木清城建筑设计咨询有限公司,摄影师:战长恒
客服
消息
收藏
下载
最近































