查看完整案例

收藏

下载
COLLECTIE,取自荷兰语收藏之意。业主希望将COLLECTIE中古家居的店铺空间塑造成汇集百家珍宝的收藏夹。让人们在这里的每一次相遇,都是温暖而富有趣味的雅集;让人们在上世纪的经典设计的交融中,开启一场探索身体,家具与万物的亲密对话。
COLLECTIE, the meaning of collection in Dutch. The client is committed to create a box of treasures with the space of COLLECTIE mid-century modern furniture store, empowering every encounter, and initiates the dialogue between body, furniture and beyond.
▼项目概览,overview of the project
店铺的建筑改造与室内设计由office FORTE操刀,致力于创造一个镂空的百宝箱,让光、景、人无间穿梭变换,同时建筑构件本身成为精巧的零件穿插其间,既定义了宝箱的结构,又成为箱中的收藏。
The store is designed by office FORTE, as a hollowed-out box of treasures, to enable the permeation of light, sight and mind. The building components are delicate parts, that define the spatial structure of the treasure box, and at the same time become the collection themselves.
▼室内陈列的家具,furniture displayed in the interior
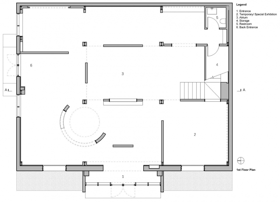
设计中营造了各种各样的开口,促成室内外及室内空间之间的流动。在建筑改造尺度上,从西立面与第五立面的方向,建筑分别被两个立方体量穿透,预示了两个人流与光线的主要方向:一,从西面引入空间腹地,二,从建筑的中心垂直向上。
Openings of all kinds are designed, to promote the mobility between inside and outside, as well as between spaces inside. The given space is penetrated by two volumes, one from the west side toward the center, and the other from the center upwards, which also indicates the two main circulations and lighting orientations.
▼店铺外观,exterior view
▼外立面开口,the opening of the facade
体量切削作用于平面自然形成了类九宫格的布局。在建筑内部靠近入口处,建筑师插入镂空的圆筒体量,将建筑的西北转角融汇成多方向流动的空间,在入口另一边则形成相对封闭的方形房间,用于特殊或临时展陈。中庭四周的片墙以插接的方式与二层楼板结合,与中庭四角的柱子间形成与节奏的开口,使得中庭成为角部弱定义的空间,在拥有足够墙面应对展陈的同时,与周围环抱的空间之间有紧密联结。
The volumetric operation results in a 3 by 3 grid in plan. Inside close to the entrance, the architect inserts a hollowed-out cylinder, that integrates the northwest corner of the store space. On the other side of the entrance, a comparatively enclosed space is formed, to allow for independent temporary exhibition. Around the atrium, four pieces of wall are plugged onto the second floor slab, shaping a series of openings with the columns on the first floor. The atrium, lacking corner definition, thus becomes a space ambiguously defined, that ties with surrounding spaces.
▼建筑师插入镂空的圆筒体量,将建筑的西北转角融汇成多方向流动的空间,the architect inserts a hollowed-out cylinder, that integrates the northwest corner of the store space
▼中庭空间,the atrium
▼中庭俯瞰,overlooking view of the atrium
▼弱定义的空间,ambiguously defined spaces
▼中古家具的杂糅,the mixture of the mid-century modern furniture collection
构件细节处理上,建筑师通过消解建筑构件的定义与体量,来呈现语义的暧昧与空间的模糊。一层墙面延伸到二层成为栏杆,消解了建筑构件的单纯定义。柱子作为承重构件,其长细比突破常规认知,竖向排列的条砖更进一步消解了柱子的重量感,并进一步拉高了柱子的比例,使柱子好似拉住屋顶的拉力构件,扭转了受力方向的认知。
The architect deconstructs building elements and presents semantical ambiguity. The wall on the first floor extends up to the balustrade of second floor, dissolving the singular function of a certain component. The columns, as load bearing parts, present a peculiar sense of slenderness. With the vertical tile arrangement further dissolving their weight and elongate their proportion, the columns seem like tension members that pull the roof down, reversing the perception of force direction.
▼建筑师通过消解建筑构件的定义与体量,来呈现语义的暧昧与空间的模糊,the architect deconstructs building elements and presents semantical ambiguity
▼一层墙面延伸到二层成为栏杆,消解了建筑构件的单纯定义,the wall on the first floor extends up to the balustrade of second floor, dissolving the singular function of a certain component
外墙的两个侧窗状似被凿开的洞口,与西立面中间的方形洞口形成对立的主被动关系——视线上,敞开的大门与窥视的洞口并置;建造上,砌筑的加法与凿除的减法并置。二层的圆木扶手如穿针引线一般将柱与墙织紧,在虚实之间营造了隐隐的力量感。
Two side windows on the west façade are chiselled holes, as opposed to the central squarish frame, constructing two pairs of contrast: the wide-open front door to walk through vs. the chiselled opening to peep at, the addition of central frame construction vs. the subtraction of side window frame construction. The handrail on the second floor thread through columns and walls, creating a sense of tension in between.
▼窥视的洞口,the chiselled opening to peep at
▼二层的圆木扶手如穿针引线一般将柱与墙织紧,the handrail on the second floor thread through columns and walls
▼二层扶手旁的陈列空间,showroom around the handrail on the second floor
室内的材料颜色基调定为淡草绿与大地色,在与中古家具经过实践沉淀于包浆的色泽协调的同时,为空间注入清新的光泽。草绿色在收藏宝盒中好像绿宝石仗,与装点其中的盆景植物相得益彰。
A colour palette of muted grassy green and earthy hues coordinates with the mid-century modern furniture collection, and infuses the space with vibrancy. The gassy green gem mace in the treasure box bright up the air together with potted plants.
▼室内的材料颜色基调定为淡草绿与大地色,a colour palette of muted grassy green and earthy hues
▼家具为空间注入清新的光泽,furniture infuses the space with vibrancy
▼各式各样的中古家具,the mid-century modern furniture collection
▼一层平面图,1st Floor Plan
▼二层平面图,2nd Floor Plan
▼西立面图,west elevation
▼剖面图,section
项目名称:COLLECTIE 中古家居店铺设计
项目类型:建筑改造+室内
设计方:office FORTE 北京孵地建筑设计有限公司
项目设计:2021
完成年份:2022
设计团队:吴晓涵
项目地址:北京市朝阳区半截塔路 朗园station 23号库C6-1
建筑面积:333㎡
摄影版权:COLLECTIE中古家居
客户:COLLECTIE中古家居
Project name: COLLECTIE STORE DESIGN
Project type: Architectural renovation and retail interior design
Design: office FORTE
Design year:2021
Completion Year:2022
Leader designer & Team: WU Xiaohan
Project location: Beijing
Gross built area: 333㎡
Photo credit: COLLECTIE
Clients: COLLECTIE
更多关于他们:
孵地设计室
客服
消息
收藏
下载
最近



























