查看完整案例

收藏

下载
项目背景
Background
项目服务于重庆市江北区两个独立校园。建筑的原始场地是一片狭长土坡,西侧的快速路及周边环绕的高层住宅群给场地带来了强烈的压迫感。综合体服务于两个校园的特性又使其需综合考量不同人群使用的流线和空间感受。这些来自外部与内部的需求都需要在现实的场地上寻找到一种具备设计张力与弹性的回应。
This complex is to serve for two independent campuses in Jiangbei District, Chongqing. The original site is a long and narrow soil slope, with the expressway on the west side and the surrounding high-rise residential buildings.Both bring a strong sense of oppression to the site. These external and internal demands require us to find a design response with adaptability.
▼项目鸟瞰,Bird View
基于对场地的直观印象,我们希望建筑与地势可以达成和谐的平衡关系,结合两个校园的分区布置的策略,在校园整体规划中将综合体放置于场地中的最高处的山顶,再顺应地势于山地两侧布置中学和小学,使其能同时服务于两个校区。
Based on the intuitive impression of the site, we hope that the architecture and the terrain can achieve a harmonious balance.The complex is placed on the top of the site,and then the middle school and primary school are arranged on both sides, so that it can serve the two campuses at the same time.
▼顺应地势布置中学和小学,Arranging Middle and Primary School According to the Terrain
偶发性的“交流”空间营造
Create Occasional Communication Spaces
与传统的老师“教”为出发点不同,我们以学生的“学”为设计的出发点,将对教育的关注落在偶发性的“交流”上,从而激发唤醒受育者的潜在能力。
Different from traditional schools which start from “teaching”, we take students’ “learning” as the starting point of design, and focus on the occasional communication in education to stimulate and awaken students’ potential abilities.
▼远看综合体,Aerial View
综合体设计在形体上强调雕塑感的营造,通过螺旋上升的切割手法,强化了上升的势能。同时切割后生成的大量灰空间,成为了一个天然的舞台或事件发生器。
The design of the complex emphasizes the sense of sculpture, and converts the rising potential energy through spiral form. At the same time, the covered space in this sculpture becomes a natural stage or event generator.
▼综合体外观,Exterior View of the Complex Façade
小学校区,通过线性空间的引导、对景的布置创造了开阔的视野和较大的尺度感。小学生从入口经山路抵达门厅,可以望见标志性的综合体与远处的中学教学楼次第有序,形成一幅“山”的画卷。
The primary school area creates a broad vision and a greater sense of scale through the linear space sequence and the layout of the view window. Primary school students arrive at the foyer from the entrance through the mountain road. The iconic complex and the middle school buildings in the distance are arranged in sequence, forming a “mountain” picture frame.
▼小学入口平台望综合体,View From the Primary School Entrance Platform to the Complex
▼小学入口门厅,Primary School Entrance
中学校区,在空间组织上更强调空间的变化与层次,削弱了综合体建筑的体量感,将其与其他教学楼一起打造成一个聚落式的山地校园。L形综合体与教学楼在中学校园的最高处围合成极具戏剧性的大台阶。
On the other side, the middle school campus layout focuses on spatial changes. The buildings merge into the terrain, and creates a settlement-style mountain campus. The L-shaped complex forms a dramatic staircase at the highest point of the secondary school campus.
▼综合体与中学教学楼次第有序,Complex and Middle School Teaching Buildings
▼鸟瞰综合体与中学教学楼,Aerial View of the Complex and the Middle School Teaching Buildings
▼中学综合体前入口大台阶,The Front Entrance Steps
趣味性的立面语言
Interesting Façade
立面设计的灵感来源于斐波那契数列,将铝板和窗户组合成的方形窗通过L型组合,旋转,再重复,最终推演成看似随机却又不乏韵律的马赛克图案。数学与美学的融合使校园综合体如同一个精妙的巨型雕塑,为处于校园中学习玩耍的学生提供了非常明确的空间意义与行为支撑。
The facade design is inspired by the Fibonacci sequence. The square shape composed of aluminum panels and windows rotates repeatedly, and finally deduces a seemingly random but rhythmic mosaic pattern. The integration of mathematics and aesthetics makes the campus complex like an exquisite giant artwork.
▼综合体立面,Façade
▼从操场望向综合体,View From the Playground to the Complex
丰富社区生活图景
Enrich Community Life
传统教育建筑设计往往出于安全考量,利用围墙将校园与城市隔绝,使校园与城市的紧密联系难以维系。而教育建筑作为城市公建中的重要一环,恰恰承担着当代中国城市化进程中重新缝合周边社区亲密关系的的社会性使命。设计利用场地的特殊地势,以综合体统领整个校园,打破一般教育建筑的局限性,把校园有机地“编织”进周边的社区环境。
For security reasons, traditional educational buildings often use walls to isolate the campus from the city, making it difficult to maintain a close connection between the campus and the city. However, as an important part of urban public construction, educational buildings undertake the social responsibility of re-sewing the intimate relationship between surrounding communities in the process of contemporary urbanization in China. Our design takes advantage of the special topography of the site, breaks the limitations of ordinary educational buildings and organically weaves the campus into the surrounding community environment.
▼校园与城市,Campus and City
综合体作为学校对外展现自身魅力与文化的窗口,打破了千篇一律的城市街景,创造了具有层次感的街道界面,丰富了周边社区居民的生活图景。综合体之于社区,犹如帕提农神庙之于雅典卫城——当居民在社区街道中一瞥综合体,蔽体于大体量建筑所营造的场所感中,此刻校园的文化价值彰显无遗,它以一种非常具有包容性和征服力的感受影响着整个社区,乃至整个城市。
As a window for the school to display its charm and culture to the city, the complex breaks the rigid urban streetscape, creates a well-defined street interface, and enriches the lives of residents in the surrounding communities. The complex is to the community what the Parthenon is to the Acropolis—when residents glimpse the complex on the streets of the community, affecting by the sense of place created by the large-scale architecture, the cultural value of the campus is fully displayed at this moment.It affects the entire community and even the whole city with a very inclusive atmosphere.
▼社区街道中一瞥综合体,View From the Community Street to the Complex
▼总平面图,site plan
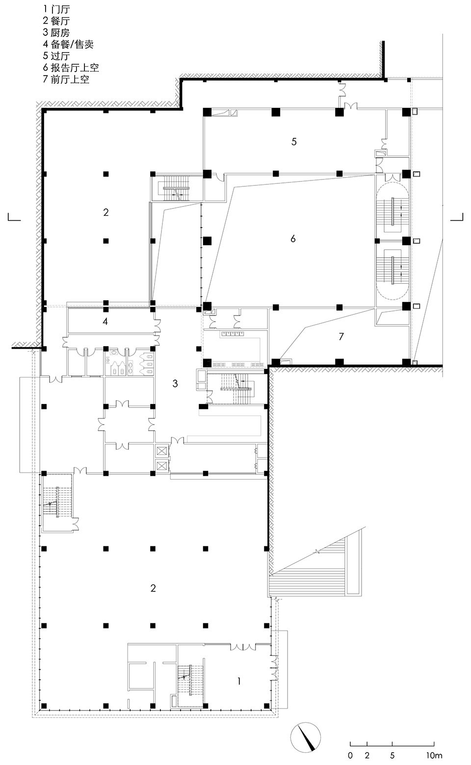
▼综合体一层平面图,first floor plan of the school complex
▼综合体二层平面图,second floor plan of the school complex
▼综合体东北立面,northeast elevation of the school complex
▼综合体东南立面,southeast elevation of the school complex
▼综合体西北立面,northwest elevation of the school complex
▼综合体西南立面,southwest elevation of the school complex
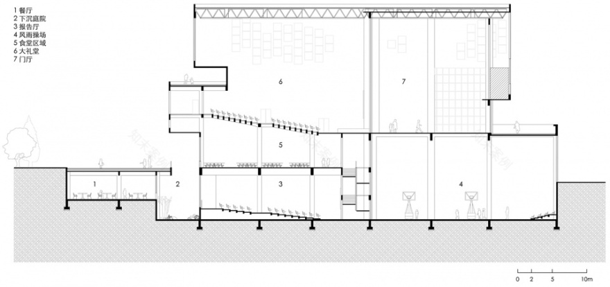
▼综合体剖面图,section of the school complex
项目名称:重庆石子山中小学综合体
项目类型:建筑
设计方:STWD十拓建筑
公司网站:
项目设计:2013-2014
完成年份:2020
设计团队:王纲,周鹏飞,张骁,陆凤,莫尚琨,刘飞,谢家静
项目地址:重庆市江北区
建筑面积:9553.05㎡
摄影版权:繁玺视觉
合作方:未来都市规划建筑设计事务所有限公司
客户:重庆江北区教委
Project name:Shizishan School Complex
Project type:Architecture
Design:STWD (Steelwood Architecture, PLLC.)
Website:
Design year:2013-2014
Completion Year:2020
Leader designer & Team:Gang Wang, Pengfei Zhou, Xiao Zhang, Feng Lu, Shangkun Mo, Fei Liu, Jiajing Xie
Project location:Jiangbei District, Chongqing
Gross built area:9553.05 ㎡
Photo credit: Fancy Images
Partner:Futurepolis L.L.C.
Clients:Chongqing Jiangbei District Education Committee
客服
消息
收藏
下载
最近
























