查看完整案例

收藏

下载
Kremlin-Bicêtre医学院位于该校附属医院场地的中心位置,旨在通过此次扩建实现一个宏伟的愿景:使该院系成为法国卓越的、面向城市与科学界的研究和教育中心。
The extension of the Faculty of Medicine, at the heart of the Kremlin-Bicêtre University Hospital site expresses its ambition to constitute a centre of excellence for French research and education, open to the city and the scientific world.
▼项目概览,Exterior view
项目位于场地中的主导位置,享有巴黎及其郊区的全景视野。建筑物的外形与场地本身的几何形态相一致,并在此基础上创建出一个多面体,其圆润的转角与既有建筑构成了对话关系。
Located on a dominant point, it enjoys an exceptional panoramic view of Paris and its suburbs. The shape of the building takes up the geometry of the site of implantation and creates a polyhedron whose rounded corners dialogue with the existing architecture.
▼建筑和城市环境,The building and the urban context
高质量的生活成为设计的关注点:每个单元的中心均设有休闲和放松的空间。
Particular attention is paid to the quality of life: spaces for conviviality and relaxation are grouped together in the center of each unit.
▼首层开放空间,Open space on the ground floor
学院的主入口尽可能地靠近既有教学楼和研究大楼,并与学院附属医院的入口相对。前广场的布局加强了三座建筑间的联系,并创造出一个真正的公共空间,使学生、研究人员与医生可以在此聚集和交流。
The main entrance to the institute is positioned as close as possible to the existing teaching and research building and opposite the entrance to the CHU. The forecourt, laid out to create the link between the three establishments, creates a real public space, a place of conviviality and exchanges between students, researchers and doctors.
▼新建筑与既有建筑环境对话,The new building dialogues with the existing built environment
空间
|
SPACE
建筑的几何形状类似于星形,这是从场地的形态推演而来,旨在实现最理想的立面轮廓,使分布在建筑外缘的6个相同的实验室和办公模块获得充足的采光。位于建筑中心的区域被用作“服务型”空间。
This star-shaped geometry, deduced from the shape of the site, develops the optimal façade line to illuminate six identical laboratory and office modules distributed around the periphery of the building. The remaining space at the heart of the building houses the “service” rooms.
▼模块示意,Module
▼立面轮廓,Façade line
▼户外走廊,Outdoor gallery
▼室内空间,Internal view
从面积和交通动线上看,建筑的空间组织紧凑、统一且经济。房间之间的连续性允许不同部门之间的边界产生变化,确保办公室和实验室之间可以互相转换,从而促进未来的发展。
The spatial organisation is compact, unitary and economical in terms of surface and circulation. The continuity of the rooms allows the borders between sectors to vary, ensuring interchangeability between offices and laboratories and guarantees future developments.
▼办公室的全景视野,Panoramic view from the office
▼办公室,Office
▼实验室,Laboratory
形状与材料
|
SHAPE AND MATERIALS
建筑外墙采用了玻璃和明亮的抛光铝,在与光线形成互动的同时强化了建筑的形体特征。柔和的曲线使建筑看上去犹如Brancusi创作的大理石雕塑作品,变化的光线为之赋予了动态的外观。
The glass and clear polished aluminium used in the façade play with the light and enhance the sculptural form of the building. Like a polished marble sculpture by Brancusi, the building is reflected in its curves and changes appearance depending on the light outside.
▼建筑立面,Building façade
曲线造型同时也呼应了学院和医院所构成的环境,将场地中已有的设计语汇转化为现代的建筑形式。贯穿室内外的星形穿孔元素强化了建筑的有机主题。屋顶作为第五立面经过了精心设计,以确保技术设备的高质量整合,同时不影响远处的视野。
Its curves echo the environment of the medical school and hospital, translating the vocabulary present on the site into a contemporary form. In perforated aluminium, the bedrock and the termination take up the organic motif of the plan. The fifth façade, the treatment of the roof, is carefully designed to ensure the quality integration of technical equipment and to preserve the view towards the distance.
▼夜间外观,Exterior view in the evening
▼夜景,Night view
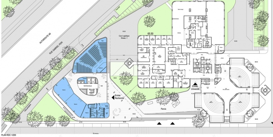
▼首层平面图,Ground floor plan
▼二层平面图,Plan R+1
▼三层平面图,Plan R+2
▼立面图,Facade
▼剖面图,Section
Project owner :Paris Saclay University
Program : Construction of laboratories at the Kremlin-Bicêtre medical school (laboratories, auditorium, meeting room, pet store)
Project manager :
Pargade Architectes (mandatary)
Edeis (engineering)
Voxoa (economist)
Surface : 7 100 m2
Delivery : 2022
Total cost : 20 M€
Pictures: Charly Broyez
Drawings and plans: Pargade Architectes
Suppliers and materials : External aluminium joinery: supplier schüco
Aluminium facade cassette: supplier alucobond
客服
消息
收藏
下载
最近





















