查看完整案例

收藏

下载
教育/艺术社区
An Education and Art Community
宁波东钱湖的教育论坛是一个由会议中心、酒店、美术馆和住宅等设施组成的群落。由于业主从业教育并收藏艺术,因此在该项目中教育与艺术并重。论坛还专门为来访的学者及艺术家建造了四栋“坊宅”,即工坊与住宅的结合,以供他们进行相对长期的研究或创作。
The Education Forum at Dongqian Lake in Ningbo is a community that includes a convention center, a hotel, an art museum, villas, and other facilities. The owner is passionate about education as well as art. A group of four studio-houses are built specifically to accommodate visitors, especially scholars or artists who may come for a relatively extended period of time to conduct research and/or work on creative projects.
▼鸟瞰东钱湖教育论坛,Bird’s eye view of the Education Forum at Dongqian Lake
▼鸟瞰四栋坊宅,Bird’s eye view of the four studio-houses
设计研究
Design as Research
四个坊宅中的三个是张永和于20世纪90年代初在没有业主和基地的情况下首次构思的,设计的焦点是如何模糊古典主义与现代主义之间的界线。这些“纸上建筑”实际上是严肃地对建筑核心问题之一 – 空间 – 的研究,同时也是可建造的方案。坊宅设计的特殊背景使这组建筑成为教育论坛有关艺术研究讨论的参与者。
Three of the four studio-houses were conceived by Yung Ho Chang without client nor site in the early 1990’s as an attempt to blur the line between Classicism and Modernism. These “paper architecture” are in fact serious investigations of a core issue of architecture – space – and buildable propositions as well. This particular history of the project makes these four pieces of architecture an engaging participant in the discussion and exchange of ideas on art and research at the Forum.
▼张永和绘制的院宅研究,1991年,Drawing of Courtyard House Study by Yung Ho Chang, 1991
▼院宅研究实体模型,Physical models of Courtyard House Study
探索空间原型
Prototyping Space
这组坊宅可以认为是建筑空间概念的测试。在这些坊宅中,工作-生活使用需求相对开放,促使我们以空间形态为主导推动设计,产生了四个空间原型,每栋具有独一无二的空间特质。空间设计也不可避免地涉及对体验进而对生活方式的想象。
根据其最具特征的建筑元素,四栋坊宅被分别命名为:廊廊相对宅,玻璃十字宅,来去梁上宅,和翻转屋顶宅。
▼从建筑群入口看四栋坊宅,View of the four studio-houses from the building complex entrance
The studio-houses are meant as experiments to test out ways to organize architectural spaces. The openness of the work-live program allows us to produce four distinctly different spatial conditions. Designing space can never be separated from imagining experience as well as lifestyle.
The four studio-houses are thus named respectively after an architectural element that characterizes the spatial organization. They are House with Face-to-Face Loggias, House with Cruciform Glass, House with Walkable Beam, and House with Flipped Roof.
▼总图,Site plan
廊廊相对宅
House with Face-to-Face Loggias
设计操作想象将一个对称的体量沿中轴分为两半,向外拉开,并在之间置入一水体,在其两侧的底层对应地布置了敞廊。相对的两个廊下空间横跨水面形成该坊宅的半室外-室外生活场所。
During design, a symmetrical volume is imagined being sliced in the middle and pulled apart to accommodate a pool flanked by two loggias on the ground level, one on each side. The two facing loggias define the open space in between framing both outdoor and semi-outdoor events.
▼廊廊相对宅鸟瞰,Bird’s eye view of the House with Face-to-Face Loggias
▼廊廊相对宅入口,Entrance of the House with Face-to-Face Loggias
居者要穿过水院从一侧的住所抵达另一侧的书斋去工作,工作结束回归住所再次跨水而过。过水,成为每日生活中的仪式之一。坐在廊下与对面廊下的朋友隔水交谈, 是小住于此的又一乐趣,此刻廊的关系化作人的关系。
The inhabitant needs to cross the water court from the living quarters to work in the study on the other side and then cross it again on the way back, which creates a ritual for daily living. Sitting in a loggia and talking to a friend is another pleasure the house offers. At that moment, the relationship of loggias morphs into that of people.
▼两廊之间的水院,The water-court between two loggias
▼从底层的工作空间看水院及厨房,View of the water-court and the kitchen from workplace on the 1st floor
▼生活廊一层的厨房,The kitchen on the 1st floor of the living quarters
▼生活廊的楼梯,The staircase in the living quarters
▼生活廊二层的起居空间,The living space on the 2nd floor of the living quarters
▼工作廊二层的书斋,Library on the 2nd floor of the study quarters
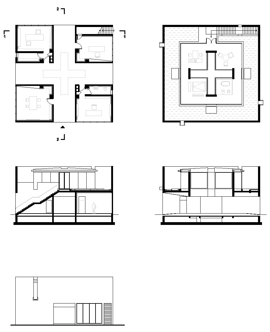
玻璃十字宅
House with Cruciform Glass
一层的研究室以风车形布置。二层的玻璃宅被透明的十字形双层幕墙均分为四间同等大小的房间,其使用分别限定为起居、餐厨、休息、洗浴;同时双层幕墙的空腔将二层和一层联通起来。
On ground level, spaces are organized with a pinwheel formation; on the upper level, a transparent volume is divided into four equal quarters for living, cook/dining, sleeping, and bathing by a hollow cruciform double curtain wall that connects the second-floor to the ground below.
▼玻璃十字宅鸟瞰,Bird’s eye view of the House with Cruciform Glass
▼玻璃十字宅的每侧各有门廊,Porch on each side of the House with Cruciform Glass
▼玻璃十字宅二层入口侧立面
Elevation of the House with Cruciform Glass with access to 2nd floor
▼一层的十字形半室外空间,Cruciform semi-outdoor space on the 1st floor
▼十字形天井,Cruciform light well
二层玻璃宅的空间既开敞又分割。居者沿外侧玻璃墙环绕而行,得以欣赏周边连续的水院,且一瞥四个方位上院墙缺口中透过来的远方风景。
The space in the upper floor glass house is simultaneously open and divided. The inhabitant may move along the outer glass curtain wall enjoying a panoramic view of the surrounding water court, which is only punctured by the sceneries through the cuts in the peripheral wall.
▼二楼出入口,Access to 2nd floor
▼二层由十字空腔玻璃幕墙隔开的四间房间
Four rooms on the 2nd floor divided by cruciform hollow glass curtain walls
▼二层玻璃宅的承重墙从玻璃幕墙围合面推进来,形成有水院环绕的房间之间的过渡,The load-bearing wall pushes in from the glass curtain wall to form a transition between rooms surrounded by a water courtyard
▼从二层房间俯瞰一层,Overlooking the 1st floor from the 2nd floor
▼一层四个研究室之一的烹饪实验室,Cooking Lab in one of the four research spaces on the 1st floor
来去梁上宅
House with Walkable Beam
一个造型艺术工坊属性的高空间被两个内向的超大门廊夹于中间。十字形可走人的横梁穿过画室上空。
A double-height space for plastic art studio is bookended with two oversized porches and floats in the middle a cruciform beam that is walkable.
▼来去梁上宅鸟瞰,Bird’s eye view of the House with Walkable Beam
▼来去梁上宅入口,Entrance of the House with Walkable Beam
▼从东侧看来去梁上宅,View of the House with Walkable Beam from east
在这栋坊宅里,创作围绕梁展开。居者可以站在梁上审视自己的创造,也可从梁上吊挂作品,或从梁上进入书房。
The inhabitant’s creative process unfolds around the beam: standing on it to examine his/her art on the walls or underneath, hanging from it work-in-progress, or crossing it on his/her way to the library.
▼贯穿建筑和庭院的梁
Beams running through the building and courtyard
▼从边院看楼梯间
View of the staircase from the side yard
▼从廊下看工作室室内,View of studio interior from the porch
▼在可行走十字横梁上,View from the walkable cruciform beam
▼横梁可通往图书室,Cruciform beam leads to the library
▼从可行走的十字横梁上可以欣赏挂在两侧墙面上的艺术作品,From the walkable cruciform beam, one can view the art works hanging on the walls on both sides
▼三楼的厨餐厅,Kitchen and dining area on the 3rd floor
翻转屋顶宅
House with Flipped Roof
一个大空间由一个颠倒坡屋顶划分出工作和居住两个相通的部分。
A single space is divided by an inverted sloped roof into two zones, one for work and one for live.
▼翻转屋顶宅鸟瞰,Bird’s eye view of the House with Flipped Roof
▼翻转屋顶宅廊侧立面,Elevation of the House with Flipped Roof with porch
▼翻转屋顶宅主入口,Main entrance of the House with Flipped Roof
居者创作与生活几乎在同一空间里。在视线上,各在屋顶一侧的工作和居住区域只有有限的联系;但居者无论在哪一侧总能意识另一侧的存在。坊宅的意义在于既分又合。
This inhabitant lives and works in the same space, almost. Visually, live and work areas on opposite sides of the inverted roof have limited connection yet whichever side the inhabitant is on he would be constantly aware of the other. Studio-house juxtaposes combination and separation.
▼入口,Entrance
▼一层的开放空间,Open single space on 1st floor
▼通过门廊望出去,上面可看到屋顶与二层之间的空隙,Looking out through the porch with a glimpse of the gap between the roof and the 2nd floor
▼二层生活区,Living space on 2nd floor
▼从浴室门口看二层生活区,Living space on 2nd floor viewed from bathroom door
材料性
Materiality
钢筋混凝土像粘土一样被用来塑造纯粹的空间。通过木模板,外露的混凝土表面纹理避免了抽象化并获得了物质性表现。
Reinforced concrete is used like clay to mold pure spaces. The textured surface of the exposed concrete poured in timber formwork is intended to avoid abstraction and give expression of tangibility to the spaces.
▼木模混凝土墙面细部,Details of concrete wall with timber formwork
▼木模混凝土塑成的建筑空间:从室内到室外,Architectural spaces molded by concrete poured in timber formwork From indoor to outdoor
▼总图,Site plan
▼来去梁上宅图纸,House with Walkable Beam
▼玻璃十字宅图纸,House with Cruciform Glass
▼廊廊相对宅图纸,House with Face-to-Face Loggias
▼翻转屋顶宅图纸,House with Flipped Roof
项目信息/ Project Info
客户/Client: 宁波华茂教育文化投资有限公司/Ningbo Huamao Education and Culture Investment Co., Ltd
地点/Location: 浙江宁波/ Ningbo, Zhejiang, China
主持设计/Principal Architects: 张永和,鲁力佳/ Yung Ho Chang, Lijia Lu.
项目团队/Project Team: 梁小宁、黄舒怡、武竹青、韩书凯、张敏、何泽林/Liang Xiaoning, Huang Shuyi, Wu Zhuqing, Han Shukai, Zhang Min, He Zelin.
设计管理/ Design Management:浙江华之建筑设计有限公司/Zhejiang Huazhi Architectural Design Co., Ltd
设计合作/Collaboration: 中国建筑上海设计研究院有限公司/China Shanghai Architectural Design & Research Institute Co., Ltd
基地面积/Site Area:3900m2
建筑面积/Building Area: 1255m2
建筑结构/Structure: 钢筋混凝土结构/Reinforced Concrete
设计周期/Design Period: 2013-2016
竣工时间/Completion Time: 2022
客服
消息
收藏
下载
最近

















































