查看完整案例

收藏

下载
该项目位于山西省宁武市,包括建造一座燕麦工厂: 将生燕麦进行深加工,转化为燕麦米及燕麦粉、燕麦冲调粉等产品。自动化加工过程需要建设两条不同的生产线,配备大批量机械设备。同时,也需要建造对公众开放的空间,包括商店、咖啡厅及办公空间。
Located in Ningwu, Shanxi province, the project consisted in the creation of an Oatmeal factory, transforming raw oat into flour products. The production process, mostly automated, needed two different production lines with high volume machinery and spaces open to the public with shop, café and office spaces.
▼项目概览,Overall view
▼空中俯瞰,Aerial view
该项目的周边环境并不理想,有一些新建的工业厂房,当地干燥气候条件下的景观及煤矿等,由此我们考虑将工厂发展成一座内向型建筑,重新创造其内部的自然环境。除了满足所有的功能需求,我们希望这个建筑能够激发人们更多的感受,给参观者的体验带来惊喜感。
▼场地原貌,Site picture
The surroundings of the project offered very low quality with newly constructed industrial buildings, dry landscape and coal mines and it seemed interesting to develop the factory as an introverted building that would recreate its own natural environment. Besides satisfying all functional requirements, we thought the project as a building that stimulates human senses, that would propose a surprising experience to the visitor.
▼局部鸟瞰,Partial aerial view
我们的概念是使用砖墙的形式将工厂的各个技术空间围合和隐藏起来,在这个不透明的底层上方搭建一个简洁的有体量感的混凝土建筑,承载该项目全部的公共空间。
The idea was to use a system of brick walls to enclose and hide the various technical spaces of the factory into an opaque ground floor and to set-up a simple concrete volume on the top of it, to host all the public spaces of the program.
▼外立面青砖铺装纹理,Facade texture
▼街道视角,View from the street
天井和花园将穿透整个建筑,提供自然采光的同时在工厂内创造了令人印象深刻的空间延伸感。建筑中央的生产车间通过屋顶混凝土结构的特殊形状得到北向明亮的自然采光。
Patios and large gardens will pierce the whole building, to provide natural light while creating impressive spatial dilatations within the factory. Central production spaces will also get natural light from concrete sheds, opening the roof to the north light.
▼大堂,Lobby
▼中庭自然光,Atrium bathed in natural light
▼车间,Production space
▼自然光氛围的车间,Production space gets natural light from concrete sheds
砖墙的设计形式从工厂正门开始,那里的景观区域特意开放给当地社区使用,设有长椅和水池供孩子们玩耍。砖墙由长椅的形状开始,逐渐成长为工厂适宜的围护,再之后发展为整个建筑的外墙。
The system of brick walls starts from the front of the factory, where a landscape area is voluntarily left open to the use of the local community with benches and water pools for kids to play. Brick walls grow slowly from benches shape to become the propriety fence of the factory and later, the façade of the whole building.
▼工厂入口街道视角,View from the entrance level
▼工厂入口,Entrance to the factory
▼走廊,Corridor
砖墙的形状将形成和定义工厂的不同入口,每个入口均有其特定的功能:原材料的运送、产品的装载、工作人员及参观者的入口。员工和访客被划分为不同路径,在工厂内不会有任何交集。工作人员将享有一个有序组织的工作环境,而参观者则将经历一段有规划的空间体验。并在参观过程中的某个时刻,站在俯瞰车间的高架走廊上看到整个生产线的展示。
The shape taken by the brick walls will form and define the different entrances of the factory, each of them with a specific function: The raw materials delivery, the products loading, the staff and the visitor entry. Separated into distinct paths, staff and visitor will never cross ways inside the factory and while the workers will enjoy a functional organization, the visitor, will go through a planned spatial experience. At one moment only, the production line is showcased to the visitor in an elevated corridor overlooking the workshop.
▼室内景观,Interior landscape
▼青砖与红砖的对比,The contrast between grey bricks and red bricks
▼红砖铺装细节,Redbrick cladding
▼室内外关系,Interior and exterior
▼红砖,Red brick
▼前台,Reception
▼红砖走廊,Red brick corridor
员工宿舍被设置在工厂的后面,设想为一个隐形的建筑。以加厚的砖砌围墙为建筑的主体,并在建筑内部设计了天井庭院,为房间带来采光的同时保证了私密性。工厂和宿舍之间的空地改造为了一个花园,其中设置了一个混凝土浇筑的长桌和方形座椅。
The dormitory for employees was set-up in the back of the factory and conceived as an invisible architecture. The brick fence wall was thickened to host the building and patios were created to bring light to the rooms while preserving their intimacy. The space between the factory and the dorm becomes a garden in which a concrete table and square seats were set-up.
▼休息洽谈区域,Resting area
▼户外活动空间,Outdoor space
▼后院花园,Backyard
建筑材料的选择也具有很强的现实意义:使用青砖及当地的施工方法是一种与场地建立深厚关系的方式。另一方面,清水混凝土强调了建筑的现代性,并且可以使结构本身和建筑紧紧结合在一起。
The choice of construction materials carries a strong meaning: the use of the grey brick is a way to create a deep relationship with the site, using local construction methods. Exposed concrete, on the other hand, emphasizes the modernity of the building and allows structure and architecture to be bind together.
▼青砖铺装细节,Grey brick cladding
▼庭院与水景,Garden and water scape
景观设计也完全融入到了设计过程中,屋顶收集的雨水通过现浇混凝土排水口被重新引向不同楼层的水池,使雨水的自然循环成为空间体验的一部分。水流一直顺势流到工厂的入口处,在那里汇成一道景观瀑布落下,结合12米悬空的混凝土LOGO墙,邀请参观者进入建筑。
The landscape design is also fully integrated in the design process and rain water collected on the roof is redirected to water pools on different levels through cast-in-place concrete water exhausts, making the natural circulation of rainwater part of the experience of the space. The water flows until the entrance of the factory where a last water fall, combined with a twelve meters cantilever concrete logo wall invites the visitor to enter the architecture.
▼屋顶雨水收集系统,Rain water system on the roof
在整个设计过程中,设计师需要更好的处理监管规范带来的限制和要求。消防规范要求建筑顶部必须设有一个消防水箱,我们将其设计成一个挑出的不锈钢盒子,这是一个完全独立的元素,使其最后以一个现代雕塑的形态轻盈的悬空在屋顶上。
Across the design process, some regulatory issues were solved through design. Fire-fighting regulation required a water container on the roof that we decided to design as an independent element, a cantilevered stainless-steel box, like a sculpture on the roof.
▼照明效果,Exterior view with lighting
▼夜间外观,Night view
▼傍晚鸟瞰,Aerial view
▼模型,Model
▼总平面图,Site Plan
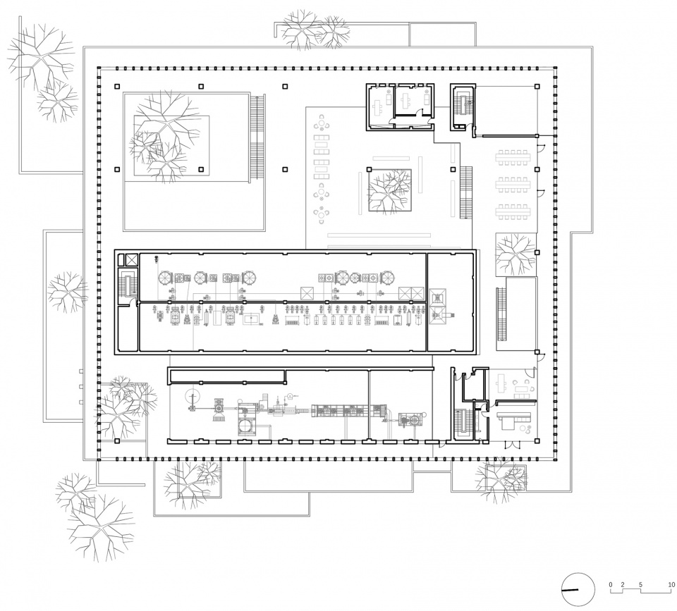
▼一层平面图,Plan 1F
▼二层平面图,Plan 2F
▼三层平面图,Plan 3F
▼立面图,Elevations
▼剖面透视图1,Perspective section 1
▼剖面透视图2,Perspective section 2
▼剖面图1,Section 1
▼剖面图2,Section 2
▼细部详图,Detail
项目名称:宁武燕麦工厂
项目坐标:山西省宁武市
项目类型:景观设计、建筑设计、室内设计
项目状态:已建成
设计公司:JSPA Design
主持建筑师:Johan Sarvan, Florent Buis
设计周期:2018年3月- 2019年3月
施工周期:2019年7月-2021年10月
场地面积:23850平米
建筑面积:8800平米
员工宿舍:600平米
工厂室内面积:7500平米
建筑净高:15米
容积率:0.40
绿化率:0.80
结构工程师:蒋杰设计
机械、电器、管道顾问:蒋杰设计
材料:灰砖、红砖、混凝土
造价:7000万人民币
摄影:Schran Images
视频:Schran Images
Project name: Oatmeal Factory
Project location: Ningwu,Shanxi province, China
Project type: landscape design, architecture design, interior design
Project status: built
Design firm: JSPA Design
Principle architects: Johan Sarvan, Florent Buis
Design period: March 2018 – March 2019
Construction period: July 2019 – October 2021
Site area: 23800 sqm
Gross floor area- factory: 8800 sqm
Gross floor area- dormitory: 600 sqm
Interior space: 7500 sqm
Architecture height: 15 meters
Floor Area Ratio: 0.40
Greening rate: 0.80
Structural engineer: Jiangjie Design
MEP Consultant: Jiangjie Design
Building materials: grey bricks, red bricks and concrete
Cost: 70 million RMB
Photo: Schran Images
Video: Schran Images
客服
消息
收藏
下载
最近












































