查看完整案例

收藏

下载
现代校园设计不是一个个孤立的建筑体,我们的设计不强调庄严对称的建筑体量,更多的是设计空间和营造环境,以人为本,以学生为中心,希望通过建筑的围合,创造出丰富的校园空间环境。校园融入自然,以苏州传统园林造园的手法,巧妙处理建筑的形态,通过局部体块的弯折变化,创造出不规则的,多维立体的空间,形成移步易景的校园景观,使自然在校园中延续与渗透,打造传统空间形制与现代教育需求交融的创新场所,一个师生学习、活动、交流的理想场所。
▼校园鸟瞰,aerial view of the school
Modern campus design is not an isolated building. Our design does not emphasize the solemn and symmetrical building volume, but more on designing space and creating environment. It is people-oriented and student-centered. We hope to create a rich campus space environment through the enclosure of buildings. The campus integrates with nature, skillfully handles the form of buildings by means of traditional gardens in Suzhou, creates irregular, multi-dimensional and three-dimensional space through the bending and changing of local blocks, forms a campus landscape that is easy to move, makes nature continue and permeate in the campus, creates an innovative place where the traditional space form and modern education needs blend, and is an ideal place for teachers and students to study, conduct activities and exchange.
▼校园主入口,Main entrance of Campus
▼校园西入口,Campus west entrance
总体规划
Master Plan
延续统一、突破创新
Continuity and unity, breakthrough and innovation
项目选址位于苏州工业园区兴浦路西、金胜路南、沽浦路东、振胜路北,项目用地约 6.25 公顷,拟规划建设一所 90 班学校。基地周边水系丰富,西侧沽浦河对面是金浦公园景观优美,与原星浦学校隔河相望。
The project site is located in the west of Xingpu Road, the south of Jinsheng Road, the east of gupu road and the north of Zhensheng road in Suzhou Industrial Park. The project covers an area of about 6.25 hectares. It is planned to build a school with 90 classes. There are abundant water systems around the base. Opposite to the gupu River on the west side is the Jinpu Park, which has a beautiful landscape and faces the original Xingpu school across the river.
▼项目与周边城市环境概览,Overall of the project and surrounding environment
项目整体布局选取分而不隔的院落作为空间设计的原型——传统的院落空间再面对城市具有的内向型和面对自身具有的互动性方面与这个项目希望达成的愿景是相似的,形成由教学建筑以及其他教学用房围合形成的庭院式院落校园空间。我们将一些功能空间进行了整合,形成了沿着城市道路的综合体建筑,形成了丰富的各种形态的院落,共同构成了这所 “轻盈灵动”的开放式校园。
The overall layout of the project selects separated courtyards as the prototype of space design – the traditional courtyard space is similar to the vision of the project in terms of its introversion in the face of the city and its interactivity in the face of itself, forming a courtyard style campus space surrounded by teaching buildings and other teaching buildings. We have integrated some functional spaces, formed complex buildings along the urban roads, and formed a rich variety of courtyards, Together, they form this “light and flexible” Open Campus.
▼概念分析,Concept analysis
▼空间分析,Spatial analysis
空间设计延续呼应了老校区的空间, 使整个区块的规划空间完整统一,力求主体空间与老校区整体规划既呼应协调,又各具特色。建筑沿街面有效的退让了城市绿带,又保持了大气的城市界面,兼具标志性。
The space design continues to echo the space of the old campus, so that the planning space of the whole block is complete and unified, and the main space and the overall planning of the old campus are coordinated and have their own characteristics. The building effectively retreats from the urban green belt along the street, while maintaining the atmospheric urban interface, which is both symbolic.
▼交通空间,Traffic space
教学办公区与生活、运动区之间通过一系列宽敞连廊联系,教学区居于校园中心,各功能区域分区明确又紧密结合,保证学生最短的生活学习动线,提高了校园空间的利用,丰富了景观的层次,也使学习步行流线与生活文体流线有机结合,共同构成人性化、安全、通畅的校园交通体系。
The teaching office area is connected with the living and sports areas through a series of spacious corridors. The teaching area is located in the center of the campus. The functional areas are clearly and closely integrated, which ensures the shortest living and learning routes for students, improves the utilization of campus space, enriches the landscape level, and organically combines the learning walking streamline with the living and sports streamline to form a humanized, safe and smooth campus transportation system.
▼西立面整体效果,Overall effect of West facade
▼运动场视角,Playground Perspective
建筑设计
architectural design
立面简约、空间演变
Simple facade and spatial evolution
建筑的立面特色体现在将轻颖、灵动、朴素、优雅的风韵融汇建筑,建筑细部简洁并运用现代构成手法,推陈出新,形成富有现代感,特色鲜明的建筑造型,充分体现建筑简明有力的形象特点。
▼综合楼内庭院入口,Entrance of the courtyard in complex building
▼综合楼内庭院,Courtyard in complex building
▼综合楼内庭院近景,Closer view of the courtyard in complex building
▼综合楼内庭院二层视角,Viewing the courtyard in complex building from upper floor
The facade features of the building are reflected in the integration of light, smart, simple and elegant charm into the building. The details of the building are simple and modern composition techniques are used to create new ones, forming a modern and distinctive architectural shape, which fully reflects the concise and powerful image characteristics of the building.
▼校园庭院,Campus courtyard
▼丰富的连廊与景观,Abundant veranda and landscape
▼综合楼开敞平台,Open platform of complex building
我们把地域空间特色与建筑相结合,着重强调空间景观的渗透与空间形态的演变。空间设计延续了建筑的设计思路,在保证满足常规教学空间需求的同时,增加了空间的流动性和多样性。
We combine regional spatial features with architecture, and emphasize the penetration of spatial landscape and the evolution of spatial form. The space design continues the design idea of the building, and increases the mobility and diversity of the space while ensuring to meet the needs of the conventional teaching space.
▼艺体楼局部,Part of the art and sports building
▼艺体楼夜景局部,Art and sports building at night (part)
室内设计
interior design
简洁干练、有机联系
Concise, competent and organic
该项目的室内设计理念本着符合科学、自然、活泼、文化、沟通这五大要素。在空间布局和色彩构成上需要和建筑设计紧密结合,做到建筑风格的有机联系。而在该项目的室内设计中,我们的设计理念中的一个重要部分就是从建筑的形态和色彩入手提炼出一些独特的设计元素,并融会自然的运用于室内空间之中,做到从建筑外部空间到室内空间的完美过渡。
The interior design concept of the project is based on the five elements of science, nature, liveliness, culture and communication. The spatial layout and color composition need to be closely combined with the architectural design to achieve the organic connection of the architectural style. In the interior design of the project, an important part of our design concept is to extract some unique design elements from the form and color of the building, and integrate them into the interior space naturally, so as to achieve a perfect transition from the exterior space of the building to the interior space.
▼入口大厅室内,Lobby
▼大厅,Lobby
以干净、简洁的处理手法来表达空间,在色彩表现上整体色彩以延续建筑简洁、明快色彩关系来充足视觉感官。
The space is expressed in a clean and concise way. In terms of color expression, the overall color continues the simple and bright color relationship of the building to provide sufficient visual sense.
▼图书馆门厅室内,Library lobby
▼体育馆室内,Sport hall
▼黄昏中的校园,Campus in the dusk
▼彩色总平面图,Color general layout
▼一层平面图,first floor plan
▼二层平面图,second floor plan
▼三层平面图,third floor plan
▼四层平面图,fourth floor plan
▼五层平面图,fifth floor plan
▼东立面图,East elevation
▼南立面图,South elevation
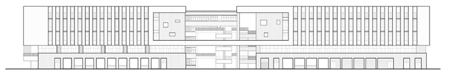
▼西立面图,West elevation
▼北立面图,North elevation
项目信息
项目名称:苏州工业园区星浦实验中学
项目业主:苏州工业园区教育局
设计单位:苏州华造建筑设计有限公司
代建单位:苏州工业园区城市重建有限公司
项目地址:苏州工业园区胜浦街道
项目规模:建筑面积8.7万平方米,90班
设计时间:2020年1月
完工时间:2022年9月
设计总负责人:顾柏男
项目负责人:王志斌
建筑:王志斌、徐宏伟、谈敏、徐向东
结构:陈劲丰、殷韦、顾曦
给排水:罗志华、陈媛
暖通:陆勤俭、姚俭
电气:黄斌斌、贺青波
室内:杨晨、董亚丽、姚刚
摄影:仲几发
Project information
Project Name: Xingpu experimental middle school in Suzhou Industrial Park
Project owner: Suzhou Industrial Park Education Bureau
Designer: Suzhou huazao Architectural Design Co., Ltd
Agent: Suzhou Industrial Park urban reconstruction Co., Ltd
Project address: Shengpu street, Suzhou Industrial Park
Project scale: building area of 87000 square meters, 90 shifts
Design time: January 2020
Completion time: September 2022
Chief designer: Gu Bainan
Project Leader: Wang Zhibin
Architecture: Wang Zhibin, Xu Hongwei, Tan min, Xu Xiangdong
Structure: Chen Jinfeng, Yin Wei, Gu Xi
Water supply and drainage: Luo Zhihua, Chen Yuan
HVAC: Lu Qinjian, Yao Jian
Electrical: Huang Binbin, he Qingbo
Photographer: Zhong Jifa
客服
消息
收藏
下载
最近




































