查看完整案例

收藏

下载
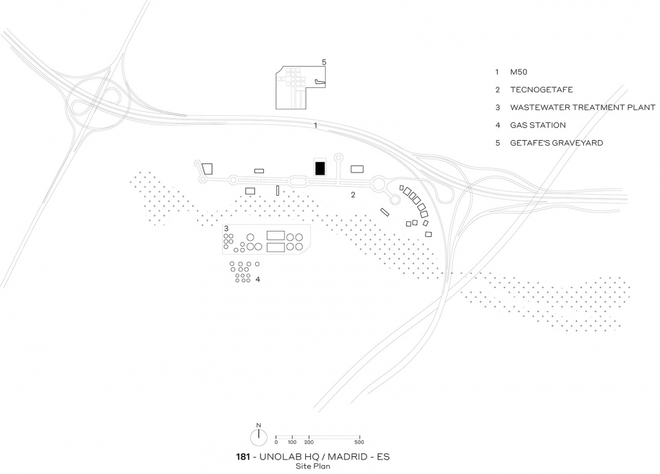
M50公路以南
South to the M50
该项目是为一家制药公司设计的总部大楼,它坐落于马德里南部规模宏大的Tecnogetafe技术园区。园区的两侧分别与M50高速公路和Arroyo Culebro线性公园相邻,其内部的建筑可以直接从M50和R4高速公路的交汇处望见。
▼建筑外观,Exterior view
▼建筑西立面,West facade
The project for the headquarters of a pharmaceutical company in the south of Madrid is located in one of the great Technological Parks mark out a dispersed territory, characterized by the large infrastructures that run through it. Between the M50 orbital motorway and the Arroyo Culebro linear park, Tecnogetafe stands as an incipient technological cluster whose buildings are visible from the important junction that joins the M50 with the R4 motorway to the east.
▼场地平面图,Site plan
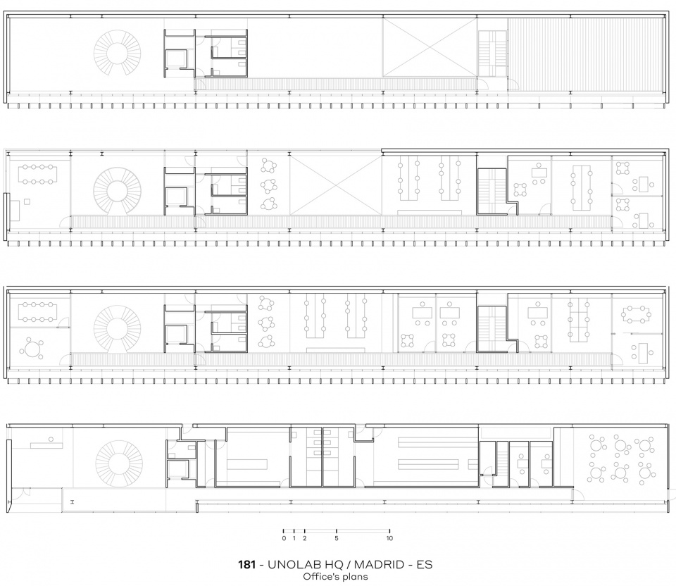
办公室、实验室和物流区域
Offices, laboratories, logistics
该项目作为混合用途建筑,同时容纳了公司总部、实验室和物流区域。建筑设计的思路是在遵循这种功能逻辑的基础上,通过增加简洁的体量来达到基本的使用面积和净空高度的要求。办公室、实验室、调节区和物流区等一系列空间像条带一样串联起来,并被赋予了从7.50米至15.00米不等的体量高度。位于场地前端、总高度为15.00米的带状体量被用于容纳3个办公楼层。
▼西立面近景,West facade close-up view
The building has a mixed program that includes the company’s headquarters, the laboratories, and a logistics area. The project follows this same logic and is developed from the addition of simple volumes that respond to basic surface and free height requirements. Thus, the organization in successive strips – offices, laboratories, conditioning, and logistics – is manifested abroad by changing the total height of the volume from 7.50 m to 15.00 m. Additionally, the front strip, with a total height of 15.00 m, is ordered to host 3 office floors.
▼北立面,North facade
▼南立面局部,South facade close-up view
▼内部空间,Interior view
材料
Materiality
建筑的围护结构对于其整体观感有着决定性的作用:主要的体量由微型波纹金属板围合,其上有一系列开口,在必要时可引入光线。第二层表皮叠加在第一层表皮之上,由半圆柱截面的穿孔金属元素构成,为建筑整体赋予了统一性,同时以其特殊的质感为高度简洁的体量增加了丰富性。朝南的主立面受到混凝土悬臂结构的保护,这些悬臂支撑着由铝管制成的轻盈栅格。
▼立面细部轴测,Detail – axon
The envelopes of the complex play a fundamental role in its architectural qualification: the main volumes are closed by a paneling of mini-wave metal sheet that hosts a series of openings, and that is perforated when necessary to allow light to come in. A second skin is superimposed on this first one made of perforated metallic elements with a semicircular section, which provides unity to the whole, along with a certain texture that enriches the high degree of abstraction of the proposed volume. The main façade, to the south, is protected by prefabricated concrete cantilevers that support a light latticework made of aluminum tubes.
▼半圆柱截面的穿孔金属元素
Perforated metallic elements with a semicircular section
▼外立面近景,Facade detailed view
身份特征
Identity
建筑作为UNOLAB总部大楼的重要特性体现在带状空间内的一系列基础设施上:这一位于主立面背后的区域提供了一系列不同高度的对角线空间,同时容纳了走廊和会议区。在大厅内,螺旋楼梯被设置在一个巨大的通高空间内,连接了建筑的所有楼层。
The necessary representativeness of the building as the headquarters of UNOLAB is achieved through a series of basic operations within the strip on the main façade, providing a sequence of diagonal spaces with different heights, and that house the access and the meeting areas. In the hall, a large void hosts a spiral staircase connecting all the floors.
▼办公区大厅,The hall
▼螺旋楼梯连接各楼层
Spiral staircase connecting all the floors
▼屋顶平台,Roof terrace
▼建筑西侧近景,West facade partial view
▼体块轴测示意,Axon – diagram
▼首层平面图,Plan level 0
▼二层平面图,Plan level 1
▼五层平面图,Plan level 4
▼东立面图,East elevation
▼南立面图,South elevation
▼西立面图,West elevation
▼北立面图,North elevation
▼办公区平面图,Office floor plans
▼办公区剖面图,Office floor sections
181 Unolab HQ
Offices, Laboratory, Manufacturing and Production Center, Getafe-España
2021
Client: Private
Surface: 6.590 m2
Location: Getafe, España
Building end: 07-2021
Project leaders:Pablo Oriol, Fernando Rodríguez
Collaborators:Maria Díaz, Ricardo González, Adrián Sánchez, Matilde Lorenzo
Consultants:Axiom Ingeniería, ANRO Estructuras, Pablo Urbano
Images:Luis Asín
客服
消息
收藏
下载
最近





























