查看完整案例

收藏

下载
GP大楼坐落在哥伦比亚麦德林的一片传统街区中,地处河谷,周围是低密度房屋。建筑位于La Aguacatala,这里曾经是住宅区,现在被改造成为了机构和服务区。GP意识到了这种变化,其建筑在实现企业目标的基础上,回应了周边环境。项目重新诠释了在更高密度建筑中的居住方式。立面自然地将砖材裸露在外。混凝土与金属的使用体现了城市中传统的建造系统。麦德林是一个由砖块组成的城市。建筑基地的三条边上均设有界墙,使得设计必须与邻里脱开距离,关注内部空间的视觉效果。
▼建筑外观,external view of the building
GP is located in a traditional neighborhood in Medellin, Colombia, in the river valley, and surrounded by low-density projects. The building is located at La Aguacatala which was originally conceived for single-family homes but transformed later into an institutional and service sector. GP is aware of this, and its architecture, without denying its corporate purpose shows a response to its surroundings. The reinterpretation of the way of inhabiting, of the domesticity in a higher density construction. The façade exposes the brick in its natural way. Concrete and metal were chosen with the utter purpose of expressing traditional constructive systems used in the city. Medellin’s colors assemble the ones of bricks. This building is developed under the condition of a party wall site on 3 of its sides. This created the necessity of moving the building away from its neighbors and appreciating the visuals in its interior.
▼立面上裸露的砖块
exposed bricks on the facade
根据上述设计策略,项目发展出了交叠的体块,相互错开形成内部花园。植被是建筑的第四种材料,尽管它所带来的价值难以确定,但是对于让人们认识到热带气候对环境的塑造来说,这些植物不可或缺。
This was the architectural strategy from which the project developed imbricated volumes, which moved apart from one another to create internal gardens. Vegetation is the fourth material and its contribution is intangible, but it’s necessary to recognize that the tropic is responsible for creating its surroundings.
▼层叠的体量形成花园,imbricated volumes creating gardens
▼立面近景,closer view to the facade
项目的室内布局有很强的逻辑性。一层是大厅和公共使用空间,如礼堂和员工的休闲花园。上层为私人空间,由办公室组成。屋顶被改造成了一个城市眺望台,景观是这里的全部。
The distribution in its interior is logical: a ground floor where the lobby and common use spaces like the auditorium and recreation gardens for workers are found. Superior levels hold private spaces, which are constituted of offices and a rooftop that transforms into an observatory of the city, which scenery is pure landscape.
▼轴测图,axonometric
过渡空间和生态气候策略是热带建筑的特点所在。阳光从上方直射建筑,因此设计在立面上设置了遮阳板和绿化。开放的种植空间在室内形成交叉通风,屋顶的太阳能板为建筑提供能源。
The tropic’s architecture is distinguished for generating transition spaces and bioclimatic strategies are nurtured from this. The sun hits the building upfront. Because of this, sun breakers and vegetation are used in its façade. Also, cross ventilation is achieved through open plant spaces, and energy use is provided by solar panels which are located on the rooftop.
▼植物与遮阳板阻挡阳光,sun breakers and vegetation protect the building from sunlight
室内,项目重新诠释了公司建筑。传统的办公室布局完全违背了人们在疫情中获得的认知。我们变成了数字游牧民,在生活中工作 ,因此GP设计了一个家庭一般舒适的空间。金属结构为主要元素,陶土色的高品质材料填充其中。最终完成的建筑积极实用,且有着很高的社会效益。
In its interior, we find a project which looks to reinterpret corporate architecture. Conventional office layout goes against everything learned through the pandemic. We are digital nomads and inhabiting and working are detachable, so GP’s design found a way of being cozy and domestic: terracotta-colored, noble materials and allowing the metallic structure of being the main character. This building achieves to be constructive, programmatic, and socially efficient.
▼家一般舒适的室内空间,cozy and domestic interior space
▼家具与装饰
furniture and decorations
▼会议室
meeting room
▼私人办公室
private office
▼材料细部,material details
▼楼梯间,staircase
通过简洁的几何体量、传统的建造方式以及对内部空间的新诠释,GP重新体现了对周边环境的继承。其形态独特,以灵活多变回应了不断变化的当下社会。
With simple geometries, traditional construction, and a new interpretation of the domestic. GP is the result of reinterpreting the inheritance of its surroundings, being a critic in its shapes, and building a temporal validity of a society that is always changing, which is migratory and in constant transformation.
▼总平面图,site plan
▼一层平面图,first floor plan
▼二层平面图,second floor plan
▼三层平面图,third floor plan
▼四层平面图,fourth floor plan
▼五层平面图,fifth floor plan
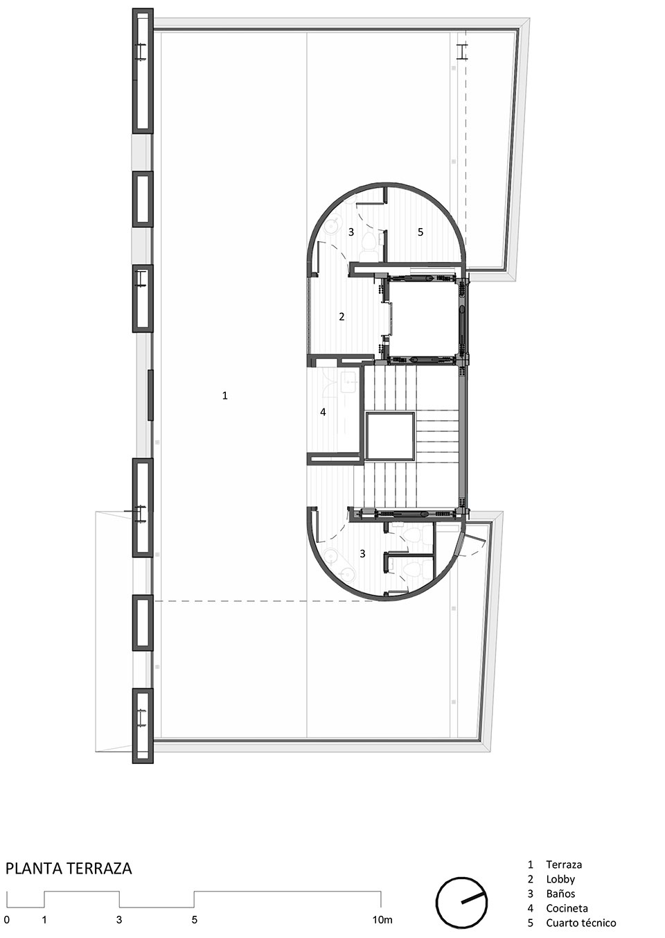
▼露台平面图,terrace plan
▼屋顶平面图,roof plan
▼主立面图,principal elevation
▼背立面图,back elevation
▼纵剖面,longitudinal section
▼横剖面图,transversal section
Project name: GP Building
Architects: OA+
Website:
Studio location: Medellin, Colombia
Year: 2020
Area: 989.56 m2
Location: Medellin, Colombia
Use: Offices
Lead Architects: Danny Rozo, Juan Diego Carvajal, and Susana Arroyave
Photographs: Mateo Soto
Website:
m@mateosoto.co
客服
消息
收藏
下载
最近

































