查看完整案例

收藏

下载
在PLANG GUY事务所改造下,曾经破败不堪的三层宿舍楼焕然一新,巧妙的设计为建筑引入了新的生机。
PLANG GUY Architects were assigned to revitalize the 3-storey dormitory building which has been dilapidated through time. New design has introduced to bring back the livelihood to dormitory.
▼项目概览,overall of the project
保留原有结构、增添全新氛围
Existing structure remains. Atmosphere is changed
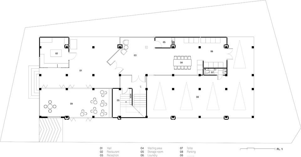
在改造过程中,建筑师保留了原宿舍楼四四方方的建筑形式与山墙屋顶,通过保留钢筋混凝土结构,并拆除建筑前后的屋檐,赋予了建筑新颖的、现代化的外观。其后在原建筑有限的层高内,建筑师对室内空间进行了重新规划,底层空间被完全翻新,并划分为三个不同区域,包括:接待处、洗衣房,以及餐厅。住宅区域则被规划在建筑的二层与三层。
A traditional boxy form with gable roof building was restored. Reinforced concrete structure has been preserved while the eaves at the front and back of the building was demolished giving a modern and fresh look to the building. With its limited height, new programs were reconfigured. Architects renovated the entirety of the ground floor, divided the ground floor into three distinct zones: – reception, laundry services and restaurant. Residential zone was moved up to the second and third floors.
▼改造前后对比,after vs. before renovation
呼吸立面
Breathable façade
三角形和对角线的灵感来自于建筑的山墙屋顶,这些元素被灵活运动在立面的新设计中。同样地,尽管在泰国人的传统理念中山墙屋顶才是房子的象征,但是增加的第二层表皮还是有意地隐藏了现有的屋顶,这种设置为建筑的前部创造出深度,使其从周围环境中脱颖而出。立面的形式来源于由相互连接的三角形组成的菱形,材料则选择了白色的复合铝板。整个立面被切割并折叠成三角形,立面还设有一系列三角形的开口,用于装饰与通风。此外,建筑师还在立面框架的后面安装了防护网,以保护鸟类。
▼由街道看建筑,viewing the project from the street
▼主入口立面,front facade
▼屋顶细部,
details of the roof
Triangle and diagonal line which was inspired by the building’s gable roof were used as design elements for the new façade. Likewise, though Thai’s perception, a gable roof symbolizes house. The addition of a second skin purposefully hided the existing roof and to create more depth to the building’s front making it popped out more from surroundings. The form of the façade derived from the interconnected triangles which resulted in a rhombus shape. White aluminum composite sheet was a chosen material for its façade. The entire façade was cut and fold in triangular shapes, making triangle holes for decoration and for air ventilation. In addition, netting was installed at the back of the façade’s framework for bird protection.
▼主入口,main entrance
▼接待处悬挂的“平安”灯牌,The “PingAn” sign hanging in the reception room
▼室外空间与立面细部,details of the outdoor space and the facade
阳台是本项目中另一个重要的问题,通常情况下,阳台可以作为日常晾晒与放置空调外挂机的地方,然而随着时间的流逝,阳台空间会变得过于杂乱。因此,建筑师采用了镂空立面解决了这一问题,立面上的通风模块是随机的,这种设置能够在保证室内隐私的情况下,为室内引入充足的光线与通风,同时,随机的排布方式还在白天产生了令人意想不到的光影效果。PLANG GUY事务所相信每一个细节都至关重要,只有这样才能真正创造出实用的设计。
Besides, balcony was another concern as it was conventionally used for cloth hanging and for AIR-CDU placement which later became over-cluttered to beholders. Ventilation blocks were its design solution. The blocks were installed randomly to keep privacy and still allow light and air to filter through. Random patterns created by the ventilation blocks also generated unexpected lighting phenomenon during daytime. Plangguy Architects believed every detail matters in order to develop a practical design.
▼次入口立面,secondary entrance side
▼镂空墙面,the treatment of hollowed-out on the facade
▼镂空墙面细部,details of the ventilation blocks
▼随机的排布方式还在白天产生了令人意想不到的光影效果,
random patterns generated unexpected lighting phenomenon
舒适的生活空间
Cozy living space
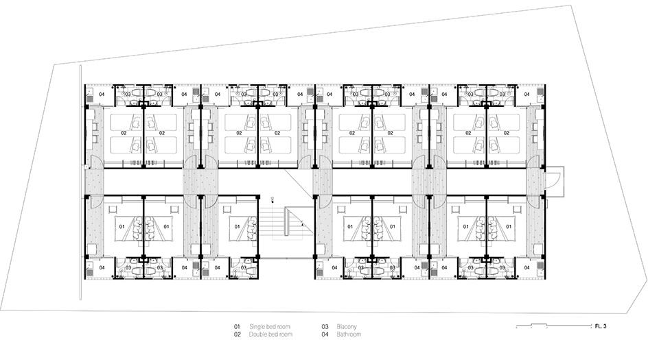
底层空间中,现有的灰暗色地砖被白色水磨石取代,轻快的色调在视觉上拓展了空间。坚实而厚重的墙壁被部分拆除,大面积的玻璃为室内引入充足的自然光线,并将室内空间与室外环境无缝衔接在一起。此外,建筑师还在宿舍楼侧面与前面增添了室外绿色空间。对于上部的住宅楼层,除了保留卧室和浴室在原来的位置外,其他都是新的。楼梯窗户和走廊窗户被扩大,旨在让更多的日光进入室内空间中。在楼梯间的顶部,设有一处开放的公共空间,宿舍楼的居民们可以在这里放松休闲,享受一整天的轻松时光。这种“插入式”的口袋公共空间,促进了居住者之间的社交互动。
On the ground floor, existing gloomy colored floor tiles were replaced by white terrazzo with an intention to perceptually widen the space. Solid walls were removed. Glazing windows were inserted, bringing the light in, seamlessly merging the indoor and outdoor space. Green space was added by the side and at the front of the building. While the upper floors, architects kept bedrooms and bathrooms in its original location but otherwise it’s all new. Staircase windows and hallway windows were expanded to let more of daylight in. At the top of the stair hall, lies a little space open for communal use where dwellers can sit and relax throughout the day. The insertion of pocket common spaces all over the building, therefore, creates social interaction among dwellers.
▼入口接待空间,reception area
▼大面积的玻璃取代了厚重的墙壁,营造出通透的氛围,
large areas of glass replace the heavy walls to create a transparent atmosphere
▼餐厅入口,entrance area of the canteen
▼餐厅,canteen
▼公共洗衣房,public laundry
为了能够更好地分隔空间,原有的天花板吊顶被拆除。白色,代表简单、乐观和清新,它作为本项目的主色调统一了室内与室外的氛围。设计师选择性地将白色材料与少量木材元素进行对比,用于室内装饰、缝隙空间、以及家具中,浴室则采用了石材,此外,公共区域内的大量绿色植物,则进一步营造出温暖舒适的家庭生活氛围。不仅如此,设计师还通过色彩比例来创造视觉美学,实现整体的统一,并定义房间的功能和分区。间接光源与环境光的引入,使房间在视觉上变得更加宽敞。楼梯与走廊则采用了柔和的色彩,如橙色、蓝色或浅黄色,通过视错觉图形设计,增强了空间的纵深感,营造出新颖活跃的室内氛围。
▼楼梯间,staircase
▼色彩鲜艳明快的走廊,hallway with bright colors
The cancellation of the existing ceiling panel help spacing up the place. White is a featured color of the project. It was used for both interior and exterior. White refers to simplistic, optimism and refreshing. Designers electively contrasted the white materials with little of wood elements for interior furnishing, aperture and furniture, stone accents in the bathrooms, and plenty of greenery within communal areas to represent warmth and homey sense of living. Not only that, but designers also create visual aesthetics via color proportion to achieve overall unity and to define function and zoning in the room. Indirect light or ambient light was also introduced to make the room more spacious. Pastel colors like orange, blue pale or light yellow were applied at the stair hall with an optical illusion graphic design which played with natural depth perception of the appearance of the building.
▼宿舍房间,dorm rooms
▼房间的多种类型,different type of the dorm rooms
▼一层平面图,1F plan
▼二层平面图,2F plan
▼三层平面图,3F plan
▼立面图,elevations
▼剖透视图,perspective sections
Project size:990 m2
Completion date:2021
Building levels:3
Architects/ Interior Designers:Plang Guy
客服
消息
收藏
下载
最近





































