查看完整案例

收藏

下载
隋唐大运河是世界上开凿最早、规模最大的运河。公元605年,隋炀帝下诏开凿通济渠,历经5年,建成以洛阳为中心,南起余杭(杭州),北通涿郡(北京),全长2700余公里的大运河。大运河的开通产生了久远而积极的影响,对中国经济文化的发展起到了巨大的促进作用。隋唐大运河文化博物馆是新时期国家运河文化战略的重要节点工程,也是国家“十三五”重点文化工程。博物馆坐落于洛阳市主城区瀍河入洛河口的西北角,内设展览陈列、公共休闲、研学会议、文物储藏等多个功能区,是集文物保护、科研展陈、社会教育于一体的综合性运河主题博物馆。建筑设计主要有以下特点。
▼建筑外观,external view of the building
The Sui and Tang Grand Canal is the earliest and largest canal in the world. Sui-Tang Dynasties Grand Canal Culture Museum is an important node project of the national canal culture strategy. The architectural design mainly has the following characteristics.
▼鸟瞰,aerial view
场地是位于洛河与瀍河交汇处的三角形用地,空间组织先天比较局促。博物馆建筑布局一方面尊重并呼应洛河大堤上已经形成的仿唐建筑群“瀍壑朱樱”的中轴线,另一方面在内部空间组织上用层层递进的功能空间布局规避不利的地形影响,形成了完整连续的展厅单元和富于变化的内部空间体验。
The site is located in the triangular land at the intersection of Luo River and Chan River, and the spatial organization is inherently limited. On the one hand, the architectural layout of the museum respects and echoes the central axis of the Tang Dynasty style buildings that have been formed on the Luo River embankment. On the other hand, in terms of the internal space organization, it uses the progressive functional space layout layer by layer to avoid adverse terrain effects, forming a complete and continuous exhibition hall unit and a variable internal space experience.
▼鸟瞰,项目位于洛河与瀍河交汇处,aerial view, project located at the intersection of Luo River and Chan River
▼建筑由连续单元组成,building composed of continuous units
建筑风格方面,博物馆所在的隋唐大运河国家文化公园正处于隋唐洛阳城遗址的范围,周边规划了大量的仿唐风格景观建筑。按惯常思路,这座运河博物馆必是唐风建筑无疑。我们的设计试图跳脱出仿唐风格的包围和束缚,寻找对隋唐历史文化的不同切入视角。
In terms of architectural style, the museum is located within the scope of Luoyang City ruins in the Sui and Tang Dynasties, and a large number of landscape buildings imitating the Tang Dynasty style are planned around it. According to the usual thinking, this canal museum must be a Tang Dynasty style building, Our design attempts to break away from the encirclement and bondage of imitating the style of the Tang Dynasty and look for different perspectives on the history and culture of the Sui and Tang Dynasties.
▼与仿唐建筑的对话
dialogue with the buildings imitating the Tang Dynasty style
隋唐时代是我国古代技术发展的一个高峰期,跨越洛河而规模宏大的洛阳都城规划,明堂、天堂、龙门石窟等体量巨大的土木工程以及大运河的开凿都集中出现在这一时期。所以,我们抓住隋唐大运河这一古代水利工程的技术特征,以洛河上架设的拱桥结构为原型,用现代建造技术的自然呈现来取代对传统风格的具象模仿,从而实现古今文明的对话。
The Sui and Tang Dynasties were a peak period of the development of ancient technology in China. We grasped the technical characteristics of the ancient water conservancy projects of the Grand Canal in the Sui and Tang Dynasties, took the arch bridge structure erected on the Luo River as the prototype, and replaced the concrete imitation of the traditional style with the natural presentation of modern construction technology, so as to realize the dialogue between ancient and modern civilizations.
▼西面的拱形结构序列,arched sequence on the west
▼主入口空间
main entrance
结构的对偶运用,在平面组织上采用横向与纵向交织的拱形剪力墙形成有效的双向抗震结构体系,在剖面组织上上部屋面采用预应力混凝土悬垂板+端部混凝土“唐瓦当”与下部基座的拱形剪力墙共同组成闭合的剪力墙传力体系。平面对偶的结构特征通过大模板的清水混凝土浇筑形成清晰的室内空间架构,而剖面对偶的结构关系则通过陶瓷和青砖的材料组合赋予特定的历史记忆和文化内涵。
Dual application of structure: in the plane organization, the arch shear wall with transverse and longitudinal interweaving is adopted to form an effective two-way seismic structure system. In the section organization, the upper roof adopts prestressed concrete suspension plate & end concrete “Tang Dynasty tile” and the arched shear wall of the lower base to form a closed shear wall force transmission system. The structural features of plane duality form a clear indoor space structure through the pouring of fair faced concrete with large formwork, while the structural relationship of section duality endows specific historical memory and cultural connotation through the combination of ceramic and blue brick materials.
▼西立面结构单元
structural unit o the west facade
展陈空间的布局突破传统博物馆的封闭展陈模式,除了对温湿度影响敏感的展品之外,大部分展厅采取开放格局,与公共空间和公园景观融为一体。功能组织上特别强化南面向洛河开放的公共会议区,以及北面向大运河公园开放的文创展示和教育体验区,使博物馆成为名副其实的城市客厅。
The layout of exhibition space breaks through the closed exhibition mode of traditional museums. Except for the exhibits sensitive to the influence of temperature and humidity, most of the exhibition halls are open and integrated with public space and park landscape. In terms of functional organization, the design specially strengthens the public conference area open to the Luo River in the South and the cultural and creative exhibition and education experience area open to the Grand Canal Park in the north, making the museum a veritable city living room.
▼主入口序厅
lobby behind the main entrance
▼大厅望向西面公园景观,view to the park on the west from the lobby
▼指向公园的南北通透空间,transparent space facing the park
▼大厅与各个方向的空间渗透,lobby open to every direction
▼大厅中的悬挂坡道,suspended ramp in the lobby
▼悬挂环形坡道,suspended ramp
▼从三层室外露台远眺,overlook the surroundings from the outdoor terrace on the third floor
建筑主材的选用强调在地性的原则,即“洛阳造”。室内外大量采用改良后的洛阳三彩陶瓷挂板饰面,较好地缓解了清水混凝土建筑易给人带来的疏离感以及内部空间声学方面的缺陷,其中的吊顶《云帆》由126986个三彩陶瓷单元组成了迄今世界最大的陶瓷吊顶艺术作品。
The selection of main building materials emphasizes the principle of locality, i.e. “made in Luoyang”. A large number of indoor and outdoor uses of the improved Luoyang three color ceramic cladding, which better alleviates the alienation caused by the fair faced concrete buildings and the defects in the internal space acoustics. Among them, the ceiling “Yunfan” is the world’s largest ceramic ceiling art work composed of 126986 three color ceramic units.
▼螺旋楼梯曲面与顶棚
spiral staircase and the ceiling
▼三彩陶瓷覆盖的顶棚,ceiling covered by three color ceramic cladding
▼悬垂结构与秩序,cable and sequence
▼材料与明暗,materials and light shadows
我们在设计过程中与洛阳当地的工艺美术家郭爱和、高水旺反复讨论试样,把传统手工陶艺与现代设计、加工技艺相结合,助推洛阳传统陶瓷产业的创新发展。
During the design process, we repeatedly discussed the samples with local craft artists in Luoyang, and combined traditional ceramic crafts with modern design and processing techniques to promote the innovative development of Luoyang traditional ceramic industry.
▼夜晚鸟瞰,aerial view in the night
▼通透的建筑与公园景观融合,transparent building integrated with the landscape of the park
▼水面倒影,reflections on the water
▼施工现场,construction site
▼分解轴测图,exploded axonometric
▼总平面图,site plan
▼负一层平面图,B1 floor plan
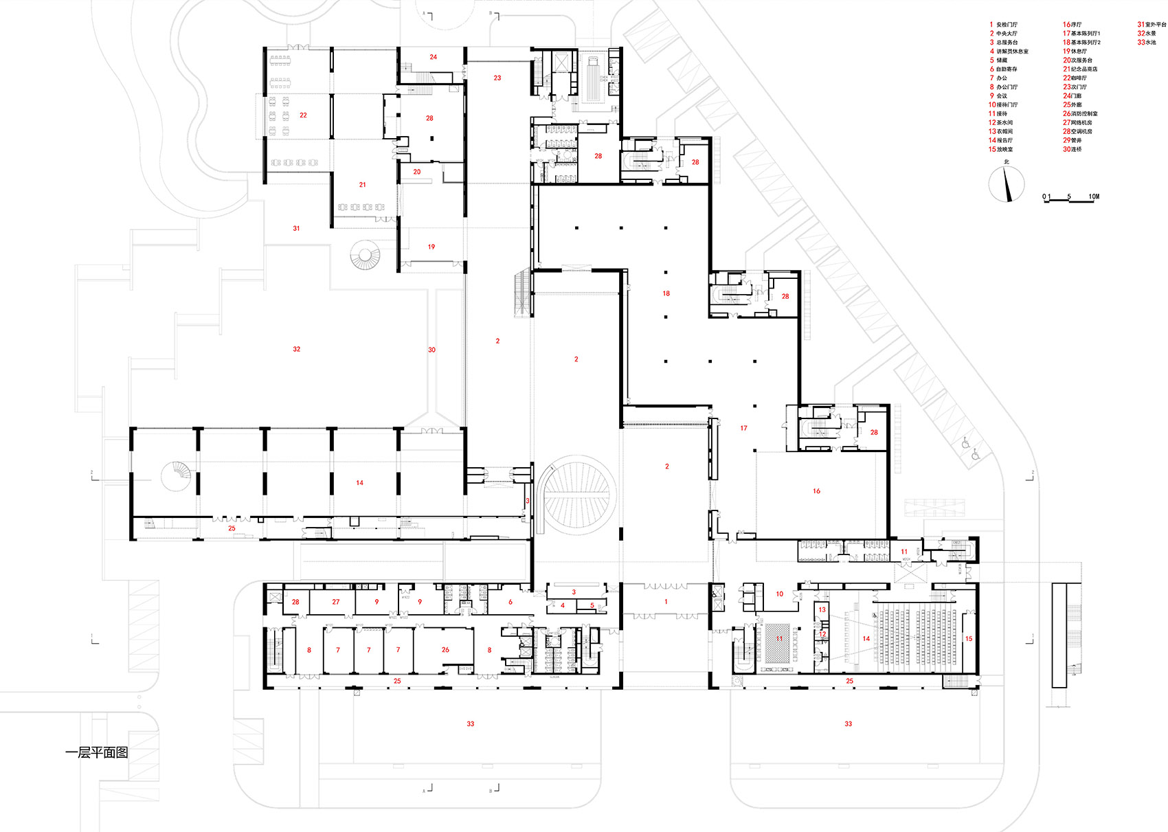
▼一层平面图,first floor plan
▼夹层平面图,mezzanine plan
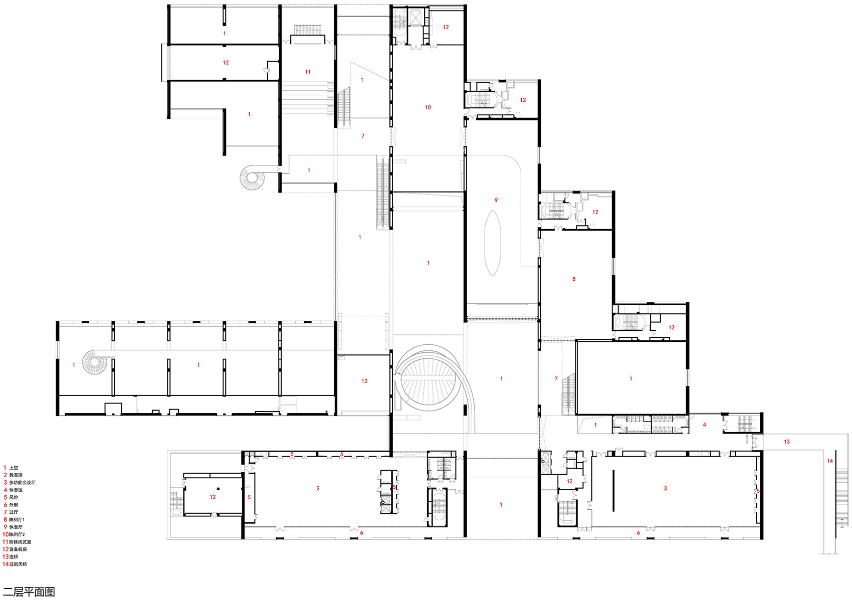
▼二层平面图,second floor plan
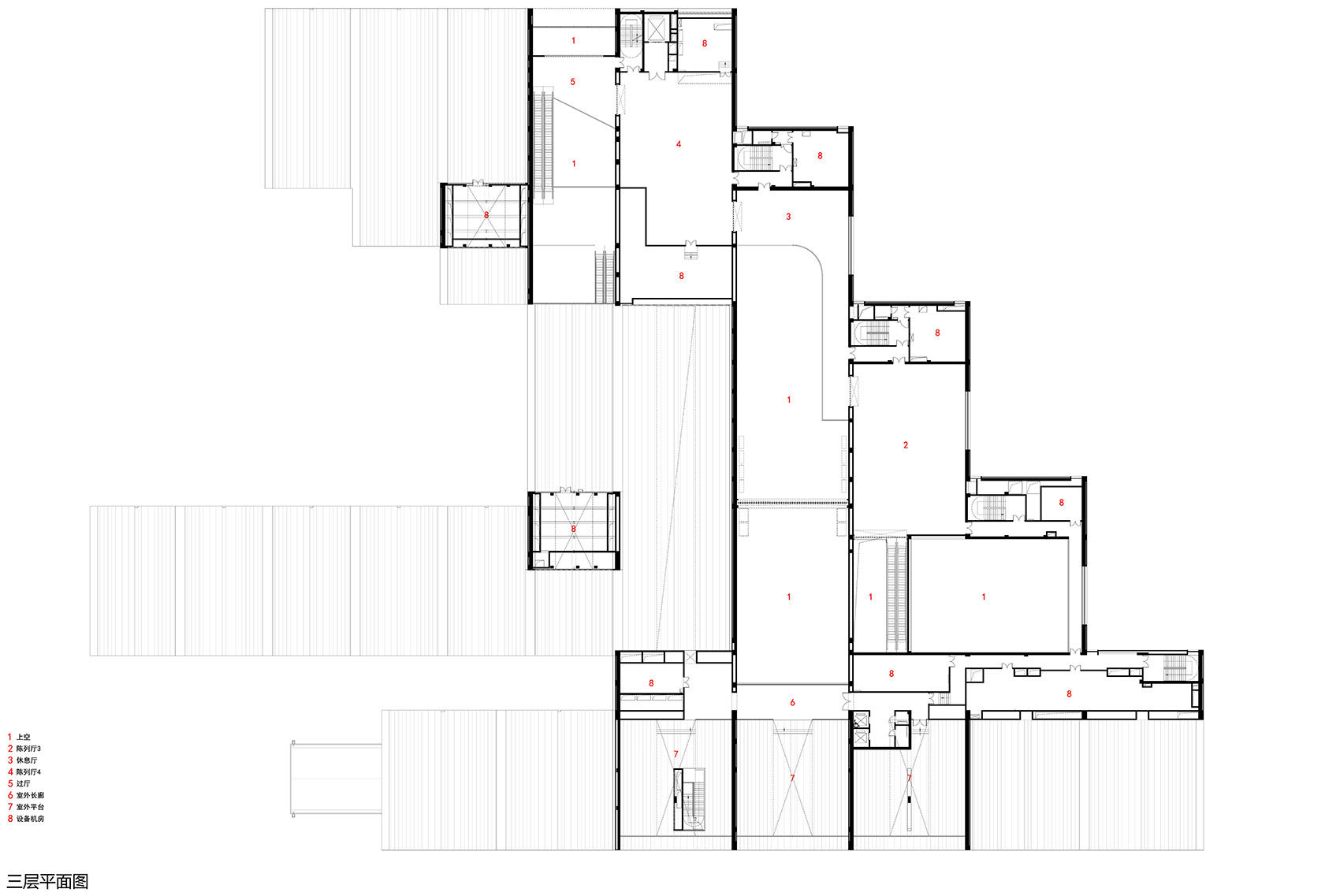
▼三层平面图,third floor plan
▼剖面图,sections
项目名称:隋唐大运河文化博物馆
项目地点:河南省洛阳市
项目业主:洛阳市文物局
设计单位:同济大学建筑设计研究院(集团)有限公司若本建筑工作室
主创建筑师:李立
设计团队:高山,王文胜,肖蕴峰,周峻,胡海宁,叶雯,郝竞,李飒,申银珠,李霁原,张溯之,黎彦希,孙嘉明
结构设计:张准,张锦骁,马卫强,高文虹,高戈
暖通设计:曾刚,姚赛,徐桓,周鹏,祁栋盛
给排水设计:李伟,路璐,冯玮,黄倍蓉
电气设计:王坚,程青,程贵华,付明民,刘永强,陈佳璐,陈伟
三彩陶艺制作:郭爱和,郭家启(室内),高水旺(室外)
灯光设计:杨秀,卞晨,杜怡婷,陈幸如,蔡文静,李彬豪
幕墙设计:金颖,闫云斌,张亮,李根恒
驻场建筑师:李飒
驻场结构师:孔忆辰
展陈大纲:中国文化遗产研究院中国世界文化遗产中心
展陈设计:上海宽创国际文化科技股份有限公司
展陈施工:天禹文化集团
施工单位:河南三建建设集团有限公司
基地面积:31817㎡
建筑面积:32986.3㎡
设计时间:2018.10~2020.9
施工时间:2020.9~2022.5
摄影师:姚力,田方方
客服
消息
收藏
下载
最近







































