查看完整案例


收藏

下载
·
庭院视频
Courtyard video
设计,是遇见生活之美,得生活者得设计
Design is to meet the beauty of life, the design of life has to be designed
美是品味,是对生活的理解。
闽清县素有“瓷都”之称,最早发现的古陶片可追溯到商周时期。
闽清义窑是我省宋元时期规模最大的青白瓷产地,也是古代“海上丝绸之路”的重要历史见证。
本案多处运用当地资源优势在瓷砖和仿古砖等材料运用上为庭院增添文化色彩。
Beauty is taste and understanding of life. Minqing County is known as the “Ceramic Capital”, and the earliest discovered ancient pottery tablets can be traced back to the Shang and Zhou Dynasties. The Qiqing Yi Kiln is the largest green and white porcelain producing area in the Song and Yuan Dynasties in our province, and it is also an important historical witness of the ancient “Maritime Silk Road”. In this case, many local resources are used to add cultural color to the courtyard in the use of materials such as ceramic tiles and antique bricks.
安腾忠雄曾言:
“在庭院中,自然每天都展现一个不同的方面。
庭院是在住屋中展开的生活核心,它引介着诸如光、风和雨这些自然现象,而他们在城市中正在被人们所忘却。
”设计师蓝立伟将当地地理环境为基底,从别墅的庭院环境,至室内空间设计,融入自然又充盈着生活品质。
Anton Tadao said: "In the courtyard, nature shows a different aspect every day. The courtyard is the core of life in the housing, it introduces natural phenomena such as light, wind and rain, and they are being People forget it.” Designer Lan Liwei takes the local geographical environment as the base, from the courtyard environment of the villa to the design of the interior space, integrating nature and filling the quality of life.
该别墅依山傍水,风景秀丽,踞山之颠可一览闽清县城全貌。
有景如此,足以让身心融合于自然中,游走于文化间,远离喧嚣,享受心灵的自由。
The villa is surrounded by mountains and waters, and the scenery is beautiful. This is enough to allow the body and mind to merge into nature, to swim between cultures, to stay away from the hustle and to enjoy the freedom of the soul.
客厅集休闲空间、书吧、水吧于一体,是一个新颖、能够体现美学生活的空间。
The living room is a combination of leisure space, book bar and water bar. It is a novel space that can reflect the aesthetic life.
在负一层功能区域中,多个空间的组合既独立隐蔽又相互交融,这样的设计理念来源于设计师对业主生活功能的理解,既需要大人和小孩之间的互动娱乐空间,又需要个人在家时独享安静生活的独立空间。
In the functional area of the negative layer, the combination of multiple spaces is independent and concealed. This design concept comes from the designer's understanding of the life function of the owner, which requires the interactive entertainment space between adults and children, and requires individuals. An independent space where you can enjoy a quiet life at home.
设计师对卧室空间处理上,适当留白,将其融入室内设计当中,不仅拓宽了空间的层次布局,更强调生活品质。
不刻意追求过分的奢华,营造现代时尚。
The designer's treatment of the bedroom space, appropriate white space, into the interior design, not only broaden the spatial layout, but also emphasize the quality of life. Do not deliberately pursue excessive luxury and create modern fashion.
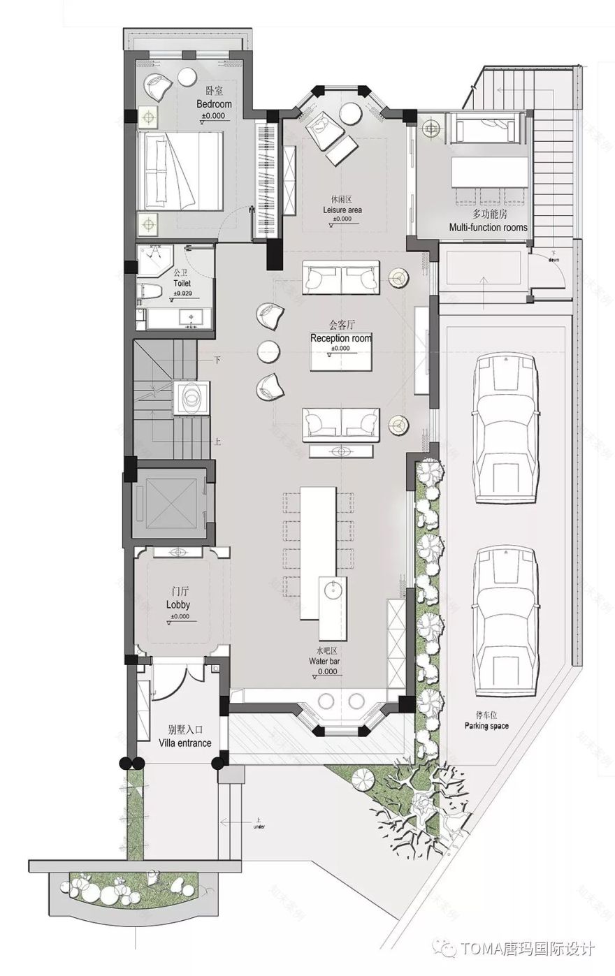
平面图 / Floor plan
项目名称 | 万旭·御园
Project Name | Wan Xu Royal Garden
项目地点 | 福建·福州·闽清
Project Location | Fuzhou·Fuqing, Fujian
室内设计 丨蓝立伟事务所
Interior design 丨 Lan Liwei Office
设计总监 | 蓝立伟
Design Director | Lan Liwei
设计团队 | 游希凌 万楠
Design Team | You Xi Ling Wan Nan
图像表现丨蓝鹏效果图团队
Image performance 丨 Lan Peng rendering team
商务经理丨郑琳琳
Business manager丨Zheng Linlin
设计样本 | 别墅
Design sample | Villa
项目面积 | 800㎡
Project area | 800m2
设计师 / Designer
--END--
客服
消息
收藏
下载
最近

























