查看完整案例

收藏

下载
由白菜设计的Fatface coffee快闪店位于沈阳WINDOW画廊空间内,是为期一个月的快闪店。
Fatface是沈阳本土的一家小众咖啡店,品牌的价值观中蕴藏重视咖啡品质、概念以及积极叛逆的态度。设计将这些价值观融入空间和品牌中,灵感来源于对地域和咖啡文化的理解。
沈阳,一座啤酒文化的城市,从大街小巷的氛围到人的性格,啤酒文化在城市与文化肌理中的角色耐人寻味,咖啡文化又该以什么样的角色与之对话?如何啤酒文化,又如何咖啡文化?本次快闪店探讨了二者的存在与关系,用装置的手段,直接的意符来表现文化的对冲。
考虑到快闪店短周期所对应的成本控制与空间张力,我们选择了模块化的啤酒箱套作为所有家具的构成。通过啤酒箱套独特的结构,与定制板材的结合,实现吧台、座椅、周边展示、水电等不同的可能性。
我们用一张由300个箱套组成的长吧台来定义空间内的发生,构成最直接的空间交互体验。通过玻璃台面的通透度,实现箱套元素完整的体块逻辑。设计颠覆了传统布局逻辑,将咖啡师与客人的位置对调,看似取消了客人之间面对面交流的空间,实则将视野引向窗外。所有座位面对窗景,强化空间的方向性,凸显画廊空间本身的特质。
最终空间呈现是包容的,也是准确的,使人在一个轻松的氛围内探讨一个开放的命题。
项目轴测图
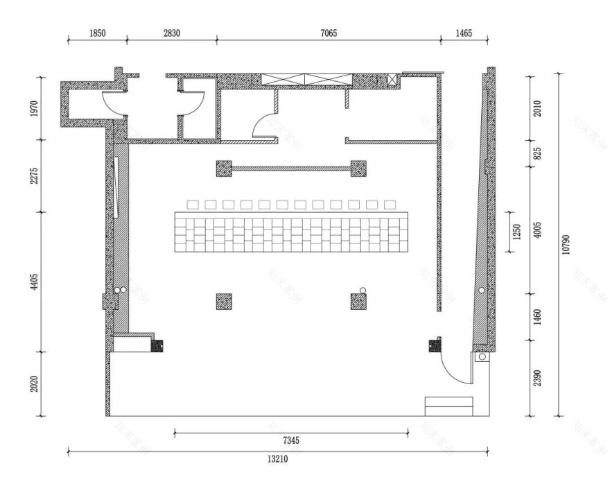
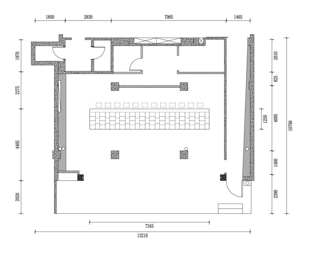
项目平面图
项目信息
空间名称:Fatface 咖啡快闪店
委托方:Fatface coffee
设计方:白菜设计
空间摄影:图派视觉
客服
消息
收藏
下载
最近



















