查看完整案例


收藏

下载
屋主需求
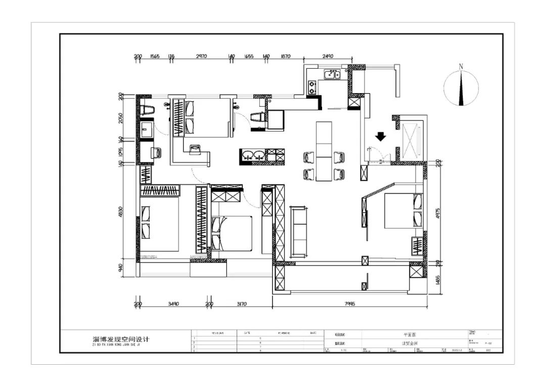
屋主需求三室改四室,屋主有三个孩子(两个男孩一个女孩)要满足日常居住/学习/活动的空间,另外还需要有父母独立的房间,及足够多的储物空间,供 6 口人同时就餐的餐桌等。
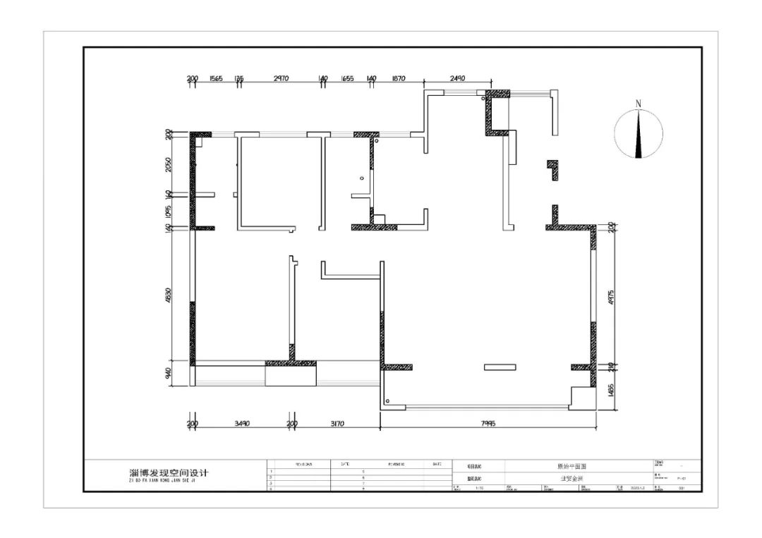
原始结构平面图
改造后平面图
项目简介
『项目坐标』 | Location:山东淄博
『项目名称』 | Project:世茂
『项目面积』 | Square:163㎡
『全案设计』 | Studio:发现设计
『设计时间』 | Time:2022.10
荣誉奖项
Adwards
2022JAPANIDPAAWARD 私宅类专业组 唯一铂金奖【沐光】
2022 美国 MUSE 设计奖办公空间专业组金奖【田缘舞沙】
2022JAPANIDPA AWARD 专业组国际先锋大奖【田缘舞沙】
2022 美国国际设计大奖 IDA 荣誉大奖【田缘舞沙】
2022IDA 国际设计铜奖【自定义】
2022IAI 国际设计铜奖【田缘舞沙】
2022 北美 PI 设计大奖商业空间优秀奖【田缘舞沙】
2022 艾特国际空间设计大奖办公空间 TOP10 金奖【田缘舞沙】
2022 年中国住宅效果大赛优秀奖【鹤伴豪庭】
2022 年红棉奖最美现代空间设计奖【自定义】
2022 年中意国际设计金指奖优胜奖【沐光】
2022 年中意国际设计金指奖优胜奖【田缘舞沙】
2022 年她设计优秀奖【田缘舞沙】
2022 年可持续发展优胜奖【沐光】
2022 年家装中国设计百强品牌
2022 年中国 40under40 山东设计杰出青年
2022 芒果奖 TOP100【自定义】私宅类办公空间类【田缘舞沙】
发现设计
专注于效果图一比一全案落地
高端全案空间设计
FaXianspacedesign is full of humor in life
The original design emphasizing natural and clear represents the development direction of the future space
Our design stems from the passion for life
Vitality, simplicity, Asia
In our series
It reveals a strong regional color, through the complete concept of interior architecture
Use materials to carry emotions, and use light and shadow to record time
Born in Asia, from the East
With the most sincere humanistic spirit, telling the story of space
T :13256797927
D:山东淄博张店区万通中心 80-9 号发现设计
淄博发现空间设计有限公司
- End -
THANKS FOR THE SUPPORT
copyright 2023FAXIAN SPACE DESIGNALL Rights Reserved.
客服
消息
收藏
下载
最近




























