查看完整案例


收藏

下载
YOUR HOME ,YOUR STORY
概况
改造后亮点
// 调整冰箱位置,让厨房
变宽
敞
!
将原本预留给冰箱的位置拆掉,改到过道区域,这样厨房的面积就得到拓宽,有了个完整的U型操作台。
// 客餐厅合为一体,解决多种烦恼!
原本房屋没有餐厅区域,将墙面打通拆除的空间放餐桌,这样不仅增加了餐厅区域,也将光线引入书房,于是将餐厅与客厅合为一体,并将书房与餐厅融为一体,剩下区域放置储物柜。
// 半开放式主卧,空间通透才自在!
主卧与客餐厅之间仅用推拉门隔开,半开放式的设计让空间动线更舒适,将南面的光引入到客厅同时也能保护主卧的私密性。
项目简介
『
项目坐标
』
| Location:山东淄博
·
龙凤苑B区
『
项目面积
』
| Square Meters:私宅
·
100㎡
『
设计施工
』
| Studio:发现空间
设计
『材质介绍』 | Material:北美黑胡桃
·北美红
橡木
『
设计时间
』
| Time:2019.08
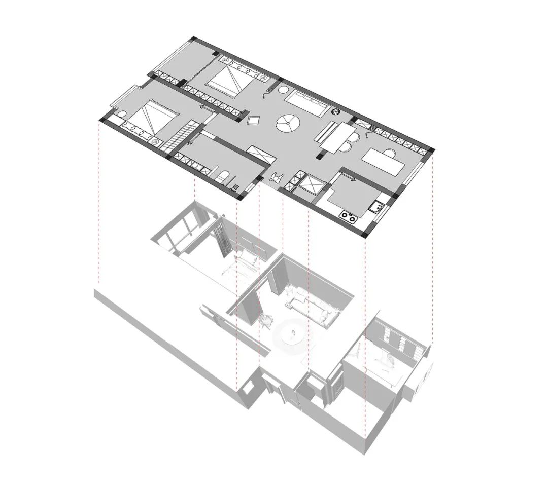
房屋原始结构
房屋改造后
客厅实景
卧室
效果图vs 实景图
发现设计专注于效果图一比一全案落地的高端空间设计公司
我 们 最 好 的 作 品 是 在 明
天 ......
- End -
THANKS FOR THE SUPPORT
往 期 作 品 回 顾
客服
消息
收藏
下载
最近



































