查看完整案例


收藏

下载
项目地址/中国·成都
全案设计/吴晨·何雨晴
参与设计/陆 露
项目面积/室内 200㎡ + 花园 40㎡
设计时间/2021 年 09 月
温暖的力量,以柔克刚。一抹清新的绿色推波助澜,赋予张弛有度的轮廓。出其不意的材质碰撞,不张扬的光芒。即便个性强势,骄傲,也试着用缓慢柔和的语气与这个世界对话。即便外面的世界再美,也能内观心声。进门的那一刻,所有的循环往复,随心所欲都拒之门外。
▬
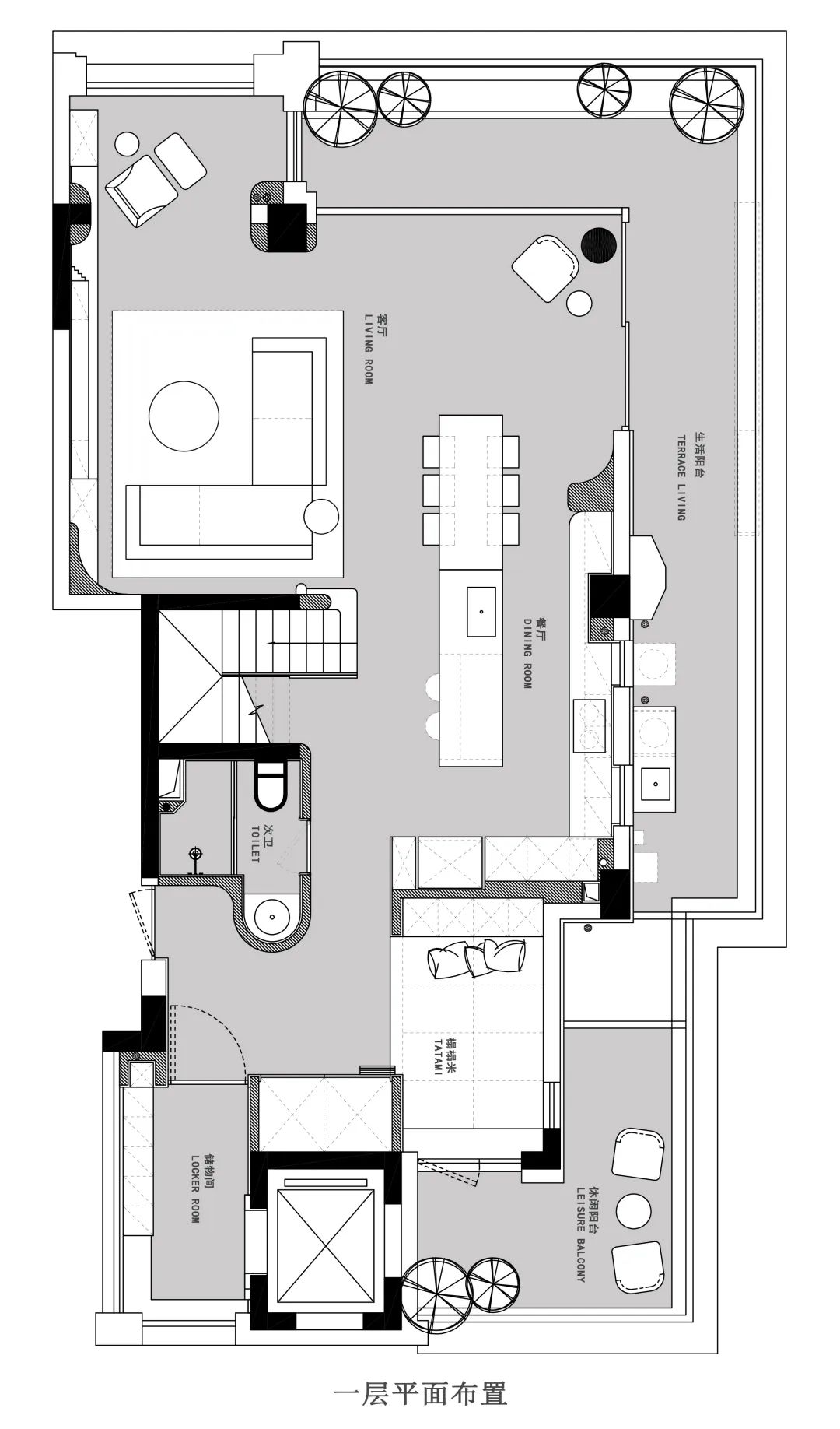
户型分析
原始结构和
平面布置
左右滑动查看户型分析
本案图片需横屏观看
▬
▬
▬
▬
▬
▬
▬
▬
施工现场
住宅设计 / 民宿 / 软装 / 商业 办公
▲/
喜欢可留言并转发朋友圈
/
/
/
#往期推荐#
点击查看往期作品
▶
:
95 后设计师的家
点击查看往期作品▶:留之沐楚
点击查看往期作品▶:凡塔式
点击查看往期作品
▶:MC HOUSE
点击查看往期作品▶:影像中的表白
点击查看往期作品
▶:框景
点击查看往期作品▶:阅宅
客服
消息
收藏
下载
最近











































