查看完整案例


收藏

下载
你好!我是勾勾手设计网,是你
!为懂得我们的客户提供贴心服务!好设计+好产品≥好生活
保证
!
梦 茹 说
Meng Ru said
▼场地平面图,site plan © IROJE Architects & Planners
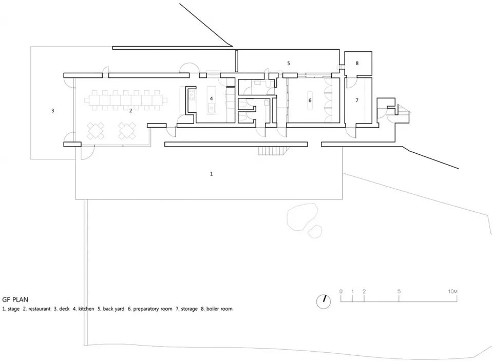
▼首层平面图,ground floor plan © IROJE Architects & Planners
2016年竣工
建筑基底面积:137㎡
总建筑面积:128㎡
▼项目概览,general view © IROJE Architects & Planners
▼内部餐馆视野,view from the restaurant © IROJE Architects & Planners
▼玄关,foyer © IROJE Architects & Planners
▼从水池望向室内,view from the pond © IROJE Architects & Planners
▼水池景观,water scape © IROJE Architects & Planners
▼池塘对面的斜坡设有长凳,there is a long bench on the slope opposite the pond © IROJE Architects & Planners
▼一个以水池为背景的舞台,the pond as a background for a stage © IROJE Architects & Planners
▼冬季鸟瞰,aerial view in winter © IROJE Architects & Planners
这是一个韩国的项目,当我看到此项目后,我觉得我可以在现有的文旅项目中找一个地块做一个这样的餐饮!建议今天加我问我有1000方地块的广东梅州朋友可以参考此项目投资一个!
This is a Korean project, when I saw this project, I think I can in the existing WENLV project to find a plot to do such a restaurant! I suggest today to add I ask I have 1000 square block of Meizhou Guangdong friends can refer to this project to invest in a!
勾勾手设计网|业务布局
A)卖|设计服务:
01-勾勾手文旅规划设计(专业规划策划设计运营团队)
02-潘小君自建房(提供一站式入住的建筑团队)
03-梦茹餐饮设计工作室(餐饮加盟连锁商业赋能)
04-
GGH移动房设计机构(引领全球个性移动房产品体系设计)
团队揸FIT人介绍
B)卖|产品(厂家直销):
01-佛山家具
02-移动房、模块房等
03-佛山制造品牌小家电
01-民旅项目小产权房
02-网红餐饮小店
03-乡镇农场小产权
往期专辑
Past Topics Click
了解更多,点击以下专辑
▽
01-集装项目
专辑
02-梦茹制造
服务咨询联系人↓↓↓
关于我们
→→
▽
▽
END
客服
消息
收藏
下载
最近
























