查看完整案例


收藏

下载
GGH设计机构
预计占用你60秒便可看完文章。。。。。
The GGH design agency estimates it will take you 60 seconds to read the article. . . . .
项目故事
Project Story
Arti 设计工作室与 laurencia 工作室合作,翻修了位于南雅加达 senopati 的亚洲融合餐厅 lei lo。在这个项目中,建筑师使用透明设计重新思考客户的旅程。
Arti Design Studio, in collaboration with Studio Laurencia, has renovated Lei Lo, an Asian fusion restaurant located in Senopati, South Jakarta. In this project, the architects rethink customer journey using transparency design.
长长的入口通道向客户介绍了亚洲融合的概念,从一些元素开始: 木材和黄铜挂毯。在这里,顾客可以一窥雷洛的内心世界。作为一个过渡,这个区域充当了等候区(有舒适的木制座椅和摆放咖啡的站立桌子)和避难所,避开了雅加达的天气,无论是炎热的阳光还是暴雨。接触大自然,长草生长在一排花盆里,保护建筑免受偶尔的雨季洪水。从餐厅到停车场,这些植物也充当了视野缓冲器。
The long entrance pathway introduces the customers to Asian fusion concept, starting with a few of its elements: wood and brass tapestry. Here, the customer get a glimpse and a feel to the world inside Lei Lo. nAside from serving as a transition, the area acts as a waiting area (with wooden seats for comfort and standing tables to place coffee) and a shelter from Jakarta’s weathers, be it scorching sun or heavy rainfall. A touch of nature, long grass grows inside a row of planter pots which protects the building from the occasional rainy season floods. The plants also acts as view buffer from dining to parking area.
一提到亚洲这个词,人们通常会想到装饰品,比如红灯笼。Arti 设计工作室没有深入研究,而是深入挖掘,深入研究具体的材料。深色木头和石头的结合,让整个餐厅感觉很温馨,不仅看起来像亚洲人。这给我留下了更深的印象。
When it comes to the word Asian, generally, the masses think of ornaments, such as red lanterns. Instead of going with it, Arti Design Studio dig deeper to the roots, researching down to the specific materials. The combination of dark wood and stone makes the entire restaurant feels homy, not only looks Asian. This leaves a deeper impression.
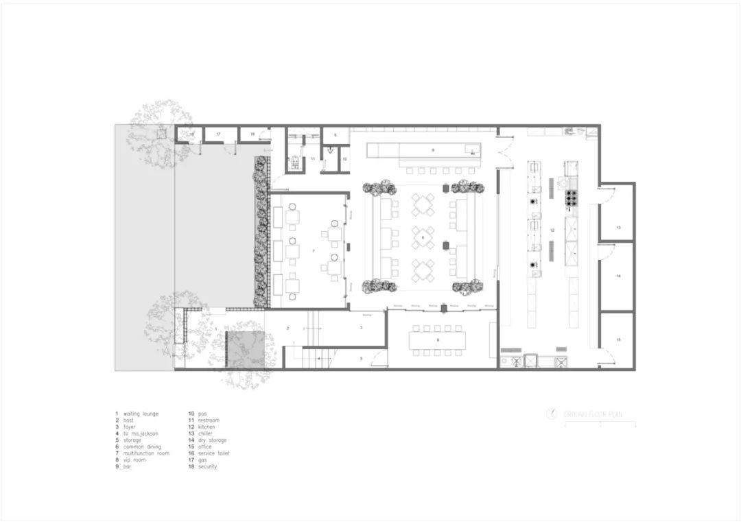
02+项目图纸Project drawing
观察顾客的行为,当顾客进入房间时,他们会选择最好的座位ーー视野最好的座位。然而,现有的地点被认为是不受欢迎的,因为它面对停车场和晒在雅加达的太阳热。由于这个原因,建筑师设计缓冲区(黄铜挂毯结构和种植箱) ,因此产生了有吸引力的视图和独特的影子游戏。从商业的角度来看,这种设计提高了生产效率。
Observing customer behavior, upon entering the room, the customers would choose the best seat—the one with the best view. However, the existing spot were deemed undesirable as it faces parking area and basks in Jakarta sun heat. For that reason, the architects design buffers (brass tapestry structure and planter box) hence resulted in attractive view and unique shadow play. Seeing from business point of view, the design increases capacity efficiency.
2021年“勾勾手设计站”业务布局:
0-分享
01-个人住宅开发
以潘小君自建房核心IP对外进行项目设计及施工服务,业务范围主要在广佛一带。
02-餐饮品牌设计及供应链建立:
以梦茹餐饮工作室为核心IP,专
注于新餐饮品牌的再造。
03-文旅版块中的网红民宿及移动民宿产品设计:
专注于网红民宿设计及运营、移动民宿产品开发。
勾勾手自媒体矩阵列→→→→→→
团队相应版块揸FIT人介绍
自建房揸FIT人(主业)
自建房施工图制作服务
民宿相关服务咨询→→→→
勾勾手,是为解决设计者及中小型工作室、设计公司、民宿宿主对设计、建材、灯具、家具、民宿、施工等产品的落地方案问题的最终解决公司。集设计、产品开发、品牌运营、施工等一体化。
往期话题
Past Topics Click
了解更多,点击以下专辑
▽
01-红砖屋专辑
02-集装项目
专辑
03-梦茹餐饮工作室专辑
04+渡假村&民宿参考
▽
整理中
END
客服
消息
收藏
下载
最近


































