查看完整案例


收藏

下载
宁波阪急健身房
不管身材还是空间,我都要有型
不
前台|Reception
曹操在《观沧海》中叹曰:“
星汉灿烂,若出其里。
”
银河中的灿烂群星,像从大海的怀抱中涌现出来的。
不锈钢冲压板与灯光完美结合制作的前台背景,宛如星辰大海,用大小不一的三角形组合排列,星星点点,透出璀璨星光。
而健身房,拥有着大海般的包容力,也有着大海般的挑战性,它磨炼你,更雕塑你,让你从这里出去就成为茫茫人海
中最亮最靓的那一颗!
工装的前台就是门面担当,英文字
“TING S POWER HOUSE”与logo的排版,时尚闪亮,透着引人入胜的魔力,似乎能相信,当迈进这一步,就能蜕变。So power!
“静”区
休息区|Rest area
从前台进入,随后来到“静”区——休息处。这里的设计干净简约,并不商务,而是透着如家一般的温馨感。在长沙发上可以休息小憩,在落地窗边,也可以作为业务员商务洽谈的区域。
卫生间|Toilet
过渡区
时光隧道|Time tunnel
“时光隧道”是链接“动、静”区的纽带。这里
漫天的条形灯光好似飞速滑过身边的流星雨,
营造一种“穿越时空”的视觉盛宴。
这样炫目的“时光隧道”设计,让即将迈进这里的健身者有了心里建设,好似通过这段时光的打造,我们将蜕变成有马甲线的时髦人士。
表达了我们对身体健康与形象管理的美好愿望,同时这个通道就像是通往成功的象征,更是刺激着我们的征服欲。
“动”区
器材区|Equipment area
阪急健身房致力于打造高端休闲与健身。那么健身区所采用的器材就得专业又齐全,可以让撸铁人士体会到器械带给他的力量与快感。
从美国全进口器材,专业师资教练,全方位塑造我们的形体,增加力量美!
器材的摆放,体现了“
运动与秩序
”的融洽感。
——
私教
区 ——
——有氧区 ——
拳击区|Boxing area
拳击,一项超酷的塑形有氧运动,追求速度与力量。
鲜红耀眼的拳击柱,就像火一样的热烈,带动着拳击手的情绪,让汗水也染上了一丝炽烈潇洒的味道。
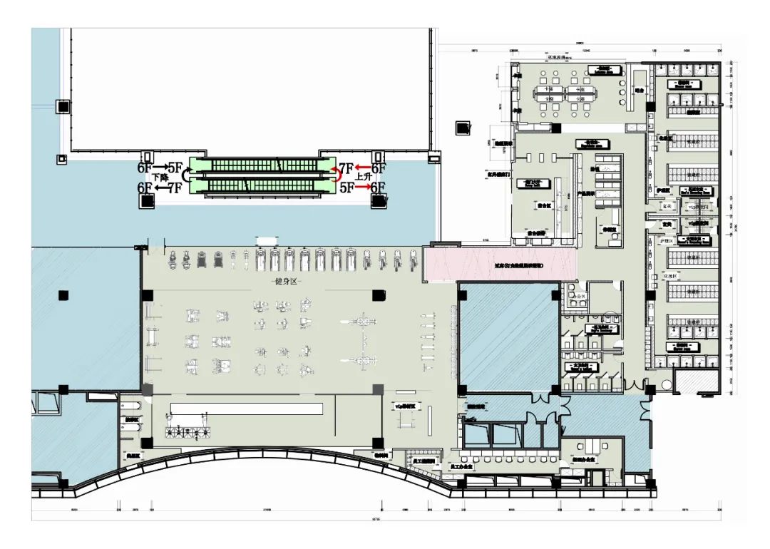
平面布置图
项目 | Project 宁波阪急六楼健身房
面积 | Areat 1200平方
设计 | Design BESTHOME | 百仕合空间设计
文案 | Copywriting GU小爷
唐鹏云
百仕合装饰设计 设计总监
百仕合装饰设计(Besthome Decoration Desgin)于2013年创立于宁波北仑。百仕合装饰设计作为一家私人定制全案设计装修公司,专为业主打造新颖的全屋定制设计方案,实现“不雷同不复制”的真正私人定制!风格迥异,空间实用,色彩多变,个性混搭,实现业主健康舒适的生活体验,同时更能让业主享受到高质量装修空间所带来的品位与价值。
获得过近30类全国设计大奖,2次荣登CCTV-2《交换空间》的设计单位。
百仕合装饰设计用文化让设计更有内涵,用制度让施工更加规范,用软饰让空间更具美感,用工艺让作品更赋灵魂。
经营范围:公寓、别墅、酒店、办公、会所、商业空间等。全国接单。
客服
消息
收藏
下载
最近


































