查看完整案例


收藏

下载
著名的日本建筑师隈研吾说:
“
建筑物不是物,而是人的容身之所,要让失去安全感的现代人在建筑物里感受到一种温情。
”
——
《建筑的声音》
人们在房子里感受到温暖、爱意和归属,称它为“家”。
家的本质,是居住和活动的场所,也是对美和美好生活的追求。
房屋主人是幸福的三口之家,房屋结构分为上中下三层,单层面积约
80m²
,功能分区鲜明而独立。
结合原始结构的特性,设计时对房屋的架构需重新梳理,以体现叠墅该有的气势。
延伸,是一楼设计的关键。
所谓
“
延伸
”
即是将不同功能空间穿插、联系、延展。
在空间划分上,将餐厅、客厅,空间最大化释放。卫生间,储物间,客房退居视线之外巧妙隐藏。
在材质选择上,设计者通过金属线条、大理石、木饰面、皮革等元素的综合应用,将整个公共空间融为一体,和谐贯通。
开放性的生活区,金属带来的奢华感,皮革带来的精致感,布艺带来的温馨感
……
无声地诉说着空间的高贵和奢华。
仿佛一个风度翩翩的绅士,大气磅礴又低调而雅致。
一日三餐四季,一厨一岛一人生。不得不说一个合理有趣的就餐空间,即是一个家庭最温情的交流空间。
设计师除了把控大局,巧妙的小心思被藏在细枝末节处。西厨区域规避原建筑缺陷,打造成精致的吧台空间。
借用有限的尺寸合理规划了存酒柜、水吧、早餐吧、餐具收纳等功能强大的西厨系统。即满足入户精致的视觉体验,又满足了日常生活的多功能需求。
收放自如的中厨与西厨区别又连贯,让整个公共空间得到了最大化释放。
业主喜欢
“
深色调
”
,空间不能压抑,视觉得开阔而大气。
对设计者来说。这样的空间设计是成功的。对居住者来说是体面的、更是好用的。
一楼客卧以及储藏室均隐藏于电视背景墙的两侧,客卧主要为长辈偶尔居住。
局部饮水置物空间的设置,恬淡的色调,柔和的光线,对长辈的关爱,在细节中尽现。
主卧延续一楼的格调,在色彩上却选用了浅蓝灰色作为主色调。搭配端庄典雅的港式家具,让人似乎置身于晨雾中,朦胧的美感似真若幻。整个空间带着仙气凛然的别致优雅,这是蓝灰色流露出的魅力,更是居住者气质的融合和体现。
男孩卧室继续沿用蓝色调,不同明度的蓝带给空间也是不同的氛围和感受。
海军蓝
+
玉米橙
+
花蕾红不同色调穿插点缀,配合童趣的装饰物件,在这些看似不经意的搭配中,营造了一个无忧无虑的孩童空间。
书房由北露台改造而成,通透的阳光顶面可通过电动窗帘实现封闭或开放的自由切换。
春日和煦,冬日暖阳,亦或黑夜漫天星辰,在这安静世界,卸下一天的疲惫,畅享美妙世界。
衣帽间以开放式、半封闭及全封闭,不同形态呈现。垂挂、叠放、箱包储藏
……
合理归类
,
整洁实用的同时体现空间品质。
结合业主的生活习惯,二楼空间共享了衣帽、卫浴和阅读空间。
卫生间摒弃了原结构门厅上方的暗卫,以及空间狭小的主卫
,
改为功能齐备的独立大卫生间。空间得到最大化合理利用。
拾级而上,俏丽绿植,芝兰之室,平和静谧。
2020
年与
“
家
”24
小时的长相厮守,让我们更多地关注和感知我们的居家空间。
三面临窗功能齐全的室内亲子空间,坐享自然的露台空间。无疑给整个家庭带来了更多生机与活力。
春夏秋冬,阳光雨露,扶摸阳光,瞭望星辰
……
一家人,一颗心,互相依偎,拥抱幸福。
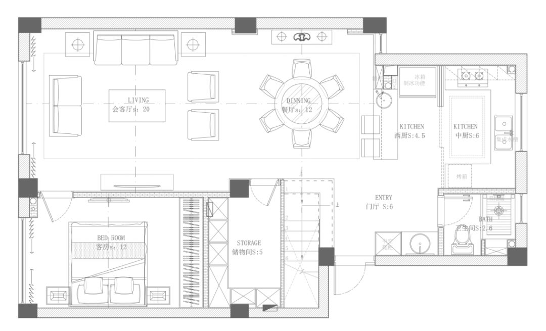
△
一层平面图
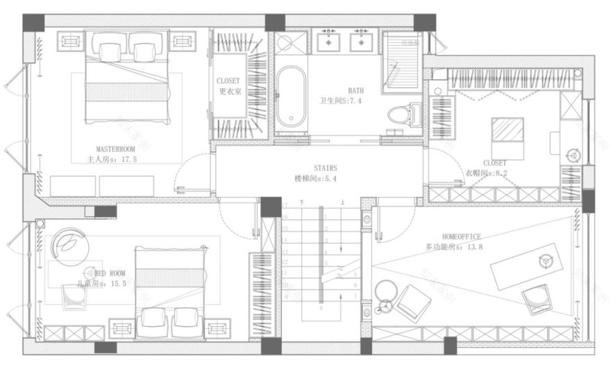
△
二层平面图
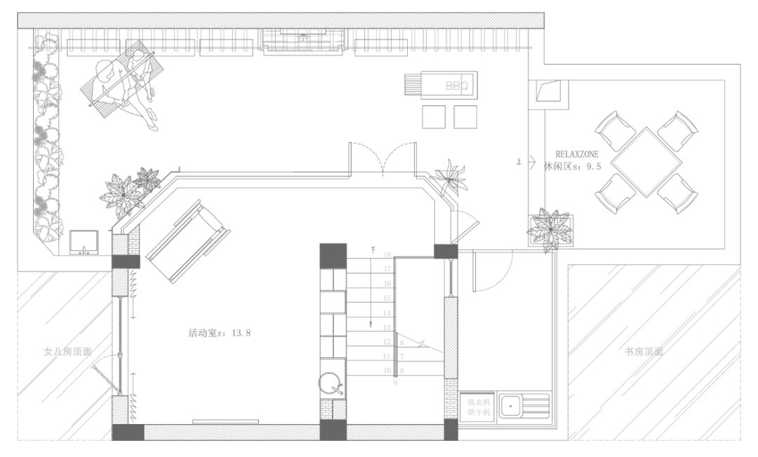
△
三层平面图
设计师
Design team |
彭姣
设计预约
Design tel | 400-6055-115
施工单位
Builder |
观岚国际装饰
设计风格
Design style |
港式轻奢
项目面积
Project Area | 220
㎡
项目地址
Project Location |
浙江宁波
项目类型
Project type |
住宅
项目摄影
Photo |
朴言
彭
姣
宁波市室内设计师协会会员
APDF
亚太设计师联盟会员
宁波高端设计师俱乐部会员
中国住宅设计精英榜全国
108
匠
宁波十大青年设计师
全国建筑装饰行业优秀设计师
设计理念:用心生活,感悟生活;用心设计,传递美学。
主要案例:荣安香园别墅、碧湖国际别墅、保利印江南,万科堂院叠墅、万科甲第
17
叠墅、维拉小镇别墅、合生国际城别墅、
洪都花园别墅、中海国际社区别墅、东方一品平墅、维科上院平墅、银泰城平墅、江山万里、青林湾、雍城世家、维科拉菲庄园、
ART
蓝海等
客服
消息
收藏
下载
最近



























