查看完整案例


收藏

下载
位于福冈的高须学设计工作室(Takasu Gaku Design and Associates) 在福冈西中洲设计了一家名为“西中洲泥川武士”的餐厅。
当我们问及
TAKASU GAKU
的设计理念时,他回答说,“我们设计这家餐厅的理念是“意日融合”。我十年前去过武士主厨的第一家意大利餐厅MELMOSO da dorokawa,我注意到他开始在菜肴和摆盘方式上融入日本元素。我是从他的烹饪中获得了灵感,想要将这种融合反映在设计中。”
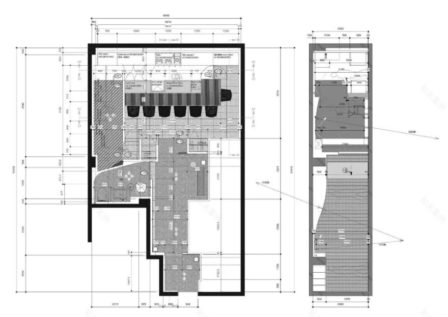
店主选定的场地有一些限制。但高须解决了这些挑战,他设计了一个长走廊来提升顾客的期望,且像传统茶室一样设计了独特的低入口。
当我们问及面对主厨的开放式料理台概念时,他说“从功能上来讲,他们的需求是一个可以让主厨独立完成全套意大利菜的布局,所以我们设计了一个可以清楚看到主厨双手的
7
座料理台。
我们选择了一个经典的料理台布局,主厨站在滑动门前面,所有的目光都会集中在他身上。
我们决定将台面高度设定为用餐台的上方
5
厘米,这样顾客就可以看到主厨的料理技巧。
另外,主厨的精心烹饪选用的是传统的炉灶和烤箱,而不是新兴的烹饪设备,所以设计团队遵循他的意愿,创造了这样简单漂亮的厨房。
”
当我们问起料理台的细节,他回答说“在这家餐厅,我们创造了一种紧张感,可以在顾客到达座位区之前就调动起他们的情绪。但如果我们把所有东西都设计得非常锐利,顾客就不容易放松,所以我们想把用餐区设计得舒适一些。我们将柜台设计成边缘向上逐渐变窄的样式,这是一种触觉和视觉都能感到愉悦的样式。所以我们把柜台设计得边缘向上逐渐变窄,手感柔软,外观温和。我们还把洗手间的部分墙壁设计成曲线,用以缓解紧张感。我们尝试通过控制细节来创造这种微妙的感官差异。”
在材料方面,他们使用了松露山毛榉,一种由松露真菌造成的具有独特黑色纹理的木材,作为入口,精致的意大利胡桃木作为料理台。一方面,天花板上覆盖着来自福井(主厨的家乡)的手工制作的日本越前和纸,这样顾客就可以同时享受到意大利和日本的材质纹理。另外
,TAKASU GAKU还设计了站位照明和长凳,这样,餐厅的每一个触点都能展现设计师的创意。
建筑 | 室内 | 设计 | 艺术
欢迎大家将内外之间设为"
星标
第一时间获取精彩内容
客服
消息
收藏
下载
最近


























