查看完整案例


收藏

下载
-Design Director 硬装设计 -程沁、邹惠淋
-Decoration 软装设计 -周倩
-Location 项目地址-重庆·御景湖山·璟芸
-Area 项目面积-290m²
-Design style 设计风格-自然、极简
-Design team 设计团队-牟侠菲
方案构析
我们看到原始户型之后,发现:
1. -1 楼餐厅采光不足;
2. 1 楼父母房空间过于狭小;
3. 2 楼作为卧室空间面积不足。
After seeing the original house type, we found that:
1. The daylighting of the restaurant on the first floor is insufficient.
2. The parents’ room on the first floor is too narrow.
3. 2 floor as bedroom space is insufficient.
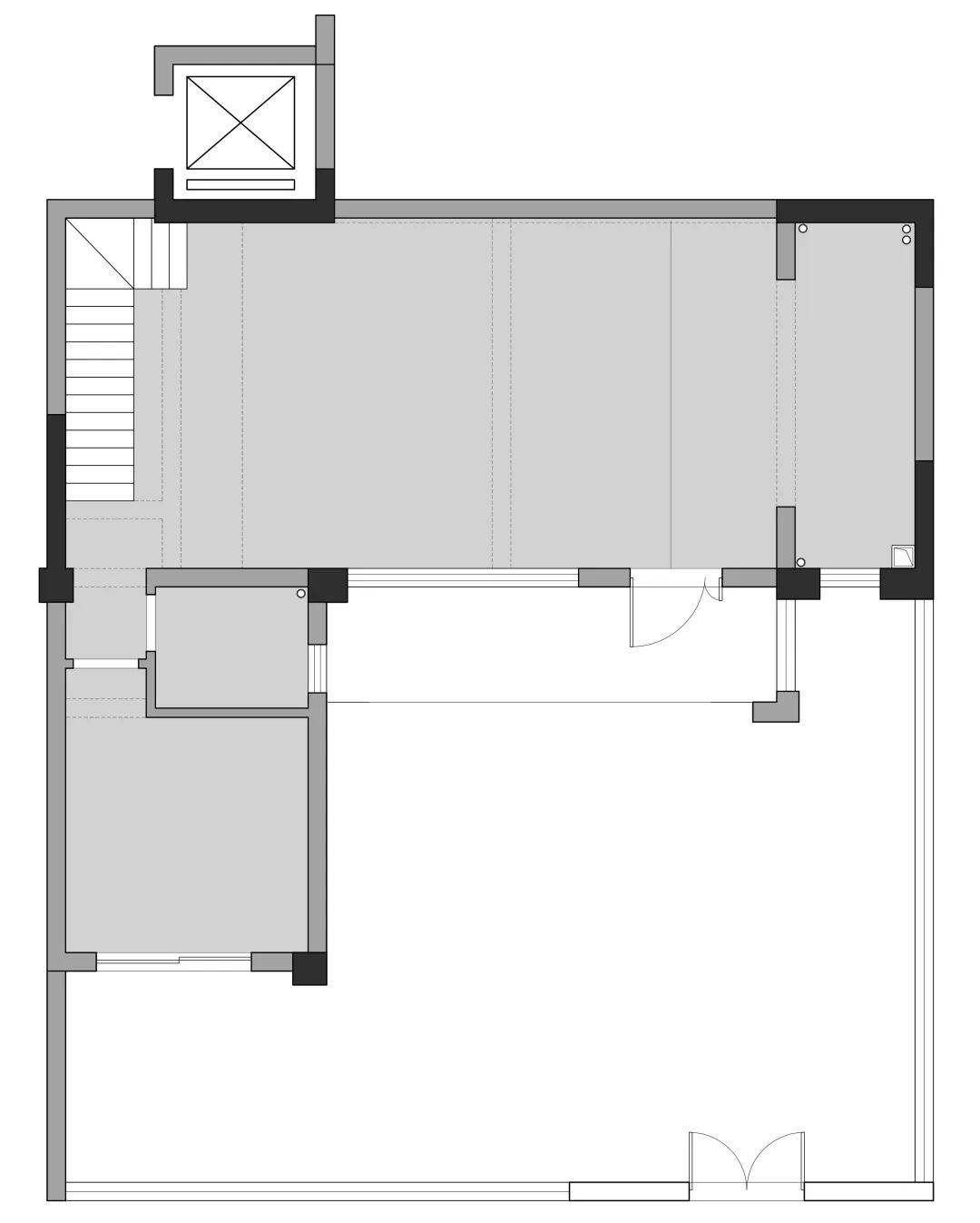
终稿平面图
1.在 1 楼开一个竖井,将光线引入
2.将父母房卫生间外移,加宽卧室空间
3.将 2 楼挑空部分现浇,整层楼做成 1 间套房 2 间卧室
After seeing the original house type, we found that:
1. Open a shaft on the first floor to introduce light
2. Move the bathroom of the parents’ room out and widen the bedroom space
3. The empty part of the second floor is cast in situ, and the whole floor is made into one suite and two bedrooms
*整体空间轴侧图
从花园步入室内就是 1 楼的客厅。室外阳光通透,屋内光影斑驳。极简风格的极致展现,让客厅空间给予人宁静的感受。
The outdoor sunlight is transparent. The light and shadow inside the house are mottled. The ultimate expression of minimalist style. Let the space give people a sense of tranquility.
客厅几乎到顶的木质书架,让空间看起来更加干净。Wooden bookshelves almost to the top of the living room Make the space look cleaner.
木质的温润素雅与曲线造型吊顶,在敞阔的空间内相映成趣。Wooden gentle and elegant,ceiling with curved shape,Set each other off in an open space。
设计师将餐厅、中西厨房融为一体,大尺度的空间功能布局形成通透的视觉体验,增加了空间之间的功能渗透和生活场景的互动。
Integrate the Chinese and Western kitchens. The large-scale spatial function layout forms a transparent visual experience. It increases the functional penetration between spaces and the interaction of life.
餐厅竖井承接 1 楼倾斜而下的光线,为置于负一楼的客餐厅点亮空间光感。
The restaurant shaft receives the light falling obliquely from the first floor and lights up the restaurant on the ground floor.
搭配绿植与木质元素的点缀,让整个空间弥漫着深沉内敛的高级质感。
With green plants and wood elements, let the whole space be filled with deep and introverted high-grade texture.
整个 2 楼则皆为休息区域。
主卧的色调不超过 3 个颜色。
任何角落没有一丝的多余和繁复。
加上大量的留白,让居住的人可以把更多的精力集中在生活当中。
The whole second floor is a rest area.
The hue of the master bedroom shall not exceed 3 colors.
There is no trace of redundancy and complexity in any corner.
Plus a lot of white space, so that the people living can focus more on life.
窗外人声嘈杂、灯火万家。
窗内素雅淡泊,宁静致远。
Outside the window, there was a lot of noise and lights.
Inside is simple, slow and steady wins the race.
设计师·说
程沁
空一筑造联合创始人
邹惠淋
空一筑造设计师
“本案小亮点”
1.客厅作为一个大家庭的聚会空间,空间的尺度扩大,通过窗户的改变不仅增加了采光,还让原本不够通透的客厅空间具有更好的呼吸感;
2.餐厅与厨房的所在的负一楼,有两个空间挑空与负二楼形成连接,增加采光和通风的同时,也使得空间之间更有互通性。
本案业主通过朋友介绍找到我们,虽然在此之前对我们不太了解,但是最终通过彼此不断沟通与我们达成共识。此案例作为一套婚房,将会见证每一位家庭成员成长,因此我们也会定当不负信任和期望。
#往期回顾
|自然奇旅,理想住宅
| 壹号院.居于自然,无囿潮流
| 无彩色的包容空间
|极简风营造自然真趣之家
获奖荣誉:
2022 金堂奖 中国大宅设计 TOP100
2022 1000 DESIGNERS PLAN 设计师
2022 上海国际设计周 匠心设计奖
2022 上海国际设计周 新锐设计奖
2022 10GNERS PLAN 设计师
2022 “NEXT DESIGN”未来场景设计奖
2021 营造家奖 年度设计 top500
2021 住小帮设计大赛 西南区 top10(大户型)
2021 百度馨居奖 年度最佳大户型设计奖全国 top50
2021 30 UNDER 30 中国(地区)设计年度新秀
2021 30 UNDER 30 中国(西南)设计年度新秀
2021 WYDF2021 年度大中华区 100 大杰出设计青年
2021 大金 14 届内装设计大赛 美宅公寓组银奖
2020 40 UNDER 40 中国(重庆)设计杰出青年
2020 金住奖 中国(重庆)十大居住空间设计师
2020 中国设计头条年鉴榜·城市榜 年度优秀设计项目
2019 这就是设计(中国)最佳居住空间奖
2019 40 UNDER 40 中国(重庆)设计杰出青年
2019 IDS 国际先锋榜(中国)最佳居住空间奖
—
客服
消息
收藏
下载
最近







































