查看完整案例


收藏

下载
看”空间魔术师“如何通过布局爆改,让老房逆袭精装住宅!
案例地址 | 上海.普陀
户型面积 | 145㎡
户型 | 四室两厅两卫
设计师 | 左勤
业主有话说:
业主希望家中以灰色调为色彩基调,未来有二胎计划,希望独立空间足够并且每个卧室都有自然采光。家要有质感和内涵。
原始户型图
户型优缺点:
原户型层高三米多,大气通透,但整个空间有很多横梁。最重要的是,业主对原户型空间布局完全不满意,希望全部重改。
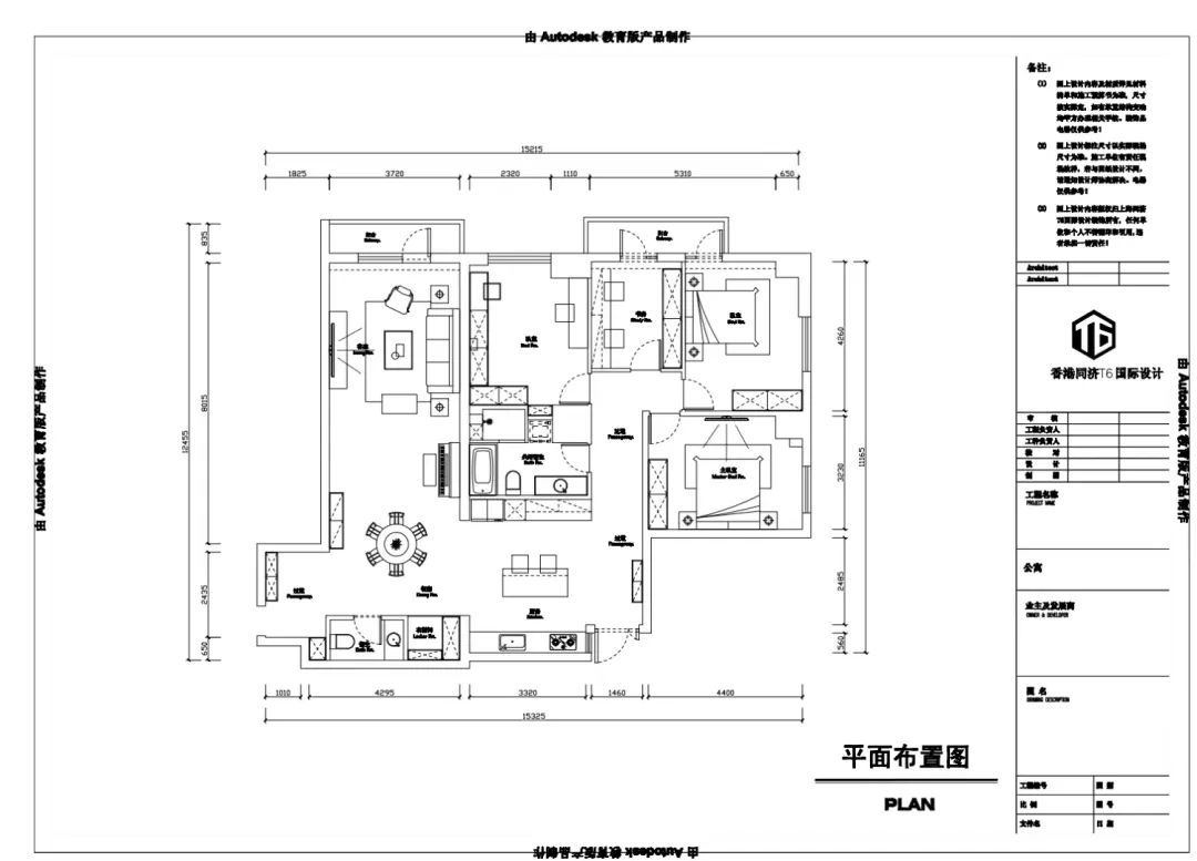
平面布置图
改造后:
1. 每个静区每一个房间都有自然采光。原户型客餐厅厨房与卧室位置调换,客厅砌墙改为卧室、书房。原户型卧室墙拆掉改为客餐厅、厨房。
2. 顶部的大梁设计为造型别致的四宫格吊顶,既解决了之前的问题,又让吊顶成为空间的一大亮点。
玄关 / Porch
质,从入门的第一眼便感受到了。灰与白,轻盈时尚。一件优雅女神雕塑,家是生活也是艺术。
客厅 / Livingroom
灰色为全屋基调,沿用烟灰色硬包墙面;灰橙色沙发,打造现代轻奢。
爱马仕金花岩板茶几,耀岩黑岩板悬空电视柜,低调有质感。
巧用大梁做四宫格吊顶,层次感与延伸感兼具,颇有欧式建筑的精美。
餐厅 / Diningroom
客餐厨一体,餐边柜颇具艺术感。隐形门隐于硬包墙内,保持公区整洁格调。
厨房 / Kitchen
开放式中西厨房,统一黑白经典配色。
金刚板橱柜,性能极好。
超大一字型操作台面,让烹饪更方便。
岛台一物两用,既是操作台也是就餐区。
走廊 / Hallway
这个家的走廊仿佛画廊一般。
卫生间 / Bathroom
卫生间也要高级感十足,灯饰更添一份氛围感。
书房 / Study
书房衣帽间一体。
L 型储物柜超强收纳。
灰色为主调,灰橙色、灰棕色点缀其间,宁静安逸。
儿童书房 / Study
小女孩的专属书房,城堡一样的书柜,造型别致。
主卧 / Masterroom
沉稳的灰色调采用橙色点缀其中,丰富空间色彩。白色通顶柜减少空间沉闷感。
儿童房 / Kidroom
小女儿的梦幻城堡屋,整体以米白色为主色调,贝壳形床头,向日葵装饰画,小公主的专属空间柔和又温馨。
合理规划空间,让设计融入生活,营造质感、格调。关注“T6 焕新家”,咨询家装设计,超多精品设计。
▲190m² 不规则户型大改造!——空间的绝妙运用
▲160m² 打造现代极简,全屋微水泥基调,超有质感的温馨之家!
▲116m² 法式复古风,这个家仿佛打翻了调色盘
更多平台了解 T6 国际设计
▼TEL|400-689-7796
ADD|静安区恒丰路 218 号现代交通大厦西区 2 楼和 3 楼
客服
消息
收藏
下载
最近



































