查看完整案例


收藏

下载
这套英郡雷丁的双排别墅需要老房翻新,房间整体基础结构质量较好,环境优雅,作为演员的主人明确表示需要一种时尚年轻的美式轻奢风格。
经过 T6 国际设计团队的精心装修,最终呈现的效果令人惊叹。
项目地址:英郡雷丁
项目面积:352㎡
设计风格:美式轻奢
项目户型:双排别墅
常住人口:3 人
装修投入:硬装 75 万,软装 33 万
设计师:张可
项目经理:王家峰
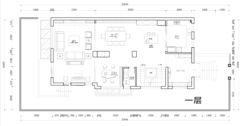
平面图
户型特点:
★基础结构质量较好,环境优雅;
★楼梯位置不合理,层高比较低,房屋拐角太多;
设计亮点:
★ 本案改造楼梯,使整个房屋的每个空间独立性更强,简化空间动线,提升家居幸福感;
★ 楼梯采用透明玻璃电梯,使房屋多了一个景点,增加空间 up;
★ 重视房间的餐厨、地下室等功能区改造,注重提升居住品质。
一推门,客厅时尚奢华的气势迎面而来,宽阔通透,满眼金辉,金色线条的点缀让以白色为主调的客厅呈现出美式轻奢之风。通过升高客厅高度,改造楼梯位置后,使得客餐厅南北通透采光更好。
细节处以金色和金色材质营造轻奢精致感,极具结构感的金属灯泡组成奢华吊灯,几处以金色为主色调的装饰品,满眼无处不辉煌。
厨房
KITCHEN
三面壁柜和柜橱,加以现代智能为理念,现代轻奢风格的半开放式现代智能化厨房,以地面白色大理石花纹为呼应,既有轻奢之感,又不缺生活的烟火气。主人比较喜欢做饭,这样的设计,让做饭成为一种享受生活的方式之一。
餐厅设计低调优雅,设计师通过改造楼梯使餐厅面积变大,又和客厅做了错层设计,从而更加体现房屋的层次感。
设计师把房间整体都扩大后,房间整体感觉更明亮,使得私密性更强,使用更方便。主卧精致典雅,大气沉稳,选用中性色演绎了轻奢之美,使空间质感更为饱满。局部的金色流连于主调之间,精致优雅感以一种自然克制的方式得以呈现。
结合整个空间的色调,卫生间利用暗涌的大理石纹路,打破传统设计了一个优雅大气的洗漱区,设计了一个浴缸,空间黑色和金色的线条勾勒,各区域功能属性分明,这样的设计高级不失格调,轻奢典范。
整个别墅空间,有着递进的层次,高级的质感,低调沉稳的空间围氛给人舒适的安抚感,让人身心愉悦,沉静下来。——本案设计师——
-End-
【蓄势待发▪共绘精彩】T6 国际设计春季全员启动会隆重召开
你一定没见过“宝藏”马路的摩登小资生活!
30 年老师傅总结:小户型装修,这 6 大雷区千万别碰!
客服
消息
收藏
下载
最近














