查看完整案例


收藏

下载
整屋案例
现代简约
当现实与理想相遇,时尚与经典融合,低调而又奢华的现代简约风便产生了。简约不是简单,是每一处的用心设计。
▼该房屋位于上海市中心河南南路。
▼屋主是个体经营者,生意人特别讲究风水,家里的每个细小的物件摆放的位置和方向都是让风水先生看过的。装修的事情全部是女主人来负责的,女主人非常有自己的想法和见解。第一次到屋主家里的时候,在灯光的氛围渲染之下,脑海里就浮现两个字‘奢华’,女主人非常热情,一一向我们介绍每个空间和从海外带回来的精致饰品。
▼屋主需求:要求采光通风要好,储物空间要多,衣帽间必须大,中西厨要敞亮!
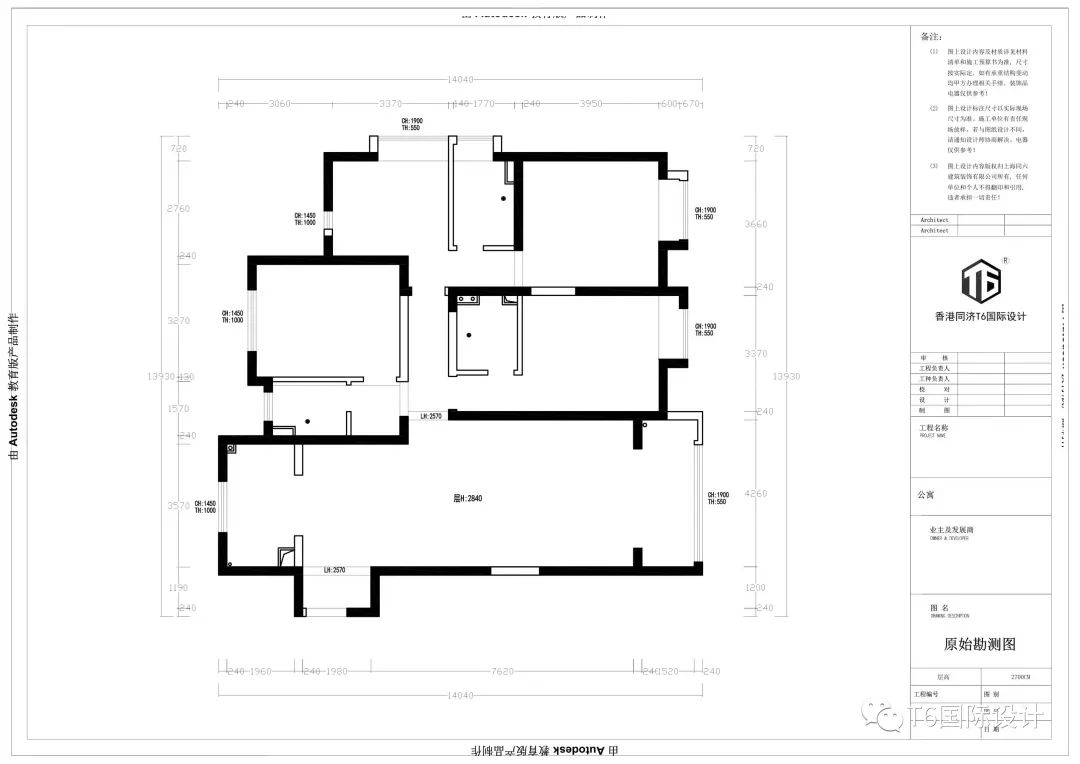
户型图:
户型优点:
▼户型正,采光良好,通风好。户型层高较高,设计吊顶也不会压抑。改造的灵活性很高。
户型缺点:
▼原始过道比较长,会占用很多其他空间。储物收纳空间太少。卫生间太小,拥挤,放不下浴缸。
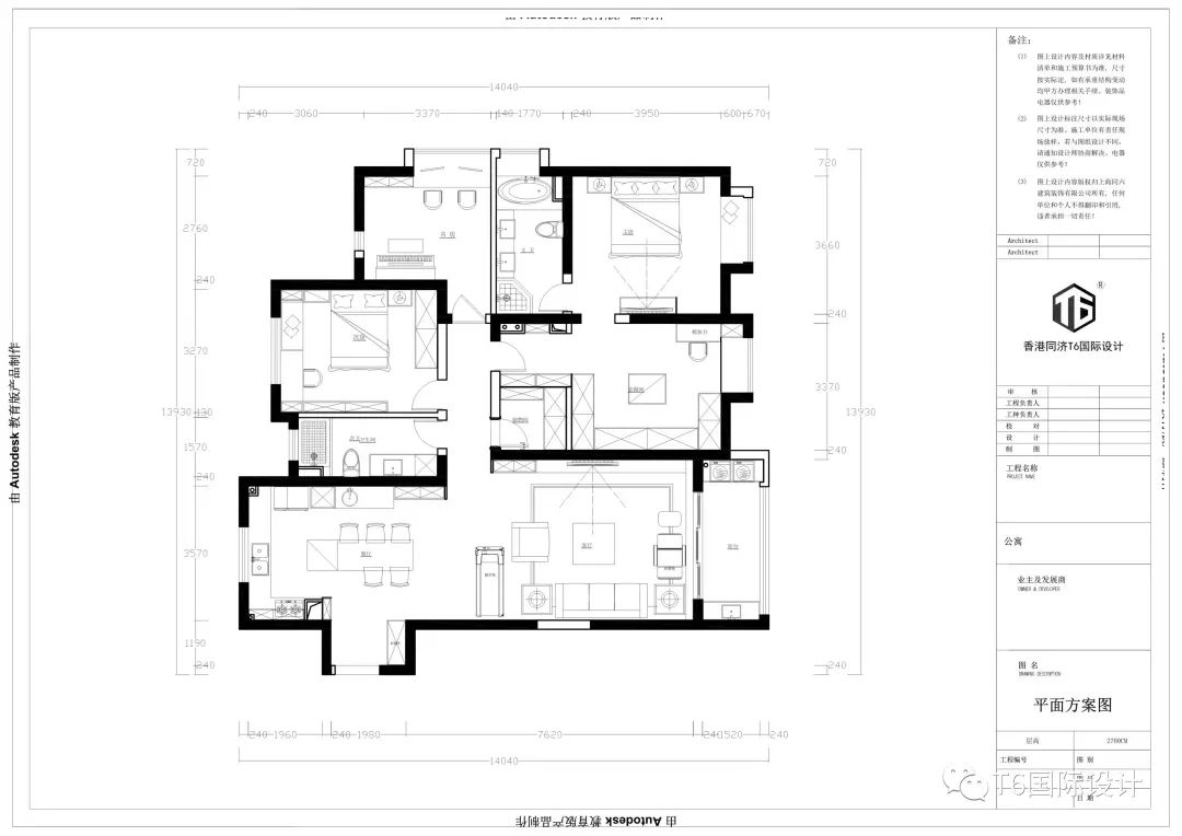
改造亮点:
▼开放式厨房设计让整个厨餐厅更加宽敞明亮。
▼将原先的暗卫生间取消掉,增加储物收纳空间。
▼通过设计师的重新布局主让卧室与儿童房都增加了私密性。
▼将原来卫生间扩大满足泡澡功能。
▼设计师充分利用原长过道增加了收纳功能。
玄关
▼进门处右边通顶的玄关柜,中间设计镂空 40 公分,给日常出门物品留有放置空间。下方预留出 20 公分,让鞋子和扫地机器人有独立空间。
▼另一侧边设计了一个穿衣镜,旁边设计嵌入式展示柜,透明玻璃材质的柜门更方便展示和收纳屋主从国外带回来的精致饰品。客厅
▼客厅采用玛雅灰 750*1500mm 大地砖通铺,延伸空间感,客厅简洁又大气。客厅吊顶采用无主灯设计,小筒灯和隐藏灯为客厅制造氛围感。
▼现代简约的潘多拉大理石电视背景墙,由三块 1200*2400mm 大理石组合而成,纹路酷似一只展翅翱翔的老鹰,寓意“大展宏图”,象征了屋主对未来的美好憧憬。电视背景墙搭配了 75 寸的液晶电视,享受影院般的观影体验。
▼电视背景墙下方的木质地台做成抽屉式的储物柜,增加收纳空间。
▼沙发背景墙采用的是皮质的硬包作为装饰,这种有质感的设计元素,让整体空间显得精致高级。餐厅
▼客餐厅地面瓷砖采用通铺的方式,地砖从客厅一直延伸到餐厅,让整体保持一致性。开放式的餐厅和厨房融合成一个空间,让空间更为宽敞、通透。
▼餐厅位置在中西厨交替处,设计师将岛台和餐桌设计成一体式,节省空间,白色大理石餐桌与皮质餐椅搭配暖色的灯源,给空间添了几分温度。
▼西厨的水吧台和餐边柜结合,满足西厨的所有需求。餐边柜下方设计储物柜功能,上方设计为酒柜,打造成为名酒展柜。
厨房
▼开放式厨房,让原本小而窄的厨房变大。L 型厨房布局合理,洗、切、炒依次排布,让空间充分利用。
▼上下整体橱柜的设计,足够收纳厨房用具,让厨房显得有条有理,不再凌乱。
衣帽间
▼衣帽间和化妆间设计为一个整体,采用玻璃柜门,防尘且使用更方便。足够大的衣帽间,能够容纳女主人各类奢侈品的摆放陈列,实用与美观兼具。
▼从客厅步入衣帽间的走道处,设计师在走道两边都做了通顶柜,柜子采用透明玻璃门板,让其既有展示又有收纳的功能,又一次满足了屋主储物多的需求。
书房
▼走道到底就是书房,书房采用的是隐形门设计,关上门好像一个秘密基地,可以安安静静的办公不被外界打扰。
▼书房整体采用的是莫兰迪的颜色,静谧蓝让人心神安宁。设计师利用了飘窗改造成了大书桌,让小空间也有大作为。
卫生间
▼主卫生间采用挂壁马桶简洁大气,双台盆设计,防水石膏板吊顶,隐藏灯光的利用,尽显高级感。
▼原本卫生间比较小,设计师将卫生间扩大之后就可以放下一个 800*1700mm 的浴缸,更方便舒适。
▼次卫生间做的是干湿分离的设计,延续了现代简约的风格,没有太多繁琐的装饰,简单大气。
这样现代简约与低调奢华兼具的风格是你喜欢的吗设计师
客服
消息
收藏
下载
最近
































