查看完整案例


收藏

下载
生活不仅仅是喧嚣热闹的欢聚时刻,更是和家人在一起的平淡时光。
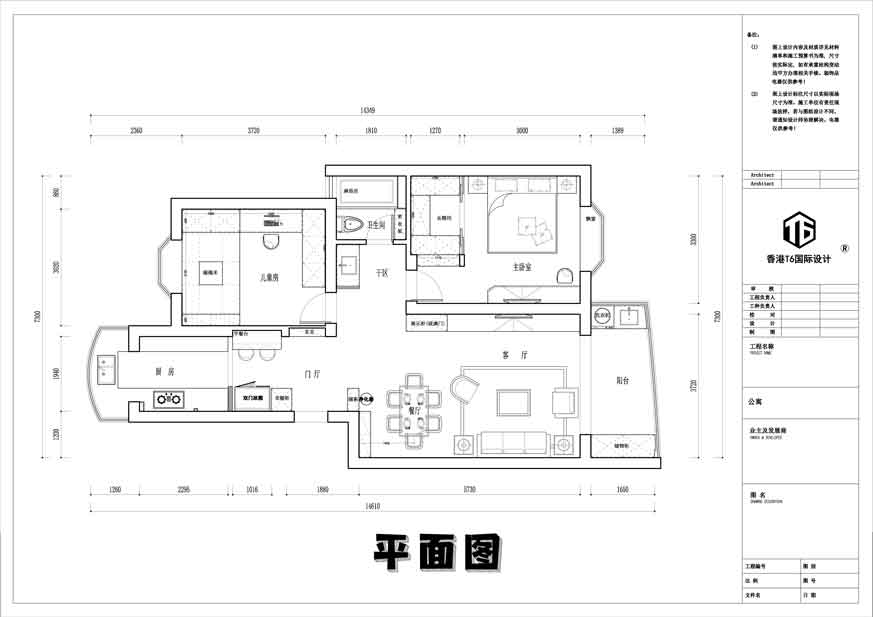
本案是一家三口的温馨之家,就在学校旁边,地理位置绝佳。
项目地址:
上浦路329弄
设计风
格:
北欧
项目户型:
两室两厅
常住人口:
3人
设计老师:
许永辉
01:05
业主需求:
★储物功能多;
★整体设计简单、温馨
。
设计亮点:
★南北通透,客厅阳台面积比较大,采光舒适;
★卫生间做干湿分离设计;
★两个卧室的门改在侧面,既达到南北通的效果,也让门厅客餐厅看着整齐
。
客厅
原来的客厅门洞太多,入户门对着小卧室门,动线比较混乱。经过门洞调整后,客餐厅显得比较完整。另外客户还喜欢手办,通过组合式电视背景墙,达到储物和展示功能。
餐厅
处于同一空间的客餐厅,是空间幸福感的见证。阳光透过玻璃照射进来,通透的格局,每一个清晨都足够甘醇。
时尚角落
主卧
进入主卧,那宝石蓝的墙面,沉静安稳,新增的衣帽间加强了储物功能,
筑起实用与温馨的可能。
次卧
次卧整体空间以素雅为主,让卧室更加温馨柔和,身处其中便能感受到舒适和惬意。做的榻榻米增大了小孩子的活动空间,储物棒棒哒。
厨房
厨房采用内嵌移门,以个性黑框,搭配玻璃材质的表现方式,展现细节野性,U型设计布局合理,
还做了中西厨设计,可以在西厨吃简餐,
集颜值与实用性于一体。
卫生间
卫生间做到干湿分离,使得利用率较高。挂壁式马桶清洁起来方便。
这套户型业主最满意的地方就是简单,干净,符合预期。
生命中的一切期望,一切尽在不言中。光与影,温暖与平静,我们看到生活,也遇见自己。
end
客服
消息
收藏
下载
最近





















