查看完整案例


收藏

下载
HOMBLE
Design is the soul. Construction is landing guarantee.
设计师灵魂,施工是落地保障。
优秀的设计需要施工专业、综合力强、优质服务的施工团队,呈现出卓越的设计视觉效果。
01. 竣工展示
02. 设计对施工的要求
工艺的好坏对整个装修质量都起到关键性的作用
我们一起来解剖这套作品的施工重点
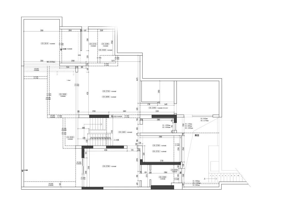
负一层原始结构图
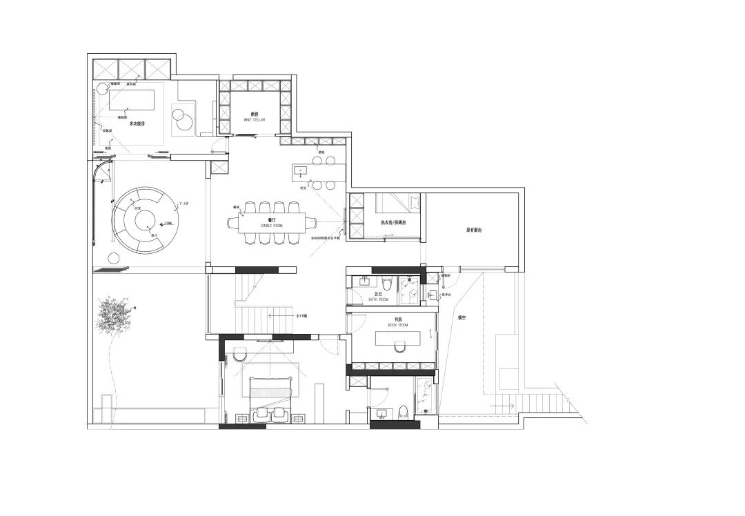
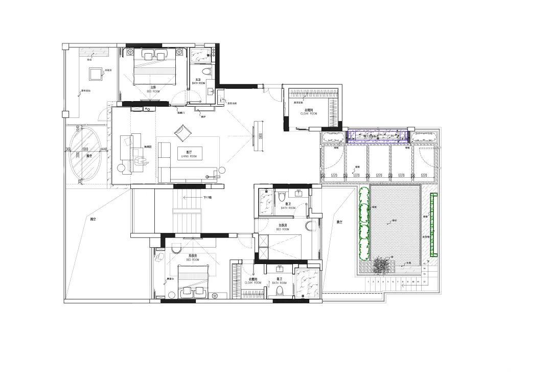
负一层平面布置图
一层原始结构图
一层平面布置图
✲
施工重点:负一楼下沉式休闲厅椭圆形天井一楼、悬挂电视背景墙弧形玻璃房、悬浮楼梯、多种材质衔接、护墙与隐形门衔接
03. 区域解剖/休闲区域
设计师现场讲解施工图纸及施工方法,先放线制出合适的弧度,再用 3 厘板弯出整体弧形天花及椭圆式弧形底天井天花。
对接天花造型,木工施工阶段
施工现场与最终落地的对比
现浇楼板
制模出椭圆形天井,通过放模回填地面方式制出下沉式休闲厅圆形沙发位。
(注意:天井采用椭圆形夹胶玻璃,并处理好雨水排水位)
/ 客 厅 区 域
施工现场与最终落地的对比
在木工阶段,根据图纸现场放样,结合加点重量和尺寸,考虑是否要内嵌钢架(注意:这里是有做钢架,将钢架通过膨胀螺丝加固于天花楼板上)
/ 楼梯区域
施工现场与最终落地的对比
掏空墙面,预埋钢板,焊接固定踏步钢板,踏步基层打底,踏步面贴岩板。冲筋找平工艺。安装灯带,内嵌式玻璃扶手。
/ 餐厅区域
施工现场与最终落地的对比
墙面刷本杰明蛋壳光涂料,墙面需提前做好墙面冲筋找平工艺,保证墙面的垂直平整度。
HOMBLE DESIGN:HBL9899 / 15999913767:
FIND OUTMORE
相关精彩推荐
客服
消息
收藏
下载
最近









































