查看完整案例


收藏

下载
于移动和转折之间,记录生活表情与未来可能性,感知场域赋予人生的饱满活力。
设计地址:星汇云锦
设计面积:220㎡
设计机构:红柏设计
玄 关
整个空间采用了极简现代的设计手法,赋予空间多重色彩解构。
异形入户椅给人以不同矩形的界限感,半高隔断式的原木色的入户收纳柜没有“顶天立地”式的压迫感,右下角透光石灯箱的加入为进门带来了明亮,这一细心设计也在细微处带来温馨之感,带领我们开启全新的情景模式。
深色的原木天花板,给浅色空间的飘然带来了沉稳,整体协调和谐。
收纳柜与书房延伸桌的严丝合缝彰显出细腻考究的雅致格调。
客 厅
客厅以现代风的空间基调,电视墙以定制柜的设计,电视机与收纳区域以白色的柜格植入,在整体洁白的电视柜上,带来的是一种现代时尚的实用与档次感。
与其他不同的是,豆腐块组合式的沙发设计方式,给业主以后有孩子的生活带来更多场景灵活变化的可能性。酒红色丝绒材质沙发的跳色加入,弱化了整个空间的颜色沉闷感,增添了几分热烈和闪耀!
深色原木式的空调通风口在实用性上主要以通风为主,在美观性上深化了视觉美观性且右侧内凹凹口与玄关隔断柜体的突出式圆弧设计形成阴阳对比的亮点。
为了孩子的注意力集中,学习区域与玩耍区域的划分总是显得尤为重要,于是我们将玩耍区域设置在沙发背后,长桌的设计下又有抽取式的可移动收纳柜,不拘于固定形式的区域可以随着孩子年龄作改变。
大面积的色块总是会让人看得十分空白,但又不可缺少,深色大理石纹路镶嵌在白色瓷砖上,宝格丽大理石与左右两侧的纯色收纳柜既做了对比又可作区分,弱化了原有的墙垛带来的视觉冲击,与电视背景墙形成整体,在视觉上能扩大空间、忽略突兀、细分区域。
厨 房
餐橱区域,用颜色划分空间,提供了更多可能,黑色的椅子搭配白色的桌子,似乎永远都不过时,这简约式的美丽散发着不一样的时尚之气。
内嵌式深原木色的放置柜和水池区域与左右两侧的浅色收纳柜并排而落,深浅相呼应。卡其色纹路的大理石操作台在右侧与餐桌相连,不仅仅是元素协调、突出功能区也是实用性的体现,使得餐橱区域不再是划分严谨的地方,而是充满互动性的美食之旅。
细腻充足的采光永远都是一个家的点睛之笔,光缓缓透过百叶窗,留下的只有光影的痕迹,洒在墨绿色的叶片上,就连空气都好似有了呼吸。
书 房
书房靠柜定制一排的延伸金属桌,与吧台的黑色木纹台面区别划分区域功能。右侧是钢琴弹奏区域,而右侧的则是高柜,把高柜放置在中间延伸了书桌,实现了和谐的视觉设计延伸。
不难发现,收纳永远都是重点,在工作区身后延伸至钢琴左侧,都是以收纳作为背景墙,且上下区分,下边开放格拿取得书本方便,为孩子提供便利性。收纳不是多就好,而是在兼顾实用性的同时,还能获得视觉美感来享受。
好的装修设计,不是一味追求美感,对于业主的需求与喜好,也是我们不断斟酌的部分,业主希望能够在客厅就能知晓孩子的学习情况。于是我们将客厅与学习区形成互通开放式设计,将钢琴与学习结合,形成紧凑的学习区域。
主 卧
主卧延续了整体空间的极简设计语言,灰白木的配色除却浮躁,没有过多的装饰,利用比例、灯光、明暗、光影营造空间的质感和氛围,简单的空间更能与窗外的自然融为一体。
入门处的书柜设计能更好保护主人的隐私性与主卧的美观性、实用性,与房间不同的是,入口处右侧有彩色涂鸦板块,中和了卧室中颜色的沉闷,又带来了几分活泼。
沙发形卡位的整体设计有十足的休闲感,深咖色与主卧背景原木元素相呼应,丝绒质感给人以舒适的触感,业主最喜爱迎合着四周的阳光,享受属于自己的休闲下午、冬日暖阳。
深黑色独特造型椅子与斑马纹小桌,为空间的视觉享受添加了亮点,也与入口处彩色涂鸦形成风格呼应,和谐地完成空间布局。
主 卫
长条式视觉延伸是区域划分带来的视觉体验,卫生间与衣帽间相连的设计能更好地照顾好实用性,采用镜面材质门将衣帽间与卫生间相隔开,为看似密闭的空间给了一丝恰到好好处的通透,镜面与分隔的完美结合更是缩小了空间的利用区域,实用性与美观性的结合又是另一场亮点盛宴。
空间的利用,让梳妆的区域更加明亮,梳妆台与窗的结合不仅仅是为了打扮的方便,更是为了空间的光影能够透进空间,带来舒适与温暖.
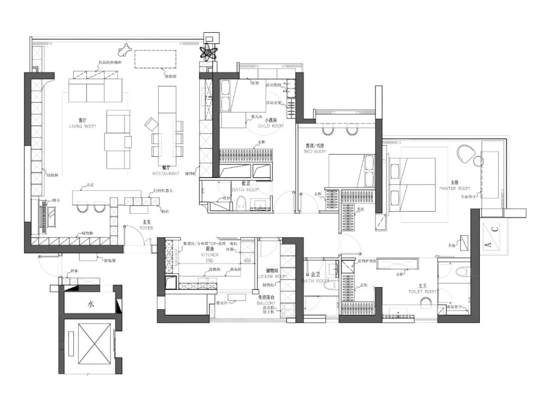
平
面
布
置
图
F
L
O
O
R
P
L
A
N
HOMBLE DESIGN
:HBL9899 / 15999913767
FIND OUT MORE
相关精彩推荐
客服
消息
收藏
下载
最近





























