查看完整案例


收藏

下载
▼
没有繁复的细节 ,
没有奢华的格调 ,
关注感官享受 ,
享受居家舒适。
▼
There are no complicated details,
There's no luxury,
Focus on sensory enjoyment,
Enjoy home comfort.
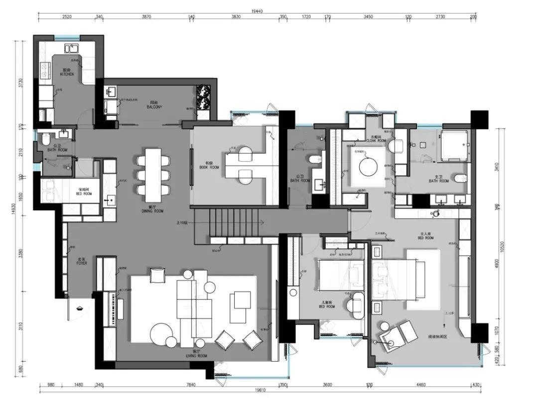
▼ 平面设计图 / Plan design
▼客餐厅/The restaurant
▼开放式的餐厨空间,在造型和色彩的设计与选择上,都贴
近
生活,动线流畅,色彩温润,在这质朴的空间里,更加温柔。
▼Open kitchen space, in the shape and color design and selection, are pasted into life, moving line is smooth, color is warm, in this simple space, more gentle.
▼
通白的吊顶、极简的灯饰,创造了一个广阔通透的居住空间,保证了居住在里面的人有开放宽敞的感觉。
温润的色调
自发地贯穿整个空间,勾勒出一条故事线,镌刻着居住者的记忆和生活
,
这是一个人们可以放松和感到舒适的家。
▼The white ceiling and simple lighting create a broad and transparent living space, which ensures that people living in it have an open and spacious feeling. The warm colors spontaneously run through the whole space, sketching out a story line, engraved with the memory and life of the residents. It's a home where people can relax and feel comfortable.
▼
极简的线条和色彩张扬着简约的生命力
在这
“蜗居”里创造质朴却不失品位 含蓄而不单调的空间氛围透露出对人的关怀与热爱
。
▼The minimalist lines and colors publicize the vitality of simplicity, creating a simple but tasteless space atmosphere in this "dwelling", revealing the care and love for people.
▼主卧/Master bedroom
▼
主卧融合艺术的家具,床品,配饰,在空间内表达
对生活的的感受,触感自然舒适的床品,展露休憩空间应有的安逸。
简洁而不随便,高级而不浮夸,缓缓躺下到舒适的梦乡,感受治愈的气息,是在都市中的理性状态回归到了内心柔和放松的力量。
▼The master bedroom integrates art furniture, bed products and accessories to express the feeling of life in the space. The bed with natural and comfortable touch shows the comfort of the rest space. Simple but not casual, advanced and not pompous, slowly lying down to a comfortable dreamland and feeling the breath of healing is the rational state in the city returning to the soft and relaxed power of the heart.
▼
卧室的整体色调在
艺术涂料
背景与木质温暖的营造下,有着别样栖息的诗意。
生而为人,纵然世间诸多不易,但心存美好,坚守一份初心,何处为家,何处就是家。
随意摆放的绿植
使这个睡眠空间多了一份生活的温度,谁能拒绝让自己的安寝之地更加舒适呢?
灰与
白
成就素雅氛围,香氛与插花更显主人细腻心思。
▼The overall tone of the bedroom has a different poetic habitat under the background of art paint and warm wood. Born to be a man, even though the world is not easy, but a good heart, adhere to a original heart, where home, where is home. The randomly placed green plants make the sleeping space more comfortable. Who can refuse to make their sleeping place more comfortable? Grey and white make elegant atmosphere, fragrance and flower arrangement show the master's delicate mind.
▼衣帽间/Cloakroom
▼
衣帽间连接主卧过道,宽阔的衣帽间空间利用率极高,而且灰色
+白色的色调显得衣帽间有
着
自己独特的魅力。
▼The cloakroom is connected with the main bedroom aisle. The wide cloakroom space utilization rate is very high, and the gray + white color shows that the cloakroom has its own unique charm.
▼主卫/Master guard
▼
卫生间强调功能性设计,线条简约流畅,色彩对比强烈,这是现代卫生间的特点。
一面
透明
玻璃搞定干湿分离的科学设计助力视觉上的宽敞整洁
,
给人带来前卫、不受拘束的感觉。
▼Toilet emphasizes functional design, simple and smooth lines, strong color contrast, which is the characteristics of modern toilet. A transparent glass handle dry wet separation of scientific design, help the vision of spacious and clean, bring people avant-garde, unrestrained feeling.
▼多功能房/Multi function room
▼
最喜欢的就是家中有一个设计贴心的多功能区域:
学习,休闲,娱乐,会议
......
让一个空间充满无限可能!
▼What I like most is that there is a well-designed multi-functional area at home: learning, leisure, entertainment, meeting... Making a space full of infinite possibilities!
儿童房/Children's room
▼
儿童房用简单明了的线条勾勒出设计的大体轮廓,以简约之处创造孩子的童真世界,宽大的室内空间可以让孩子自由发挥,不断地挖掘思想上面新的东西。
▼The children's room outlines the general outline of the design with simple and clear lines to create a childlike world for children. The spacious indoor space allows children to play freely and constantly excavate new things in their minds.
项
目
介
绍
主
案
设
计
|
姚
茂
华
|
邓
炜
琪
设
计
机
构
|
红
柏
鹿
设
计
项
目
坐
标
|
澳门
· 海明湾畔
项
目
类
型
|
私
人
住
宅
项
目
面
积
| 230
m
²
材
料
概
念
|
护
墙
板
|
烤
漆
板
|
岩
板
|
大
理
石
|
瓷
砖
|
钢
板
|
硬
包
|
艺
术
漆
谢
谢
观
赏
原
创
不
易
,
欢
迎
转
发
与
关
注
公
益
分
享
,
禁
止
商
用
客服
消息
收藏
下载
最近














